大华梧桐院☎📞售楼处电话:400-9659-259✅✅✅大华梧桐院项目的详细介绍,包括项目区位、建筑风格、配套设施等。该项目由27栋联排和4栋叠拼组成,总规划可售户数141户,容积率仅约0.75。整体设计借鉴江南园林建筑的理念,注重阳光与景致的充分利用。
大华梧桐院☎📞售楼处电话:400-9659-259✅✅✅
中环旁准现房「大华梧桐院」少量建面约139-142㎡叠加别墅、158-165㎡联排别墅热销中,均价9.18万/m²!容积率仅约0.75!真正的限量版、藏品级纯别墅,错过不再!
大华梧桐院☎📞售楼处电话:400-9659-259✅✅✅

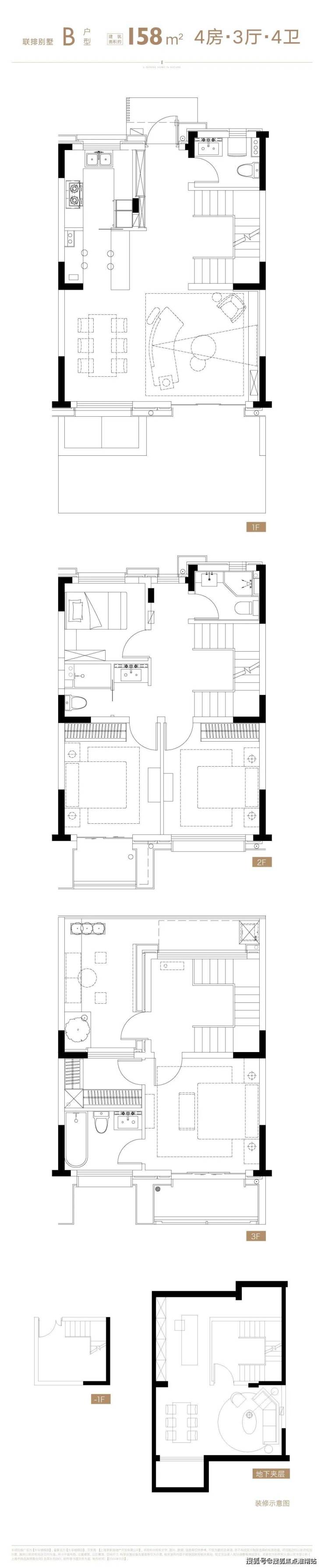
全套户型图如下:

大华梧桐院☎📞售楼处电话:400-9659-259✅✅✅

大华梧桐院☎📞售楼处电话:400-9659-259✅✅✅大华梧桐院☎📞售楼处电话:400-9659-259✅✅✅


大华梧桐院☎📞售楼处电话:400-9659-259✅✅✅大华梧桐院☎📞售楼处电话:400-9659-259✅✅✅
感兴趣的小伙伴们可以预约哟~
【项目区位】
大华·梧桐院由27栋联排和4栋叠拼组成,总规划可售户数141户,容积率仅约0.75。
社区整体设计借鉴江南园林建筑的设计理念,确保每一栋建筑都能拥抱充足的阳光与四季更迭的景致,同时梧桐院之名也寄托了凤栖梧桐的美好寓意。

实景图
项目品质也十分耐打, 立面主体采用素白色花岗岩石材和相同效果的仿石漆,搭配金属线条勾勒,营造出简约而不失高端的建筑风格。

大华梧桐院☎📞售楼处电话:400-9659-259✅✅✅大华梧桐院☎📞售楼处电话:400-9659-259✅✅✅
实景图
项目以行列式布局,形成多个独立的居住组团和围合的景观空间,辅以景观隔离,打造“巷陌深深”的居住体验感,层层递进的空间序列,营造坊巷生活的江南人文邸院。


示意图(非交付标准)
“ 碧梧、花影、秋月、玉阶、闲庭”五大院落设计,通过景观轴线串联,演绎优雅别致、移步异景的雅居格调。


示意图(非交付标准)
另外, 精装地下车库做了时下流行的星空顶设计,显得非常现代精致,部分联排也是直通地库。

大华梧桐院☎📞售楼处电话:400-9659-259✅✅✅大华梧桐院☎📞售楼处电话:400-9659-259✅✅✅

示意图(非交付标准)
产品方面, 大华·梧桐院共有联排和叠墅两种产品,总价预计1200-1600万左右。
联排别墅主打约158-165㎡地上三层产品,带露台和相对独立的使用景观分区。


大华梧桐院☎📞售楼处电话:400-9659-259✅✅✅大华梧桐院☎📞售楼处电话:400-9659-259✅✅✅


4层叠墅分为上/下叠,上叠建筑面积约139㎡,下叠建筑面积约142㎡,均为4房设计。
“4层叠墅+纯4房”的叠墅产品,无论是从产品形态、还是户型尺度等方面,都堪称同面积段的六边形战士,主力总价约1200万级。



大华梧桐院☎📞售楼处电话:400-9659-259✅✅✅大华梧桐院☎📞售楼处电话:400-9659-259✅✅✅
目前, 项目开放了三个样板间可供参观,分别为建面约139㎡的上叠、建面约142㎡的下叠以及建面约165㎡的联排。
样板房照片如下:

样板房实景图

大华梧桐院☎📞售楼处电话:400-9659-259✅✅✅大华梧桐院☎📞售楼处电话:400-9659-259✅✅✅
样板房实景图
除了便捷的交通之外,大华·梧桐院周边也坐拥相当成熟的高能级配套。
商业方面:项目周边荟萃超过150万㎡商业配套,除了紧邻的大华时光里和宝山日月光之外,还有大宁音乐广场、大宁久光、大宁国际广场、静安大融城等,提供了丰富多彩的购物、娱乐和休闲选择。

大宁久光实景图,仅供参考
在教育和医疗资源方面,项目周边同样拥有丰富的选择。
教育方面:项目周边约1.3公里内拥有上海世外教育附属宝山大华实验学校、宝山区大场中心小学等优质教育资源。
周边还有陈伯吹实验幼儿园(市一级)、华师大宝山实验学校(公办九年制)等名校环伺。
(新房不承诺学区,具体以教育主管部门公示为准)
医疗方面:上海交通大学医学院附属仁济医院宝山分院、第十人民医院、同济大学附属口腔医院、静安区市北医院、同济大学附属上海市第四人民医院等高质医疗资源,为健康保驾护航。

大华梧桐院☎📞售楼处电话:400-9659-259✅✅✅
实景图,仅供参考
生态方面:项目南侧就是走马塘海派生态水岸,周边还有包括大宁公园、桃浦中央绿地等城市绿肺,健身休闲随心安排。

大华梧桐院☎📞售楼处电话:400-9659-259✅✅✅
大宁公园实景图,仅供参考
总之,项目周边的商业、交通、教育和医疗等配套设施的完善,为业主提供了全方位的生活保障,众多高能级的城市资源,也为大华·梧桐院提供了坚实的价值支撑。.
大华梧桐院☎📞售楼处电话:400-9659-259✅✅✅
大华梧桐院☎📞售楼处电话:400-9659-259✅✅✅