缦云上海售楼处电话:400-998-9694缦云上海售楼处电话:400-998-9694缦云上海售楼处提供优惠咨询,主打大平层、高端装修、滨江板块,均价11-12万/㎡,电话400-998-9694。
缦云上海
售楼处电话:400-998-9694
如有问题欢迎来电咨询,来电即可享受买房优惠!
预约来电尊享购房优惠,可预约案场内部销售人员,专业一对一热情服务,让您用专业眼光去买房。
楼盘项目全面介绍,本电话为开发商提供线上售楼处电话,楼盘项目全面介绍(包含楼盘简介,楼盘积分,房价,价格,楼盘地址,户型图,交通规划,备案价,项目配套,楼盘详情,售楼处电话,最新消息,最新详情,周边配套,最新进展等详情咨询)
缦云上海售楼处电话:400-998-9694
杨浦东外滩滨江板块
建面约206-330㎡大平层
一线品牌豪装交付 单价11万/㎡+
收官楼王位置 可直接选
缦云上海售楼处电话:400-998-9694
缦云上海售楼处电话:400-998-9694 合生地产 高端缦系产品

该项目是合生在上海首个缦云作品,总建面约80万㎡,是杨浦滨江一线的超级综合体,更是杨浦滨江风貌带上的全新街区,项目集合多业态于一体,未来将建设合生汇商业广场、高端住宅、风貌别墅、五星级酒店、办公写字楼等诸多业态。

缦云上海售楼处电话:400-998-9694
区域内唯一纯粹大户型社区,代表更纯粹的业主圈层
建面约206-330㎡大平层 收官发售 均价约12万/㎡可直接选,都还是准一梯一户的设计。
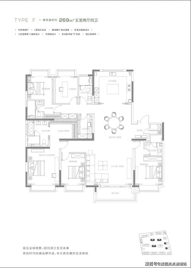
户型图如下

缦云上海售楼处电话:400-998-9694

缦云上海售楼处电话:400-998-9694

缦云上海售楼处电话:400-998-9694

缦云上海售楼处电话:400-998-9694

缦云上海的装修配置,也是远超当下市场平均水平:新风、地暖和中央空调标配三大件,瑞士顶级卫浴品牌Laufen劳芬、德国高端洁具巨头Dornbracht当代、德国知名品牌美诺、还有博世等等,部分大户型还有定制衣柜!

缦云上海售楼处电话:400-998-9694
样板间实景!

样板间实拍图

缦云上海售楼处电话:400-998-9694 样板间实拍图

缦云上海售楼处电话:400-998-9694
样板间实拍图

缦云上海售楼处电话:400-998-9694
样板间实拍图
顶级卫浴品牌Laufen劳芬(部分)、Geberit吉博力同层排水系统、德国高端洁具巨头Dornbracht当代、意大利制造Veneta Cucine威乃达橱柜,还有新风、地暖、中央空调都是世界知名品牌......
高端的家居品牌,是每一个开发商愿意花钱就能做的。不过,光说用了多少大牌,完全不足以体现合生·缦系的诚意!细节才是真正体现产品力、区别于其他千万级项目的关键所在~
大门是约1.3米宽的复合子母门,厚重的材质给人以安全感和仪式感!
这个是入户玄关处的地面,大理石地面搭配金属线条勾勒出玄关地界,归家的氛围感从这个区域就开始了~

缦云上海售楼处电话:400-998-9694
这还不是重点,玄关座椅背后,是一面皮革包裹的墙面。

缦云上海售楼处电话:400-998-9694
惠房宝已经想象出业主未来的归家场景:坐在此处换鞋,往后随意倚靠,触碰到的不是冰冷的墙面,而是质感柔软的皮革,卸下一日疲惫与风尘再步入双厅......
鞋柜下方做了悬浮处理,同样也是内嵌灯带,这里灯光的角度还会再调整,因为灯光映射在大理石地面上,要显得尽量柔和不刺眼;同时,鞋柜下方可放拖鞋,还能放扫地机器人,便于日常清扫打理。

缦云上海售楼处电话:400-998-9694
鞋柜的饰面,纹路方向统一,呈现出极强的协调感。

缦云上海售楼处电话:400-998-9694
这种细节的打磨,才是最能体现出一个项目对于高端居住人群品味的把握、对于生活的理解......而品质感正是从如此细小的地方中流露出!
厨房 厨房灶台并不像很多项目做了“三眼灶”、“四眼灶”,其实灶眼多反而放不下中式的大炒锅;缦云上海选用的这款BOSCH博世炉灶,液晶面板可定时,这样煲汤的时候就无需盯着;钢化玻璃材质,更易清理,油渍不容易渗入。
橱柜作为强功能性的收纳系统,自然少不了操作性能上的考究,吊柜做了升降式的拉篮,以后再也不用爬上高凳拿取了。

缦云上海售楼处电话:400-998-9694
下方的橱柜则做了转角拉篮,充分利用转角空间,使物品井然有序的同时,轻松方便取放。

缦云上海售楼处电话:400-998-9694
水槽也是一个大单槽,放得下炒锅汤锅这种大物件~抽拉式龙头,清洗大水槽的时候很方便,360度旋转伸展自如,这款弯管还是硅胶材质,柔软耐用有弹性,还可切换出水模式,出来的水柱也是很柔和细腻不飞溅。

缦云上海售楼处电话:400-998-9694
厨房玻璃门是上轨道移门,意味着地面部分没有任何轨道,不会有灰尘积攒,炒菜时关上,避免油烟散入室内;平时拉开,可以扩充室内视觉感受。

缦云上海售楼处电话:400-998-9694
卫浴 缦云上海所有户型的所有卫生间里都用了悬浮式的洁具和柜体,确保了下方空间的打扫无死角,对未来的入住带来非常大的便利性!

吉博力同层排水技术,静音是最大亮点;特制“水母”地漏,多重防臭防反溢。干净舒适的卫生间,是从空气到水流的全面把控~

缦云上海售楼处电话:400-998-9694
你们可以看下缦云上海是如何处理卫生间木门的防潮的——卫生间一侧用大理石做踢脚线,这是真正细致入微的巧思!

缦云上海售楼处电话:400-998-9694
主卧卫生间配备的电热毛巾架简直就是遇到潮冷节气的“福音”,让毛巾、内衣都能够提前加热干燥。

缦云上海售楼处电话:400-998-9694
层高 对于缦云上海的纯大宅社区定位,能买这样产品的购房者会非常在意空间感。缦云上海全部户型层高约3.3米,室内所有空间的门都做了通顶设计,更阔绰的居室空间,将生活格局有效放大,通风、采光和观景体验的全方位提升!

缦云上海售楼处电话:400-998-9694
弧形元素 缦云上海样板间里随处可见柔和的圆弧修饰,特别是柜体、墙体包边的圆弧转角,在进出各个空间时,减少磕碰的风险,对于有孩子和老人的家庭来说,是非常实用的友好设计。

缦云上海售楼处电话:400-998-9694
甚至于抬头所见,吊顶都做了多处圆弧形处理——只是为了不过份尖锐,柔化边缘,让视觉看上去多有变化。弧线的协调往往能带来一种独特的、百看不腻的美感。
而且,门套做了弧形设计后,还叠加了金属线与墙纸做了分割,加强隔断界限感,提升室内家居精致度~

缦云上海售楼处电话:400-998-9694
比起中规中矩的直线,弧形施工工艺更复杂、造价更高,却多了几分灵动轻盈!这种弧形的元素不只是在样板间里,在售楼处也能经常看到,比如电梯厅。

缦云上海售楼处电话:400-998-9694

2 国际大师联袂 美学新作
建筑立面主要材质为铝板,一期层高约3.3米,超越市面主流尺度,放大居住舒适度。景观设计更向往自然纯粹的优雅和从容闲适的内心,营造七大主题景观带。
室内设计,秉承摩登东方的理念,设计以人、生活为中心,从空间本体和情感层面都回归生活,270度环幕采光,开放式会客厅设计,兼具尺度感与功能性。
建筑设计:HZS滙张思,曾荣获2021年Gold Nugget Awards金块奖;
景观设计:水石景观,全国景观十强公司,曾荣获2019年美国 ASLA综合类荣誉大奖,代表案例:三亚大东海湾JW万豪酒店
室内设计:无间设计,由著名设计师吴滨Ben Wu创立,坚持以中国传统文化为土壤,以现代主义手法,赋予东方以摩登,代表案例:上海翠湖五集、上海汤臣一品
缦云上海售楼处电话:400-998-9694
独创折叠理念 同频全球建筑理念
YUNĒ缦云以超前眼界洞察时代趋势,开创性地提出“折叠理念”,与普利兹克奖获奖理念同步,以更便捷、更智慧、更简约的方式整合实现,再一次实现缦系产品升维。
折叠园林 垂直自然秘境
科学布局多重体验空间,将自然季色折叠进生活,达到外部景观资源最优化的同时,平衡活动功能与视觉审美。
七大主题花园:针对全龄段,设置尊享归家入口、礼仪花园、林下花境、感官轻氧花园、康养花园、童趣乐园、流水花园等,以跌水水景、儿童滑梯、艺术跳泉、按摩步道、林荫树阵等组合,覆盖全龄人群的景观体验,让生活更有温度,打造自然宁静的生活方式。

缦云上海售楼处电话:400-998-9694
折叠N+1会所 重构生活方式
创新设计“折叠N+1会所”包括一个约3000㎡的私享会所及每栋楼宇下面的泛会所。
私享会所包括健身中心、室内恒温泳池等
泛会所包括共享办公、茶室、自助水吧、儿童游乐区、四点半学堂等

3“已经准现房 即将交付缦云上海售楼处电话:400-998-9694
作为上海销冠红盘和杨浦滨江顶流品质盘,缦云上海从去年8月到现在,严控工程节点,按照缦系高标准要求施工,已播出7期工程进度。在主体建筑材质上,甄选顶级铝材立面,采用通过数控切割、精度弯弧、手工焊接、打磨抛光、七重清洁、烘干喷漆、高温定型等十余步精细工艺,具有良好的耐候性和维护性,确保建筑外观持久如新。在立面色调上,以中灰色和深灰色为主旋律,采用大面玻璃结合简洁的直线条,竖向线条突出立体感,让视觉上更具挺拔力量感;大面积无框开敞阳台玻璃的设计,搭配香槟色金属边框,在阳光下,白色温润质感和香槟金色光泽交相辉映,塑造轻盈而精致的高端现代住宅形象。

缦云上海售楼处电话:400-998-9694

缦云上海售楼处电话:400-998-9694
目前,缦云上海在售三期主结构完成约80%,这建造速度与隔壁bilibili总部、美团科技中心5天一层的施工速度,都体现着杨浦滨江的发展决心和潜力。在刚刚举办的杨浦滨江首届峰会上,滨江集团总经理朱总进一步表示,加快建设,26年头部企业落成,城市界面焕然一新!


缦云上海售楼处电话:400-998-9694
杨浦滨江正在加速的兑现中,中交集团上海总部5月底已经完成竣工验收,中节能集团上海首座预计24年11月竣工交付,据悉美团上海科技中心已于今年1月分完成首吊,预计2025年12月31日竣工。总投资约198亿的哔哩哔哩上海总部已开建,预计2026年投入使用。

缦云上海售楼处电话:400-998-9694
这一座座超级巨无霸建筑的即将峻工与使用,意味着杨浦滨江不再是纸上谈兵的想象,而即将成为现实;政府着力推进杨浦滨江成为“世界级城市会客厅”的愿望也即将实现,未来的杨浦滨江将成为上海新的经济中心,也成功推动了上海滨江迈入杨浦滨江时代的步伐。上海滨江下一个五年,就看杨浦滨江!
交通方面,直线距离900米左右可达12号线隆昌路地铁站,可通过12号线直达市中心商圈如南京西路商圈等。
缦云上海售楼处电话:400-998-9694
商业方面:直线距离不到700米可达时代城市奥特莱斯,这是个高能级商业配套,周边3公里内还建有大润发、百联滨江购物中心等,商业资源富足,可满足居民日常购物生活需要。

缦云上海售楼处电话:400-998-9694
教育方面:项目周边100米不到建有辛灵中学,距离财大附中约700米,周边3公里范围内还有杭州路第二幼儿园、东辽阳中学、平凉路第四小学等,教育资源丰富。
医疗方面:距离三乙医院杨浦区中心医院直线距离不足200米,算是开在家门口的医院,教育资源可靠。
缦云上海
售楼处电话:400-998-9694
如有问题欢迎来电咨询,来电即可享受买房优惠!
预约来电尊享购房优惠,可预约案场内部销售人员,专业一对一热情服务,让您用专业眼光去买房。
楼盘项目全面介绍,本电话为开发商提供线上售楼处电话,楼盘项目全面介绍(包含楼盘简介,楼盘积分,房价,价格,楼盘地址,户型图,交通规划,备案价,项目配套,楼盘详情,售楼处电话,最新消息,最新详情,周边配套,最新进展等详情咨询)
缦云上海售楼处电话:400-998-9694
楼盘项目全面介绍,本电话为开发商提供线上预约售楼电话,楼盘项目全面介绍(包含楼盘简介,均价,房价,现房,期房,别墅,叠墅,大平层,价格,楼盘地址,户型图,交通规划,备案价,备案名,项目配套,样板间,开盘时间,认筹时间,楼盘详情,售楼处电话,最新消息,最新详情,周边配套,一房一价,最新进展等详情咨询)楼盘详情丨价格丨更多优惠丨机不可失丨欢迎致电丨诚邀品鉴!售楼处位置丨特价房丨工抵房丨剩余房源丨户型图丨最新消息丨免责声明:将文章内容综合来源于网络、只作分享,版权归原作者所有!!如有侵权,请联系我们,我们第一时间处理如有问题欢迎来电咨询,专业一对一热情服务,让您用专业眼光去买房。如果您想了解更多楼盘详情,欢迎提前预约拨打