中国铁建·熙语售楼处电话☎:400-998-9694✔✔中国铁建·熙语售楼处电话☎:400-998-9694✔✔中国铁建·熙语位于黄浦江边,近地铁,宜居宜购,售楼处电话400-998-9694。
中国铁建·熙语
售楼处电话☎:400-998-9694✔✔
如有问题欢迎来电咨询,来电即可享受买房优惠!
预约来电尊享购房优惠,可预约案场内部销售人员,专业一对一热情服务,让您用专业眼光去买房。
楼盘项目全面介绍,本电话为开发商提供线上售楼处电话,楼盘项目全面介绍(包含楼盘简介,楼盘积分,房价,价格,楼盘地址,户型图,交通规划,备案价,项目配套,楼盘详情,售楼处电话,最新消息,最新详情,周边配套,最新进展等详情咨询)
中国铁建·熙语售楼处电话☎:400-998-9694✔✔

一、黄浦江边一公里范围内的稀缺资产
现约113.4公里的浦江之畔,上海城市的繁华源头,见证着城市百年来的横空腾飞。进入21世纪以来,黄浦江边一公里范围内的稀缺资产价值,重新被世人所认知,藏品级低密人居尤为一席难得。
得天独厚的江边生态优势,无论是定居百年的老上海,还是近年加入上海的新成员,无不对其心生向往,人们在这休憩、玩乐、欢笑、阅读…… 中国铁建·熙语距离黄浦江仅约785米(百度地图直线测距),是南上海不可多得的宜居社区。
中国铁建·熙语售楼处电话☎:400-998-9694✔✔

二、家门口就是运营中即刻能享的地铁。
在众多轨交盘中,运营中的能即刻享用的地铁,与正在新建中的地铁能级是完全不同的!即刻能享,通勤效率更高,无需等待,才“更值得买”!
就独家君自己的体验来说,【中国铁建·熙语】家门口的5号线无需换乘即可快速通达莘庄交通枢纽,与1号线无缝换乘,1号线是上海老牌“黄金线路”,串联上海多个核心CBD,这是远郊线所不能比的!

中国铁建·熙语售楼处电话☎:400-998-9694✔✔
三、约260米!妥妥“真”轨交!未来还有双轨环绕!
上海楼市不缺轨交盘,缺的是距离近的真轨交盘!
很多时候我们把直线距离1.5km的都算作轨交盘,但实际步行试试,没个十几分钟下不来,也因此距离轨交更近的,也更稀缺。
【中国铁建·熙语】距离5号线西渡站仅约260米,另外15号线南延伸在西闸公路也有预留站点, 未来项目有望双轨环绕,翻遍上海在售、待售轨交盘,TA完胜!
四、1站闵行,价格“打对折”!
【中国铁建·熙语】从家门口西渡站进站, 向北1站就是闵行,闵行今年送走“八开八罄”的1872后,新房基本和400-500万总价“拜拜”了。
中国铁建·熙语售楼处电话☎:400-998-9694✔✔
我们沿着5号线、15号线站点来看,5号线颛桥站,宝华某盘均价约 7万/㎡;5号线剑川路站旁约1.2公里的地块, 联动价6.2万/㎡;15号线元江路站,保利某盘约 6.5万/㎡...
也就是说现在闵行新房门槛价都要600万+了。
而1站进闵行的 【中国铁建·熙语】过会价43112/㎡(包含叠墅),高层均价或仅约3.8-3.9万/㎡,项目主力建面约91-100㎡3房,那总价就是300-400万级。
一江之隔, 一站地铁,价格“打对折”,
这样的高性价比,放眼上海都少有!
不仅新房市场,二手房市场更“亮眼”!
中国铁建·熙语售楼处电话☎:400-998-9694✔✔
1站之隔江川路,房龄在10年之内的小区,当代万国府OMA最新成交价 7.6万/㎡,2站之隔的东川路凤凰景苑小区,最新的 成交价6.7万/㎡...新盘华润江川路项目, 联动价5.85万/㎡

中国铁建·熙语售楼处电话☎:400-998-9694✔✔

也就是说, 1站地铁,同样100㎡户型,10年房龄小区,600米地铁,老闵行总价760万+。
地铁往后坐1站,西渡站,总价只要300万+,约260米地铁,还是全新的商品房...
一站地铁,房价直接打对折,而且还是更新、配置更高的小区!
中国铁建·熙语售楼处电话☎:400-998-9694✔✔
5号线西渡站260米,真正的轨交盘中铁建西渡项目——中国铁建熙语五期即将认购!
四期推售建面约81-91-100-121m²2-4房
均价42529元/㎡
五期推售建面约135-148㎡叠墅
过会均价5.12万/㎡
精装中央空调+地暖+清风
中国铁建·熙语售楼处电话☎:400-998-9694✔✔

中国铁建·熙语售楼处电话☎:400-998-9694✔✔
回眸美好初心,初见恰似重逢。中国铁建地产审视时代的期许,用对美好人居的产品精研,迭代沪上都会美好低密墅境场域。
仅为方案阶段示意图

中国铁建·熙语售楼处电话☎:400-998-9694✔✔

中国铁建·熙语售楼处电话☎:400-998-9694✔✔
建面约81㎡2房功能齐全,拥有朝南大面宽和全卧飘窗设计。
很适合小两口和小太阳家庭,上车价格非常温柔,300多万以往只能看非常偏远乡镇板块,如今能买一站闵行的地铁房,能级高太多,何必再看其它!

中国铁建·熙语售楼处电话☎:400-998-9694✔✔
建面约91㎡3房2卫,三开间朝南,客餐厅连通大阳台, 四飘窗设计,好户型该有的素质它都有。
“2卫”设计,比常规户型多配置出一个卫生间,并将洗漱台盆设置在公共空间中,可以有效解决“排队上厕所”的生活痛点,同时满足「2人上厕所+1人洗漱」的生活场景。
由此,不管是三口之家,还是三代人同居,都能有效提高空间使用效率,升级生活舒适度。

中国铁建·熙语售楼处电话☎:400-998-9694✔✔
建面约100㎡3房2卫,阳光三房,同等面积更多功能;宽幅南向观景阳台,把居住变成风景;步入式衣帽间,给予生活更多从容。

中国铁建·熙语售楼处电话☎:400-998-9694✔✔
建面约121㎡ 4房2厅2卫,宽境4房,拓宽空间尺度;大开间、进深短,通透采光;主卧独立卫浴,优雅随心的寝居感受。

中国铁建·熙语售楼处电话☎:400-998-9694✔✔
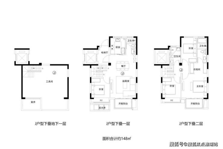
除此之外,项目还有 建面约135㎡3房2厅3卫上叠、建面约148㎡4房2厅3卫中叠以及建面约148㎡4房2厅3卫下叠。叠墅产品上有露台下有庭院!



中国铁建·熙语售楼处电话☎:400-998-9694✔✔
事实上, 叠墅在整个奉贤和闵行拥有很强的稀缺性:
奉贤5号线沿线, 从西渡到肖塘再到奉贤新城几乎都是清一色高层,没有别墅;
而闵行南部同样如此, 紫薇花园、光合上城、公园1872等等皆为高层。
效果示意图

中国铁建·熙语售楼处电话☎:400-998-9694✔✔
更值得点赞的是它的装修标准,如果说地铁房是占了地利,那高装标妥妥就是中国铁建高诚意的表达以及再造西渡标杆的决心。
划重点:
据了解,预计总价300-400万级的中国铁建·熙语竟然使用了 汉斯格雅、杜拉维特、威能等中环内高端住宅才会用到的品牌。

中国铁建·熙语售楼处电话☎:400-998-9694✔✔
特别在使用频次很高的卫生间、厨房,皆为高配,保证了业主后期的使用体验感。
比如卫浴,洗脸盆、座便器都选用杜拉维特;洗脸盆龙头、淋浴龙头用的都是汉斯格雅。
在厨房,配置摩恩的洗涤盆、洗涤盆龙头(可抽拉);灶具、吸油烟机均为老板品牌,值得一提,项目配备了同级少有的洗碗机。
东芝中央空调、威能地暖、百朗新风三大件也是标配!实话讲300-400万级新房配地暖的并不多,但要是买时不配备,后期加装可太难了。
有句话叫:“我可以暂时不用,但你不能没有”,地暖也是这样。

中国铁建·熙语售楼处电话☎:400-998-9694✔✔
另外,很多细节的交付让人倍感暖心!
比如,玄关柜、浴室柜+镜柜都是交付标准,你不用后期去家装店定制,甚至花时间配色; 厨房还贴心配备安吉尔净水器和西顿凉霸。
总得来说,在卫浴、厨房层面,项目装修质感比肩中环内高端住宅,其它配置也属于同级上乘水平。可以看得出 中国铁建在项目身上下足了血本。
事实上,装修的意义是什么?
我认为就是打造一种更高阶的生活方式!不管你在外面多辛苦,回家之后就该好好享受更舒服、更具质感的生活!中国铁建显然深谙这一道理!
约260米地铁房,解决通勤需求;
中国铁建·熙语售楼处电话☎:400-998-9694✔✔
高标准精装,完美契合高品质生活需求。
能把这两项最迫切需求拉满的,无疑就是300-400万级优选!

中国铁建·熙语售楼处电话☎:400-998-9694✔✔
土拍回顾及规划
2023年4月20日,上海第一批集中供地土拍,奉贤西渡街道D-01-11区域地块【即中国铁建熙语】共吸引了9家竞买人报名,分别为奉发、天安&象屿、华润、建发&联发、华发&越秀、中铁建、保利发展、招商、大家。
最终中铁建以总价23.472亿元成功竞得该地块,成交楼板价19740元/㎡,溢价率9.66%, 联动价42850元/m²。
项目东至扶拦路、南至D-01-13(中铁建香榭国际)、西至南横泾、北至西闸公路。距离5号线西渡站仅约300米(百度地图测距,仅供参考)。

中国铁建·熙语售楼处电话☎:400-998-9694✔✔

中国铁建·熙语售楼处电话☎:400-998-9694✔✔
根据设计方案显示,项目拟建 15幢高层单元式住宅(含1幢20层保障房)、 10幢多层单元式住宅(5层叠墅)、9幢社区配套等。

中国铁建·熙语售楼处电话☎:400-998-9694✔✔
项目以18层、14层的高层/小高层为主力户型,其中14层的小高层最大楼间距可以达到近75米(一般来说,市面上看到最大60米的栋距,已经比较难得了),另外还有48米栋距。其余除别墅外的栋距在30米左右。
中铁建西渡项目最新设计方案

中国铁建·熙语售楼处电话☎:400-998-9694✔✔
中国铁建熙语汲取江南园林式的婉约秀美灵感,传承着海派文化的时代精髓,也映鉴着百年上海的生活缩影。
利落简约的建筑设计,通过材质与色彩的搭配,呈现雅奢共赏的美学享受。 从社区大门酒店式落客至精致的楼栋入户,五进归家之路勾绘层层递进的身心沉静体验。


中国铁建·熙语售楼处电话☎:400-998-9694✔✔

约7000㎡中轴景观,涵盖约3500㎡多功能中央草坪和约200米景观长廊,日常簇拥花间草木,让建筑与绿意和谐生长。

中国铁建·熙语售楼处电话☎:400-998-9694✔✔
近10000方实景示范区,生活无需想象:以高端隐奢酒店的生活方式为模板,营造花园酒店般轻奢雅致的格调;创新社区客厅,以骑楼为设计灵感,整合健身房功能,不仅将中铁建产品的昭示力与设计能力毫无保留的展现,所见即所得,让您更直观的感受到未来生活的场景与美好。

以江南人文精神为源点,打造 两轴一环五进空间,江南礼序归家轴串联启迎盛礼、筑阙会友、归家华堂等5重礼制。尊崇归家;健康运动轴以24小时跑道为社区活力生活环,串联儿童乐园、长者康养、疗愈花园等 10大生活场景,营造全龄全时的江南诗意生活。

中国铁建·熙语售楼处电话☎:400-998-9694✔✔
逐层递进,四时流转不停的风景,满庭葱茏绿意,重拾江南之美,重现诗与远方的开篇故事。
项目意向图

中国铁建·熙语售楼处电话☎:400-998-9694✔✔
全龄主题架空层泛会所,预留了大量可交互的社交空间,为全龄居者提供丰富多彩的休闲活动场所。以兴趣为纽带,柔化人与人的边界。在这里,可以结交新认识的邻里朋友,或参与一场阅读计划,或约一场下午茶,见证从“我”到“我们”的社交裂变,成为城市和住区的活力之源。
项目意向图

中国铁建·熙语售楼处电话☎:400-998-9694✔✔
在浩瀚无垠的宇宙里,从不失约任何童心和浪漫。中国铁建熙语以星球部落探险记为主题营造着一场童年的梦。
在这里,孩子释放童真,大人寻回童真,从中感受美好,亲近自然,找到最质朴的快乐,展现鲜活热络的生命力。此起彼伏的笑声散落播撒,结出一颗颗纯真的欢乐果实,为星球部落注入源源不断的澎湃活力。

项目意向图

中国铁建·熙语售楼处电话☎:400-998-9694✔✔
而场景营造不是生活的目的,中国铁建熙语更关注场景里催生的内容活力,探索更具品质的烟火生活,打造闵行南区域更高级的生活形态,在灵动的建筑中演绎有温度的生活场景,唤起对美好生活的共鸣,也许正是中国铁建熙语的价值和意义。
项目意向图

中国铁建·熙语售楼处电话☎:400-998-9694✔✔
光影之间,渲染无数美好生活场景。在闵行南开启蝶变的十字路口,中国铁建熙语洞见都会生活的趋势,扎根城市烟火的肌理,用独特、多元的缤纷场景,刻录时间经过的痕迹,书写美好的扉页。
生活配套
作为闵行进入奉贤的首站,西渡板块自然是首当其冲的选择!天然位置好,指导价更具有优势!自住完全没有问题。
交通方面:项目距离5号线西渡站仅260米,妥妥的地铁盘。

中国铁建·熙语售楼处电话☎:400-998-9694✔✔
自驾方面,也比较便捷。有虹梅南路越江隧道、闵浦二桥和刚开通的闵浦三桥联通两岸,另有金海路越江隧道连接中环,虹梅南路越江隧道、S4沪金高速连接外环、s32申嘉湖高速等。往南可至南桥,海湾、金山等地,往北可至莘庄、徐汇,奉浦大桥走申嘉湖高速往东可至浦东机场。

中国铁建·熙语售楼处电话☎:400-998-9694✔✔
商业方面:西渡板块内的商业,完全可以满足日常所需,如巧购、天择生活广场,地铁站旁就是连城商业广场。向北三站可到剑川路上盖龙湖闵行天街,五站可至颛桥万达,八站可达莘庄,有仲盛世界商场、凯德龙之梦,往南三站环城东路站则有奉贤宝龙城市广场等,满足一应生活需要。

中国铁建·熙语售楼处电话☎:400-998-9694✔✔
教育配套:项目周边有上海市公立一级待问幼儿园,西渡学校(九年一贯制),在奉贤排名较靠前。(具体学区划分以教育部门规定为准)

中国铁建·熙语售楼处电话☎:400-998-9694✔✔
医疗方面:项目周边有新华医院、中国福利会国际和平妇幼保健院、西渡医院、上海市第五人民医院、上海奉浦医院、奉贤区中医院、奉贤区中心医院等医疗资源,能够为您及和家人提供全方位的健康保障。

生态休闲:项目不远有在建的文体中心,还有西渡公园。
西渡公园

中国铁建·熙语
售楼处电话☎:400-998-9694✔✔
如有问题欢迎来电咨询,来电即可享受买房优惠!
预约来电尊享购房优惠,可预约案场内部销售人员,专业一对一热情服务,让您用专业眼光去买房。
楼盘项目全面介绍,本电话为开发商提供线上售楼处电话,楼盘项目全面介绍(包含楼盘简介,楼盘积分,房价,价格,楼盘地址,户型图,交通规划,备案价,项目配套,楼盘详情,售楼处电话,最新消息,最新详情,周边配套,最新进展等详情咨询)
中国铁建·熙语售楼处电话☎:400-998-9694✔✔
楼盘项目全面介绍,本电话为开发商提供线上预约售楼电话,楼盘项目全面介绍(包含楼盘简介,均价,房价,现房,期房,别墅,叠墅,大平层,价格,楼盘地址,户型图,交通规划,备案价,备案名,项目配套,样板间,开盘时间,认筹时间,楼盘详情,售楼处电话,最新消息,最新详情,周边配套,一房一价,最新进展等详情咨询)楼盘详情丨价格丨更多优惠丨机不可失丨欢迎致电丨诚邀品鉴!售楼处位置丨特价房丨工抵房丨剩余房源丨户型图丨最新消息丨免责声明:将文章内容综合来源于网络、只作分享,版权归原作者所有!!如有侵权,请联系我们,我们第一时间处理如有问题欢迎来电咨询,专业一对一热情服务,让您用专业眼光去买房。如果您想了解更多楼盘详情,欢迎提前预约拨打