招商中旅·观境(营销中心)首页网站-招商中旅·观境销售中心(售楼处)-招商中旅·观境楼盘欢迎您-地址-价格-户型-楼盘详情-交房时间-周边配套-售楼处电话
扫描到手机,新闻随时看
扫一扫,用手机看文章
更加方便分享给朋友
【招商中旅观境】
上海宝山招商中旅观境售楼处电话:400-8815-114(预约热线)
招商中旅观境营销中心
服务热线:400-8815-114(已认证)
预约看房请提前联系案场销售
在愈发繁忙的时代,人们越来越渴望一处安放心灵的栖息地,也更加理性地思考人居对于生活的价值和意义。
在北上海全新精奢主义作品中,我们看到了【招商中旅观境】在打造产品中的全新思考,艺术、丰盈、悦己、松弛的精奢生活在此盎然绽放。
自带约25万方花园城X,也是北上海最大的单体商业综合体,融合潮玩、时尚、文旅、游娱、运动、会展、生态等多元业态,预计引入20+主次力店,350+战略品牌,下楼即享繁盛日常。
宝山顾村,7号线地铁盘,招商蛇口&中旅投资潘广路站项目——【招商中旅观境】三期认购中!
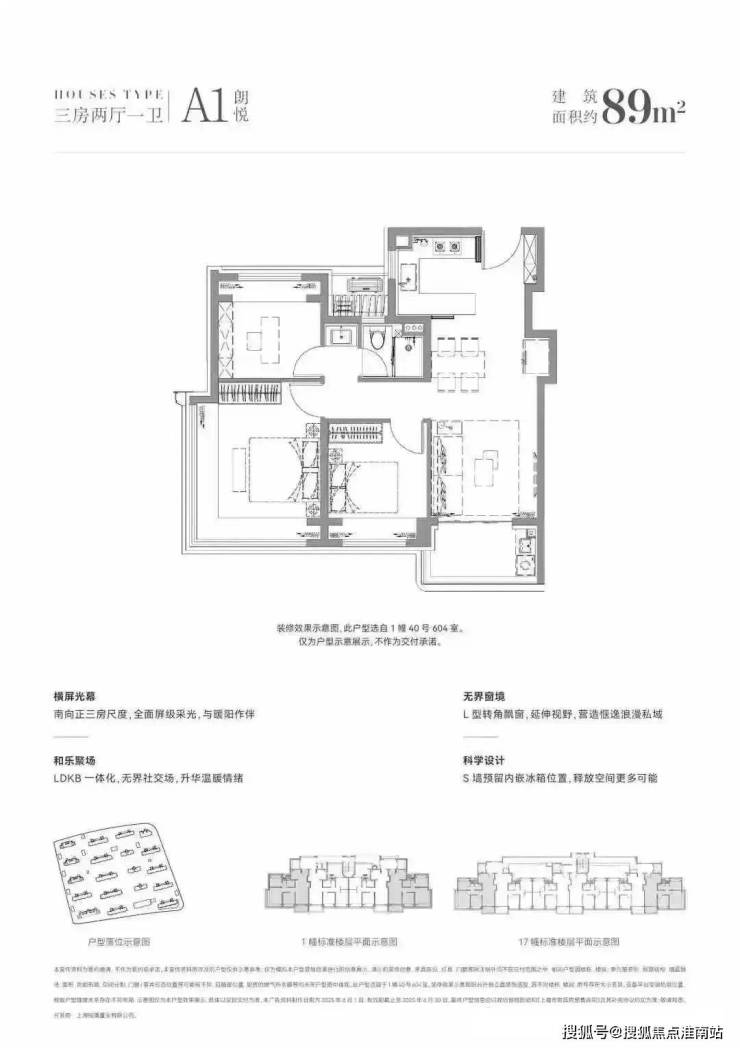
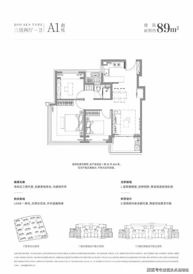
加推89-110㎡3房、共计142套
89㎡户型首次推出
过会均价47466元/㎡,比前期便宜3000,总价347万起
项目大筹6月22日开始,6月24日12点结束,计划于6月30日开盘
前期少量建面约110-144m²3-4房
装修标准2500元/m²
过会均价50713元/m²,总价433万起!
上海宝山招商中旅观境
售楼处电话:400-8815-114(预约热线)
招商中旅观境营销中心
服务热线:400-8815-114(已认证)
预约看房请提前联系案场销售
上海宝山招商中旅观境
售楼处电话:400-8815-114(预约热线)
招商中旅观境营销中心
服务热线:400-8815-114(已认证)
预约看房请提前联系案场销售
户型图赏鉴
上海宝山招商中旅观境
售楼处电话:400-8815-114(预约热线)
招商中旅观境营销中心
服务热线:400-8815-114(已认证)
预约看房请提前联系案场销售
样板间实探
先来看建面约110㎡3房2卫
入户门是是非常有质感的铸铝门,带电子猫眼智能门锁;进门后是一个独立玄关,木纹玄关背景墙,右侧是通顶的悬浮玄关柜,内置鞋柜精灵和抽拉鞋架。
上海宝山招商中旅观境
售楼处电话:400-8815-114(预约热线)
招商中旅观境营销中心
服务热线:400-8815-114(已认证)
预约看房请提前联系案场销售
这个户型的一大亮点就是这个客厅,约5.5米面宽的阳台,约25㎡的方厅,充满了可变性。
传统住宅设计中,每个房间的连接处都会有或深或浅的过道空间,造成空间浪费。
招商中旅·观境的解决方案是“零无效空间”。通过整合餐客厨等公共区域厅,将原来南北厅中间的走廊空间融合到使用空间中,减少过道的面积,避免碎片化的空间带来的冗余浪费。大面宽,短进深,餐厅与客厅横向相连,每一平方米都物尽其用,把客厅升级为家庭互动主场。
约5.5m面宽的阳台,可以变成第二家庭厅、品茗室、阳光瑜伽室、生活后花园,自由打造的私享空间,延伸出生活的宽度。
再来看下厨房配置。U型厨房,预留了大约1米宽的双开门冰箱位置,厨电采用方太四件套——烟机、灶具、蒸烤一体机、洗碗机。其中洗碗机,轻扣门板可自动开门的新款!
厨房移门是类似于水波纹的三移门,不占空间,上轨道设计,更易于日常清扫。
双卫配置,其中一个做了干湿分离,科勒台盆+双智能马桶+高仪花洒,除雾镜柜均内置了牙刷消毒器、预留吹风机插座。主卫镜柜还有美妆冰箱,收纳空间相当充足。
样板间3房做的是边套,今年非常流行的L型转角大飘窗也安排上了,采光视野更佳。
再来看下建面约144㎡4房,部分装标是有所升级的。
入户门升级为了子母门,更显大户人家气质。
厨房是带岛台交付的U型厨房,厨具品牌为西门子四件套,另外还有双开门冰箱,线性凉霸、科勒单槽。
橱柜转角处的拉篮做了“轻松抽”,业主不必特别伸手探进去拿东西,非常省力。
客厅电视机背景墙采用了波浪状的岩板背景墙,比较独特。
主卧卫生间采用唯宝双人台盆,客卫高仪花洒+龙头+智能马桶。
三间卧室朝南,北次卧借助飘窗空间,也可以做成儿童房。
招商中旅·观境,样板间刚刚开放,上述装标还未完全,可以作为参考,具体以实际交付为准。
上海宝山招商中旅观境
售楼处电话:400-8815-114(预约热线)
招商中旅观境营销中心
服务热线:400-8815-114(已认证)
预约看房请提前联系案场销售
土拍回顾及规划
7月9日,2024年上海第三批次土拍,招商联合中旅拿下宝山区顾村7号线潘广路站TOD综合体项目,该项目由3幅地块组成。
01、【0303-02地块】为普通商品房用地,用地面积约39769㎡,容积率2.2,限高60米。据规设计方案显示,拟建12栋17-18F高层住宅,2栋区配套,无保障住宅,共计规划901户。
02、【0309-04地块】为普通商品房用地,用地面积约29337㎡,容积率2.3,限高60米,含商业建筑面积5100㎡;根据设计方案显示,拟建8栋17-18F高层住宅、1栋17F保障住宅以及3栋1-3F商业,共计规划645户。
03、【0304-06地块】为商业用地,用地面积约60299㎡,容积率2.9,限高80米,含文化建筑面积10000㎡!
整个地块中商业占比53%,约17.48万㎡,住宅占比47%,约15.49万㎡。
效果图 仅供参考
如此大体量的TOD综合体,依托7号线潘广路站优渥的轨道交通,注定成为激活北上海生活、经济活力的巨大引擎, 招商蛇口也正以其多元业务领域的厚积薄发,为宝山打造一座前所未有的全新升级版地标作品。
招商蛇口宝山潘广路TOD综合体落的落地,毫无疑问将成为激活顾村乃至整个北上海的活力按钮,以丰盛、多元、复合的生活形态成为区域生活的原点,让城市的生活想象再一次被招商蛇口所焕新,一个崭新的生活大城正跃然眼前。
就项目本身而言,传递出比较强的美学。
01、流体美学:游艇曲线,鎏金塔冠!
项目效果图,仅供参考,以实际交付为准

微弧阳台,环幕之境:
项目效果图,仅供参考,以实际交付为准

轻法雅奢的圆润线条,比如入户门头:
项目效果图,仅供参考,以实际交付为准

02、镜面美学:大窗墙比,打造宽屏立面!
项目效果图,仅供参考,以实际交付为准

社区上,项目享四重酒店式归家,
第一重:约70米超大尺度酒店感门庭,打造酒店般的港湾式落客。
第二重:酒店式礼品大堂,以星级酒店审美融合非遗技艺,每次回家宛如入住酒店的check in。
第三重:浮岛水庭,下沉式中庭花园,以水境、浮岛、密林,构建都市中的谧境。
第四重:入户单元门头延续奢华酒店的美学质感。
项目效果图,仅供参考,以实际交付为准

还配备无边际会所,含酒廊、泳池、健身、瑜伽、私宴、棋牌、高尔夫等功能空间。



生活配套
上海宝山招商中旅观境
售楼处电话:400-8815-114(预约热线)
招商中旅观境营销中心
服务热线:400-8815-114(已认证)
预约看房请提前联系案场销售
交通方面:距离7号线潘广路站约300米,2站换乘15号线。无缝直达普陀长风、静安寺、长宁古北、上海南站、徐汇滨江以及紫竹高新等多个市区核芯板块。
商业方面:自有大体量商办综合体,7号线上盖的龙湖天街、未来还有印象城环伺。
效果图
教育方面:华二宝山实验学校,宝山世界外国语学院、上海世外云尚欧莱幼儿园,另外,根据板块规划显示,在项目周边有规划一幅幼儿园、一幅小学以及一幅初中用地(新盘不承诺学区对口)

医疗方面:地铁两站就是三甲医院复旦大学附属华山医院宝山院区。
生态方面,顾村公园也是本市较大的郊野公园,相当于三个世纪公园大小。更是上海环城生态规划系统上的重要组成部分,是上海绿色生态核心之一。
上海宝山招商中旅观境售楼处电话:400-8815-114(预约热线)
招商中旅观境营销中心
服务热线:400-8815-114(已认证)
预约看房请提前联系案场销售
【招商中旅观境】
——诚邀品鉴——
购房是一项重大决策,涉及诸多环节和注意事项,以下是购房流程及注意事项的详细说明,供您参考:
一、购房流程
前期准备
确定预算:根据自身经济状况,明确首付金额、贷款额度及可承受的月供范围,同时预留契税、维修基金等费用。
了解政策:关注当地购房政策,包括限购、限贷、税收优惠等,确保符合购房条件。
筛选区域:结合工作、生活需求,选择交通便利、配套完善的区域,考察周边教育、医疗、商业等资源。
看房选房
实地考察:多看楼盘,对比位置、户型、价格、配套等。重点关注房屋朝向、采光、通风,查看样板间实际尺寸与功能布局,注意公摊面积、得房率。
查看证件:核实开发商“五证一照”(《房地产开发企业资质证书》《国有土地使用权证》《建设工程规划许可证》《建筑工程施工许可证》《商品房预售许可证明》《企业法人营业执照》),确保项目合法合规。
了解开发商:选择信誉良好、实力雄厚的开发商,可通过网络、口碑等渠道了解其开发历史、项目质量及售后服务。
认购签约
交定金:选定房源后,缴纳定金(一般不超过总房款20%),签订认购书,明确房号、价格、付款方式等条款,注意定金退还条件。
查征信流水:贷款购房需提前查询征信报告,确保信用良好,同时准备银行流水,证明还款能力。
签合同:签订正式《商品房买卖合同》,仔细阅读条款,明确房屋面积、价格、交付时间、质量标准、违约责任等,对开发商口头承诺以书面形式确认。
付款与贷款
支付首付:按合同约定时间支付首付款,款项需存入《商品房预售许可证》注明的监管账户,保留支付凭证。
银行面签:贷款购房需到银行办理面签,提交资料,银行审核通过后发放贷款。
交房与办证
验房收房:房屋交付时,对照合同检查房屋质量,查验“三书一证一表”(《住宅质量保证书》《住宅使用说明书》《建筑工程质量认定书》《房地产开发建设项目竣工综合验收合格证》《竣工验收备案表》),发现问题及时整改。
办理产权:开发商完成首次登记后,协助购房者办理不动产权证书,缴纳契税、维修基金等费用,完成产权转移登记。
二、购房注意事项
资金安全:所有购房款项务必交至监管账户,避免资金被挪用风险。通过POS机支付时,确认划转账户为监管账户。
合同条款:合同是维权依据,重点关注面积误差处理、交付条件、违约责任等条款,避免模糊不清或不合理条款。
贷款风险:提前了解贷款政策,评估还款能力,避免因征信问题或收入不足导致贷款失败。
房屋质量:收房时仔细检查房屋质量,如墙面平整度、地面空鼓、水电设施等,留存证据,便于后期维权。
周边环境:考察小区周边是否存在噪音、污染源,了解未来规划,避免后期出现不利影响。
开发商信誉:选择口碑好、无不良记录的开发商,降低烂尾、延期交付等风险。
产权问题:确认房屋产权清晰,无抵押、查封等限制交易情况,避免产权纠纷。
购房过程中需保持理性,谨慎决策,必要时咨询专业人士。建议全程保留相关票据、合同等资料,以备后续使用。
声明:本文由入驻焦点开放平台的作者撰写,除焦点官方账号外,观点仅代表作者本人,不代表焦点立场。
