国贸海上原墅售楼处电话:400-998-9694国贸海上原墅售楼处电话:400-998-9694国贸海上原墅位于松江广富林,主打低密墅区,均价64849元/㎡,售楼处电话400-998-9694,优惠多多,认购火爆。
国贸海上原墅
售楼处电话:400-998-9694
如有问题欢迎来电咨询,来电即可享受买房优惠!
预约来电尊享购房优惠,可预约案场内部销售人员,专业一对一热情服务,让您用专业眼光去买房。
楼盘项目全面介绍,本电话为开发商提供线上售楼处电话,楼盘项目全面介绍(包含楼盘简介,楼盘积分,房价,价格,楼盘地址,户型图,交通规划,备案价,项目配套,楼盘详情,售楼处电话,最新消息,最新详情,周边配套,最新进展等详情咨询)
国贸海上原墅售楼处电话:400-998-9694
最新消息!松江区广富林街道,国贸&松江交投广富林项目——【国贸海上原墅】火热认购中!
作为广富林板块的“低密墅区标杆”,以产品力的全维进阶,重新定义松江改善人居天花板!
国贸海上原墅售楼处电话:400-998-9694

项目毗邻广富林文化遗址与G60科创走廊,既承接广富林历史文脉的纯粹基因,又融入松江产城融合的现代活力,周边松江印象城、松江大学城等优质文教氤氲,产业、商业、交通、生态、教育等城市资源汇聚,以根深叶茂的松江人文书写崭新的当代故事。

国贸海上原墅售楼处电话:400-998-9694
对话广富林4000年文明,项目提炼传统建筑形制,以艺术手法创作“新江南学院派”,向世界展现东方美学的昂扬姿态,汲取陆润玉“富林十景”的灵感来源,建构丰富景观园林和生活场景,重新定义“世外桃源、隐谧院落”的生活方式。

国贸地产的每一次落笔与营造,皆是为时代翘楚兑现“一生之宅”的美好承诺。

国贸海上原墅售楼处电话:400-998-9694
项目过会均价64849/㎡,首开122套
推售建面约108-124m²6-8层洋房
均价5.22万/㎡,总价530万起
建面约141-150m²四层叠墅
均价6.28万/㎡,总价805万起
建面约157-201m²联排
均价7.69万/㎡。总价1123起
项目大筹认购结束,录得230组+认购,认购率189%,触发积分制!
小筹认购中,计划于5月24日开盘!

国贸海上原墅售楼处电话:400-998-9694
项目首日认购约100+组,售楼处及示范区内外摩肩接踵,现场十分火爆,挤满了关注本项目已久的购房者。

认筹现场实景图
现场人头攒动,咨询声、刷卡声此起彼伏,沙盘区、洽谈区挤满人,置业顾问连轴转仍应接不暇,甚至有购房者当场喊出 “非此盘不买”。

国贸海上原墅售楼处电话:400-998-9694
认筹现场实景图

认筹现场实景图

国贸海上原墅售楼处电话:400-998-9694

国贸海上原墅售楼处电话:400-998-9694
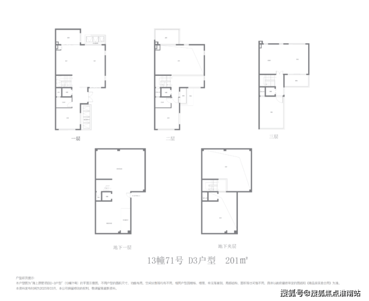
户型图赏鉴
洋房方面,项目主推建面约108㎡3房和建面约124/145㎡4房。全部是一梯两户,三开间朝南飞机户型,属于市面上更受欢迎的一类。加上洋房天生的高得房率属性,尺度感和舒适度远超同价位竞品!


项目叠墅包含建面约141㎡上叠和建面约150㎡下叠
The project includes a stacked villa with a construction area of approximately 141 square meters and a stacked villa with a construction area of approximately 150 square meters
而且比起市面上其他叠墅产品,国贸海上原墅为精装交付,为业主节约了大量的装修成本与时间。
Moreover, compared to other stacked villa products on the market, Guomao Haiyuan Villa is delivered with high-end decoration, saving homeowners a lot of decoration costs and time.
国贸海上原墅售楼处电话:400-998-9694
Guomao Haiyuan Villa Sales Office Phone: 400-998-9694
且从户型图上看,横厅以及内庭院挑空等设计,户型设计更优秀且实际利用率更高。
Moreover, from the layout plan, the horizontal hall and internal courtyard are designed with overhanging spaces, resulting in better layout design and higher actual utilization rate.


国贸海上原墅售楼处电话:400-998-9694
Guomao Haiyuan Villa Sales Office Phone: 400-998-9694
重点聊聊项目的联排产品,要知道在松江新城,叠加已经算珍惜物种,更不用说联排别墅。上一次联排别墅的供应,广富林的合生广富汇,已经在10年之前!
Let's focus on the connected row products of the project. It should be noted that in Songjiang New City, stacking is already a precious species, not to mention the connected row villas. The last time the supply of townhouses was from Hopson Guangfu Hui in Guangfulin was 10 years ago!
相比大平层“一层不变”的生活,上下5层的国贸海上原墅的联排别墅生活情境更立体,更个性化,更私密,更适配大家族多代人居住。
Compared to the "one floor unchanged" lifestyle of a large flat, the townhouse living environment of Guomao Haiyuan Villa with five floors above and below is more three-dimensional, personalized, private, and suitable for multi generational living of large families.
同时别墅户型的面宽、采光、收纳、通透、得房率等都做到尽善尽美,让家里的每一位成员都有更舒适的起居环境。
At the same time, the width, lighting, storage, transparency, and occupancy rate of the villa layout are all perfect, providing a more comfortable living environment for every member of the family.
国贸海上原墅联排别墅设计约5.65米层高地下室,一层客厅挑空约6.45米,还设计了类似天井内庭院空间(不计入建筑面积),这些灵动空间都能随业主心意改造。并且三层配备双露台,听风细雨惬意非凡。
The original villa in Guomao Sea is designed with a 5.65-meter-high basement and a 6.45-meter overhanging living room on the first floor. It also features a courtyard space similar to a courtyard (not included in the building area), which can be transformed according to the owner's preferences. And the third floor is equipped with dual terraces, making it extremely comfortable to listen to the wind and rain.



国贸海上原墅售楼处电话:400-998-9694
土拍回顾及规划
2024年5月28日,上海第二批次土拍,国贸以26.98亿元摘得松江区广富林街道SJC10004单元2街区04-02号地块。
地块四至范围:东至辰晓路,西至龙源路,南至广轩路,北至骏安路。

国贸海上原墅售楼处电话:400-998-9694
Guomao Haiyuan Villa Sales Office Phone: 400-998-9694
项目占地面积约8.03万方,容积率1.2,计容面积约9.64万方;全装修比例50%!指导价6.3万/㎡,装标要求不低于2500元/㎡!
The project covers an area of approximately 80300 square meters, with a plot ratio of 1.2 and a calculated capacity of approximately 96400 square meters; Full decoration ratio of 50%! The guide price is 63000 yuan/square meter, and the installation standard requirement is not less than 2500 yuan/square meter!
根据设计方案显示,项目拟建9栋7-8F多层住宅、9栋4F多层住宅、12栋3F低层住宅、1栋8F保障房以及若干社区配套用房组成,共计规划778户(含保障房)。
According to the design plan, the project plans to construct 9 7-8F multi story residential buildings, 9 4F multi story residential buildings, 12 3F low rise residential buildings, 1 8F affordable housing building, and several community supporting buildings, totaling 778 households (including affordable housing).
项目推出洋房、叠墅、联排三种产品,其中洋房约381套,叠墅约132套,联排约162套。
The project offers three types of products: villas, townhouses, and row houses, with approximately 381 villas, 132 townhouses, and 162 row houses.

国贸海上原墅售楼处电话:400-998-9694
亮点在于,项目容积率只有1.2,地面无车位,全人车分流,规划地下车位1414辆,小区在西南角规划了下沉式庭院和配套用房,还有公共开放空间。

国贸海上原墅售楼处电话:400-998-9694
国贸地产是世界500强企业国贸控股集团核心成员企业,已在松江深耕超过10年,成功开发了包括国贸海屿佘山、国贸梧桐原、国贸余山原墅等高端住宅产品在内10个标杆作品,深受高端圈层的追捧。如今强强联手必然超越以往,再立标杆!
项目没有采取国贸的标准产品线,而是因地制宜融入广富林文脉,塑造全新的“新江南学院派”风格建筑。

国贸海上原墅售楼处电话:400-998-9694
外立面方面,项目汲取广富林文化精髓再造东方屋宇,采用渐暖色石材、银灰色及香槟色铝板和涂料的组合,带来厚重与轻盈的平衡,在彰显文化豪宅的同时又包含国际风骨,整体呈现诗意东方之美。

国贸海上原墅售楼处电话:400-998-9694
社区景观方面,项目以 "富林风华,十景多花园"为核心理念,通过现代设计语言重构《富林十景》的山水意象,将 "山、水、茶、酒、舟、市" 等江南文化符号有机融入空间序列营造 "一步一景,移步异景" 的沉浸式归家体验。

国贸海上原墅售楼处电话:400-998-9694
Guomao Haiyuan Villa Sales Office Phone: 400-998-9694
所谓“无会所,不豪宅”。
The so-called 'no clubhouse, no mansion'.
高阶会所是圈层进阶的社交场,更是分享志趣和品味的绝佳之处。然而,别说外环外新房,即使是大部分市区项目,也鲜有带高阶会所的;极个别有会所的项目,总价也在3000万级,上车门槛高不可攀。
A high-level club is a social arena for advanced circles, and it is also an excellent place to share interests and tastes. However, not to mention the new houses outside the outer ring, even most urban projects rarely have high-end clubs; Very few projects with clubhouses have a total price of around 30 million yuan, making it difficult to get on board.
国贸海上原墅作为广富林溯源之作,打造诗意会所空间,包含泳池、咖啡厅、私宴厅、下沉庭院、健身房等功能。并且引入黑松、山石、景墙、草坪等人文自然资源,呈现一处充满国风艺术感的社交场!
As a masterpiece of Guangfulin, Guomao Haiyuan Villa creates a poetic clubhouse space that includes functions such as a swimming pool, coffee shop, private banquet hall, sunken courtyard, and fitness center. And introduce cultural and natural resources such as black pine, mountain rocks, scenic walls, lawns, etc., presenting a social arena full of Chinese style art!

国贸海上原墅售楼处电话:400-998-9694

生活配套
交通方面:项目距离地铁站点较远,最近的也是东侧3公里处的9号线松江大学城站,出行主要靠公交接驳和自驾。所以,项目主打的是低密和稀缺。
商业方面:项目周边涵盖了约60万方(数据来源:上海松江)综合性商业集群——松江万达、开元地中海、五龙广场、马利来广场......还有地标性商业松江印象城一期!更有印象城二期(待建成),一期+二期总商业体量将高达约40万方!

国贸海上原墅售楼处电话:400-998-9694
教育方面:项目周边落座了松江大学城、上海外国语大学松江外国语学校、上海外国语大学附属外国语学校松江云间中学、上海实验学校松江新城分校(规划中),还有华东政法附属学校、上师大附属学校、东华大学附属学校等丰富的教育资源。(注:本资料中学校信息仅作介绍不做入学承诺,项目对口学校最终以教育部门划分为准。)

国贸海上原墅售楼处电话:400-998-9694
医疗方面:附近有上海市第一人民医院南院,为三甲综合性医院,以及养志康复医院、

国贸海上原墅售楼处电话:400-998-9694
生态休闲:项目西侧一路之隔就是广富林文化遗址、广富林郊野公园、直线距离约1km+是辰山植物园,北面直线距离约3km是佘山国家森林公园、月湖雕塑公园等。

1、什么是房产:房屋产权的简称。
2、什么是地产:是指土地财产。
3、什么是房地产:是房产和地产的总称。
4、什么是房地产业:从事房地产开发、建设、经营、管理以及维修、装饰和服务的综合性产业。
5、什么是房地产开发:是指在依法取得土地使用权的土地上按照使用性质的要求进行基础设施、房屋建筑的活动。
6、什么是土地开发:是将“生地”开发成可供使用的土地。
7、集体土地是指:农村集体所有的土地。
8、征用土地是指:国家为了公共利益的需要,可依照法律规定对集体所有的土地实行征用。
9、什么是土地所有权:是指国家或集体经济组织对国家土地和集体土地依法享有的占有、使用、收益和处分的权能。
10、什么是土地使用权的出让:指国家以协议、招标、拍卖的方式将土地所有权在一定年限内出让给土地使用者,由使用者向国家支付土地使用权出让金的行为。
11、什么是土地使用权转让:是指土地使用者通过出售、交换、赠与和继承的方式将土地使用权再转移的行为。
12、什么是地籍、产籍:是对在房地产调查登记过程产生的各种图表、证件等登记资料,经过整理、加工、分类而形成的图、档、卡、册等资料的总称。
13、生地是指:不具备开发条件的土地。
14、熟地是指:已完成三通一平(水、电、道路,土地平整)或七通一平,具备开发条件的土地。
15、什么是宗地:是地籍的最小单元,是指以权属界线组成的封闭地块。
16、什么是宗地图:是土地使用合同书附图及房地产登记卡附图。它反映一宗地的基本情况。包括:宗地权属界线、界址点位置、宗地内建筑位置与性质、与相邻宗地的关系等。
17、证书附图是指:房地产后面的附图,主要反映房地产情况及房地产所在宗地情况。
18、什么是物业管理:泛指一切有关房地产开发、经营、商品房销售、租赁及售后服务。
19、什么是业主委员会:是在物业管理区域内代表全体业主实施自治管理的组织。是代表
物业全体业主合法权益的社会团体,其合法权益受国家法律保护。
20、业主委员会是如何产生的:由业主大会从全体业主中选举产生。
21、住房补贴是指:国家为职工解决住房问题而给予的补贴资助。
22、房屋的所有权是指:对房屋全面支配的权利。
23、房地产交易的两种主要形式是:地产交易形式与房产交易形式。
24、建筑物是指:人工建造而成的房屋和构筑物。
25、构筑物是指:建筑物中除房屋以外的东西。
26、什么是期房:是指消费者在购买时不具备即买即可入住的商品房。
27、期房是如何介定的:房地产开发商拿到商品房预售许可证开始至取得房地产权证大产证或竣工验收合格可以直接入住使用)为止。
28、什么是预售合同:消费者在购买期房时签定的销售合同。
29、什么是现房:是指消费者在购买时具备即买即可入住的商品房,即开发商已办妥所售的商品房的大产证(或已经竣工验收合格并交付使用)的商品房。
30、什么是毛坯房:房地产商交付屋内只有门框没有门,墙面地面仅做基础处理而未做表面处理的房叫毛坯房。
31、什么是成品房:是指对墙面、天花、门套、地板实行装修。
32、什么是商品房:是指以完全的市场价格向购房者出售的房子。
33、商品房预售是指:在房地产尚未建成以前,房地产的经销商在取得受买人一定数量的定金后,将期房出售给受买人。
34、商品房现售是指:指房地产开发企业将竣工验收合格的商品房出售给买受人。
35、二手房通常指的是:再次进行买卖交易的住房。
36、经济适用房指的是:面向中低收入家庭的普通住宅。
37、例出3种以上的安居房的种类:准成本房、全成本房、全成本微利房和社会微利房。
38、低层住宅的介定:1-3层的住宅。
39、多层住宅的介定:4-6层的住宅。
40、小高层住宅的介定:7-11层的住宅。
41、中高层住宅的介定:12-16层的住宅。
42、高层住宅的介定:16层以上为高层住宅。
43、超高层建筑的介定:总高度超过100米的建筑。
44、商品房的结构是指:房屋主体所使用的施工工艺和用材。
45、钢结构的意思是:承重的主要结构是用钢材料建造的,包括悬索结构。
46、钢混结构的意思是:承重的主要结构是用钢和混凝上建造的。
47、砖木结构的意思是:承重的主要结构是用砖、木材建造的。
48、砖混结构的意思是:主要是砖墙承重,部分是钢盘混凝土承重的结构。
49、框架结构的意思是:以钢筋混凝土浇捣成承重梁柱,再用预制的隔墙分户的结构。
50、开间指的是:一间房屋内一面墙的定位轴线到另一面墙的定位轴线之间的实际距离。
国贸海上原墅
售楼处电话:400-998-9694
如有问题欢迎来电咨询,来电即可享受买房优惠!
预约来电尊享购房优惠,可预约案场内部销售人员,专业一对一热情服务,让您用专业眼光去买房。
楼盘项目全面介绍,本电话为开发商提供线上售楼处电话,楼盘项目全面介绍(包含楼盘简介,楼盘积分,房价,价格,楼盘地址,户型图,交通规划,备案价,项目配套,楼盘详情,售楼处电话,最新消息,最新详情,周边配套,最新进展等详情咨询)
国贸海上原墅售楼处电话:400-998-9694
楼盘项目全面介绍,本电话为开发商提供线上预约售楼电话,楼盘项目全面介绍(包含楼盘简介,均价,房价,现房,期房,别墅,叠墅,大平层,价格,楼盘地址,户型图,交通规划,备案价,备案名,项目配套,样板间,开盘时间,认筹时间,楼盘详情,售楼处电话,最新消息,最新详情,周边配套,一房一价,最新进展等详情咨询)楼盘详情丨价格丨更多优惠丨机不可失丨欢迎致电丨诚邀品鉴!售楼处位置丨特价房丨工抵房丨剩余房源丨户型图丨最新消息丨免责声明:将文章内容综合来源于网络、只作分享,版权归原作者所有!!如有侵权,请联系我们,我们第一时间处理如有问题欢迎来电咨询,专业一对一热情服务,让您用专业眼光去买房。如果您想了解更多楼盘详情,欢迎提前预约拨打