虹盛里(售楼处)首页网站-虹盛里(营销中心)-虹盛里欢迎您-小区环境-户型-最新价格-地址-楼盘详情-周边配套-虹盛里售楼处电话-交房时间
扫描到手机,新闻随时看
扫一扫,用手机看文章
更加方便分享给朋友
虹盛里售楼处电话:400-8878-824
虹盛里营销中心热线400-887-8824(售楼处预约看房热线)
虹口老牌核心区中环旁江湾板块
7站达人民广场
地铁3号线江湾镇站与20号线环伺
江湾城投万安路【 虹盛里】热销中
全户型:高层+洋房+联排精装交付
约83-180㎡瞰景高层约727万-1955万
约97-195㎡臻稀洋房约1023-2196万
约196㎡滨水墅居约2963-3058万
综合均价约9.96万/㎡
虹盛里 售楼处电话☎:400-887-8824
如有问题欢迎来电咨询,来电即可享受买房优惠!
预约来电尊享购房优惠,可预约案场内部销售人员,专业一对一热情服务,让您用专业眼光去买房
【虹盛里】上海城投控股匠心倾筑。立于“虹口中环”稀缺坐标,同频北外滩盛世更新,打造集聚烟火气息的人文街区。七大人居地块,溯源当代复合建筑语境,为世界上海再展滨水新画卷。
虹盛里售楼处电话:400-8878-824
虹盛里营销中心热线400-887-8824(售楼处预约看房热线)
在当下的上海房地产市场,购房者对开发商品牌愈发看重。而在这一点上,虹盛里具备足够分量的话语权。
虹盛里营销中心热线400-887-8824(售楼处预约看房热线)
因为这是由上海本地国企上海城投控股倾力打造的项目,安全感满分!并且上海城投控股深入了解上海的脉落,对中心城市内的每一寸土地、居民的生活习性、居住环境都深入了解。
所以,其倾力打造的虹盛里,当然是如今上海更具价值和居住舒适度的产品。项目整体采用现代建筑风格,彰显海派潮流文化的特质与主人的身份品位。
更是邀请了上海中房建筑设计公司及知名景观设计公司泛亚国际景观设计共同合作打造,由此可见开发商对此项目的重视。
设计中将7个独立的地块与滨水空间相结合,通过对商业、绿化、广场界面的有机穿插、整合成为一个与景观河道交相辉映、有节奏的公共长廊,提升滨水区域的环境品质。
并且,项目周边整体的城市界面也正在进行更新。未来周边以虹盛里为核心将组成全新的海派街区,迭代老虹口的生活场景。
而项目整体建筑布局随河蜿蜒,高低错落的建筑形态也契合了江南水乡的水韵特色。
加之建筑顶部的金冠起伏,与景观河交相辉映,串联成金色丝带东西贯通,更是凸显了本项目的高标准、高品质的居住体验。
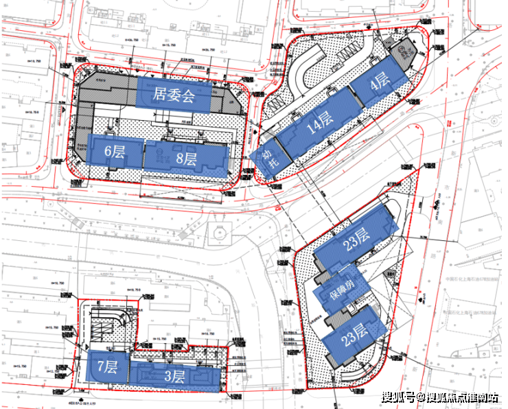
7幅地块的总地上计容面积超过8.3万平方米,包含了住宅套数超过620套,户型面积不大,产品类型却包罗万象,包含高层公寓、6层8层的洋房产品以及2-3层的合院及联排别墅,沿着走马塘一字排开,独有韵味。
部分地块的一层带有架空层,规划有一些儿童活动设施、会客交流、健身设施等功能,可以满足不同年龄段业主不出小区即可活动、社交

高层户型图


珍稀洋房户型图



7幅地块的总地上计容面积超过8.3万平方米,包含了住宅套数超过620套,户型面积不大,产品类型很丰富,包含高层公寓、洋房产品以及合院&联排别墅。
另外,项目是会分为两期开放。一期是西侧的三块地:


一期1#地块:规划有17、18层高层住宅,有5-8层的洋房,也有3层的别墅产品,水电路西侧还有部分商业。
一期2#地块:规划有1幢17层住宅和商业,容积率2.94,住宅一梯两户设计,产品包括中间套户型建筑面积约108㎡3房2厅2卫;边套户型建筑面积约142㎡4房2厅2卫。
一期3#地块:规划有一幢18层高层和两幢6层多层,容积率2.33,产品包括建筑面积约108㎡3房2厅2卫,约136㎡4房2厅2卫。
二期是东侧四个小地块:
规划有14-23层高层住宅,有5-8层的洋房,也有3层的别墅产品,别墅靠近奎照路。还有一些配套,比如市民驿站、菜场、幼托、老年人活动室等(以实际为准)。

项目一、二期2022年6月开始打桩施工,现场实拍如下:
交通方面:项目距离3号线江湾镇站直线距离约900米。19号线(在建)车站北路站直线距离仅200m,将来出行十分便捷。自驾方面,周边有中环高架、南北高架、逸仙路高架等快速路。

教育方面:项目周边有凉城第四小学以及江湾初级中学。
医疗方面:项目周边有同济大学附属上海市第四人民医院、上海中医药大学附属岳阳中西医结合医院等。
虹盛里售楼处电话:4008878824【售楼中心热线】虹盛里营销中心热线400-887-8824虹盛里售楼处地址400-8878-824,楼盘项目全面介绍,本电话为开发商提供线上预约售楼电话,楼盘项目全面介绍(包含楼盘简介,均价,房价,现房,期房,别墅,叠墅,大平层,价格,楼盘地址,户型图,交通规划,备案价,备案名,项目配套,样板间,开盘时间,认筹时间,楼盘详情,售楼处电话,最新消息,最新详情,周边配套,一房一价,最新进展等详情咨询)楼盘详情丨价格丨更多优惠丨机不可失丨欢迎致电丨诚邀品鉴!售楼处位置丨特价房丨工抵房丨剩余房源丨户型图丨最新消息丨免责声明:将文章内容综合来源于网络、只作分享,版权归原作者所有!!如有侵权,请联系我们,我们第一时间处理如有问题欢迎来电咨询,专业一对一热情服务,让您用专业眼光去买房。如果您想了解更多楼盘详情,欢迎提前预约拨打虹盛里售楼处电话☎400-887-8824
上海对房地产市场政策进行优化调整,涉及住房限购、公积金、住房信贷、住房税收等方面调整,这是今年以来首次调整。
核心内容有以下几点:
1、符合条件的家庭,外环外不再限制购房套数
2、单身人士买房将迎来重大利好,成年单身人士按照居民家庭执行住房限购政策
3、公积金贷款额度大幅提高,多子女家庭最高可贷216万元,且允许公积金“又提又贷”
4、商贷不再区分首套二套,统一利率水平
5、完善个人住房房产税政策,非户籍首套免房产税,二套人均60平方米以下免税。
此前北京松绑五环外的限购时,我们预计上海也会出台相应措施,如今靴子落地。对比北京,上海限购调整力度大于市场预期。
上海、北京楼市限购政策松绑有一个共同点,即“核心区严控、郊区松绑”,这已成为房地产市场因城施策新的风向标。
此次调整最大的亮点是进一步调减外环外住房限购政策。
一是符合条件的居民家庭,在外环外购房不限套数。即户籍家庭、社保满1年的非户籍家庭,在外环外购买一二手房不再限制套数。从非户籍家庭社保年限来看,上海外环外购房社保年限门槛仅为1年,低于北京的2年,力度明显比北京大。
二是成年单身人士按照居民家庭执行住房限购政策。也就是说,户籍单身人士可在外环内购买2套住房,非户籍单身社保满3年在外环内限购1套,外环外社保满一年单身人士也不限套数。
和北京类似,这并不意味着上海全面放开外环外限购,只是针对原本就有购房资格的人,而对于在上海没有社保的人,依然无法购买。
为衔接优化住房限购政策,个人住房房产税政策同步完善。对符合条件的非本市户籍居民家庭购买的第一套住房暂免征收房产税;购买的第二套及以上住房在合并计算家庭全部住房面积后,给予人均60平方米的免税面积扣除。
公积金政策优化有两大亮点:
首先,公积金贷款额度大幅提升,对缴存人购买二星级及以上新建绿色建筑住房的,住房公积金(含补充公积金)最高贷款额度上浮15%,多子女家庭首套上浮比例可叠加计算,政策调整后上海公积金最高贷款额度已达216万元,远超北京160万元的标准,基本能有效覆盖部分购房资金需求。
其次,“又提又贷”的政策落地,能够直接缓解购房者的首付压力。
为减轻居民购房利息负担,《通知》明确优化个人住房信贷政策,商贷不再区分首套二套,也就是说二套房贷款利率与首套房实现“齐平”,进一步降低了购房的利息成本。
以100万贷款本金、30年期等额本息方式计算,按照当前首套房3.05%利率下限来计算,调整后每月月供将减少220元,这将进一步促进改善性住房需求的释放。
盘点近年来上海楼市政策可以看出,当前已是政策最为最宽松的一年。
本次调整为2025年来首次,在此之前,上海于2024年调整过两次限购政策,且政策发布后对于市场起到了明显的推动作用。
去年5月27日上海发布“沪九条”,随后的6月上海新建商品住宅成交面积达到79.89万平方米,环比增长63.49%。
2024年9月29日,上海再次发布“沪七条”,调整限购、降低首付比例等,随后市场销售明显提升,新房成交面积自10月份开始实现同比“五连升”,环比“三连升”,其中,12月新房销售面积达到80.79万平方米,为近一年新高。
不过,今年二季度开始全国楼市出现新情况,其中上海6月和7月新房成交面积环比下跌,其中7月新房成交面积同环比分别下降25.27%、28.48%。
而且项目7月开盘去化压力凸显,据克而瑞上海机构数据,7月上海共24盘入市,平均去化率为41%,较上月下降9个百分点。
这意味着上海楼市稳中向好的态势还需要利好政策进一步巩固。
值得注意的是,上海外环外一直是新房供应和成交的主力,其中一手房供应和成交占比近五年都在一半以上,今年前7月外环外新房成交188.31万平方米,占比为54.39%。从趋势来看,2021年以来外环外成交占比逐年下降。
与之相对应的是,外环外的库存压力明显高企。
CRIC数据,截至2025年7月末,上海新建商品住宅库存面积为733.21万平方米,以近12个月商品住宅流速看,去化周期为13.3个月,而外环外库存面积达到了561.65万平方米,占比达到了76.6%,去化周期为17.6个月,而同期外环内去化周期仅7.3个月,外环外去库存压力明显高于外环内。
此次上海“定向”调整限购后,部分高库存板块去化压力将有所缓解。

在“金九银十”关键节点到来前,一线城市北京和上海相继发布楼市新政,楼市迎来新一轮止跌回稳“保卫战”。
从上海和北京政策共同点可以看出,两个城市均“定向”取消郊区购房套数限制,通过“核心区严控、郊区松绑”的差异化策略,消除核心区投机顾虑,同时释放郊区购房需求,进一步优化区域供需结构,既能缓解高库存板块去化压力,同时还能实现区域协同的城市发展目标。
声明:本文由入驻焦点开放平台的作者撰写,除焦点官方账号外,观点仅代表作者本人,不代表焦点立场。
