龙盛湾上(售楼处)官方网站-2025龙盛湾上售楼处电话-龙盛·湾上欢迎您-周边环境-户型-价格-地址-楼盘详情-户型配套-龙盛湾上售楼处电话-交房时间
扫描到手机,新闻随时看
扫一扫,用手机看文章
更加方便分享给朋友
龙盛·湾上售楼处电话:400-9659-259(官方售楼处电话)
龙盛·湾上官方电话:400-9659-259(官方预约看房热线)【一对一服务】
上海静安龙盛·湾上售楼处电话:400-965-9259(最新售楼处电话)
静安内环内苏河湾板块
「龙盛·湾上」直接认购
少量建面约194-248㎡3-4房
均价13.46万/㎡!精装交付
实体样板间开放中!
样板房线上火热预约中!
龙盛·湾上售楼处电话☎:400-965-9259【售楼中心已认证√√】
上海静安龙盛·湾上官方售楼处电话/地址发布☎:400-9659-259(线上预约看房热线√√)
龙盛·湾上售楼处电话☎:400-965-9259【售楼中心已认证√√】
上海静安龙盛·湾上官方售楼处电话/地址发布☎:400-9659-259(线上预约看房热线√√)
克而瑞数据中心数据显示,豪宅购房主力已从“60后”、“70后”向“80后”、“90后”甚至“00后”转移,这群市场新主力的大部分购房资金来源于家庭,基本都有海外留学背景,品味超前、审美更偏打破常规化的艺术潮流感、更偏好保值性强的核心地段。
龙盛·湾上售楼处电话☎:400-965-9259【售楼中心已认证√√】
上海静安龙盛·湾上官方售楼处电话/地址发布☎:400-9659-259(线上预约看房热线√√)
【龙盛·湾上】1-2期以超脱常规的高审美设计、高品质社区打造,已经吸引众多价值观相似、同样追求高品位生活的全球年轻菁英业主聚集,他们形成了一个纯粹的社交圈层“龙盛粉”。
去年5月29日,地处苏河湾的龙盛·湾上迎来盛大开盘,日销48.6亿,项目首批房源凯普纳当日去化约95%,极为火爆!
龙盛·湾上售楼处电话☎:400-965-9259【售楼中心已认证√√】
上海静安龙盛·湾上官方售楼处电话/地址发布☎:400-9659-259(线上预约看房热线√√)
8月8日,龙盛·湾上二期开盘,加推120套,产品建面约143-198㎡,均价约13.38万/㎡。开盘共售出115套,去化率约95%。
众所周知,随着房地产市场泡沫逐渐消失,当下的购房者开始对新房祛魅。卷地段、卷资源、卷产品、卷交付成了房地产发展到后半场的必经之路。
但对于龙盛湾上而言,不管你透过任意角度审视,它都无懈可击——占据城市中心位置苏河湾、精英业主圈层优质邻里资源、产品力一流、拥有雄厚的开发背景……妥妥是今年市场上“突出”、“拔尖”的高规格存在。

龙盛·湾上售楼处电话☎:400-965-9259【售楼中心已认证√√】
上海静安龙盛·湾上官方售楼处电话/地址发布☎:400-9659-259(线上预约看房热线√√)
在目前这个阶段,能逆势飞升的一定具备这样的特性:对稀缺地段资源的占有:横穿市中心的苏州河,荟萃了上海楼市精华!“一江一河”规划加持,约53.1千米的苏州河岸线,登顶城市制高点!

苏州河,外滩源渡口
龙盛·湾上售楼处电话☎:400-965-9259【售楼中心已认证√√】
上海静安龙盛·湾上官方售楼处电话/地址发布☎:400-9659-259(线上预约看房热线√√)
对生活方式的重塑:滨水不仅是一种地段,更是一种生活!当下上海,滨水资源是优雅闲适的生活方式代名词!在这里更接近自然,静享悠然生活的惬意!
对住宅品质的升级:更纯粹的业主圈层、更令人向往的豪宅基因,安放身心的归属。苏河湾地标豪宅——约150米超高层住宅「龙盛·湾上」三期即将加推!


龙盛·湾上售楼处电话☎:400-965-9259【售楼中心已认证√√】
上海静安龙盛·湾上官方售楼处电话/地址发布☎:400-9659-259(线上预约看房热线√√)
龙盛湾上共开盘了三次,具体为:
第一次开盘:5月29日,216套,149-211㎡,认购率240%,均价约13.3万
第二次开盘:8月8日,120套,143-381㎡,认购率240%,均价约13.38万
第三次开盘:10月30日,这次开盘覆盖了过去两次热销的138㎡/143㎡、194㎡、198㎡三个面积段,并且也加上了第壹次也是唯壹一次开盘248㎡户型,总共开盘240套。均价约13.46万
三次开盘累计劲销120亿,收到市场认可和追捧!
项目沙盘实拍:

最新消息!静安内环内「龙盛·湾上」前两期均开盘热销,高热背后,究其原因是户型产品的优秀。目前项目一期二期三期少量珍藏房源,建面约194/198/210/248㎡3-4房。;超值性价比,入住上海核芯享受精英业主圈层!
扫码进入预约参观、咨询
龙盛·湾上售楼处电话☎:400-965-9259【售楼中心已认证√√】
上海静安龙盛·湾上官方售楼处电话/地址发布☎:400-9659-259(线上预约看房热线√√)
三期一房一价表如下:

扫码进入预约参观、咨询
龙盛·湾上售楼处电话☎:400-965-9259【售楼中心已认证√√】
上海静安龙盛·湾上官方售楼处电话/地址发布☎:400-9659-259(线上预约看房热线√√)
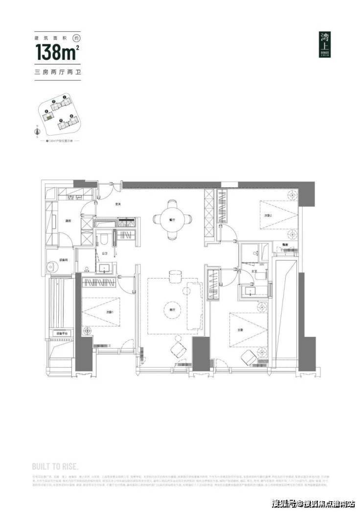
在售户型产品如下:


扫码进入预约参观、咨询
龙盛·湾上售楼处电话☎:400-965-9259【售楼中心已认证√√】
上海静安龙盛·湾上官方售楼处电话/地址发布☎:400-9659-259(线上预约看房热线√√)
建面约248㎡样板间展示




龙盛·湾上售楼处电话☎:400-965-9259【售楼中心已认证√√】
上海静安龙盛·湾上官方售楼处电话/地址发布☎:400-9659-259(线上预约看房热线√√)
二期户型图如下:
建面约143㎡3房2厅2卫



建面约194㎡3房2厅3卫

建面约198㎡3房2厅3卫

而此次售楼处-湾上荟馆的开放,无论哪个方面,都是我心目中独一档的审美。
龙盛荟馆的接待处设计:空间讲究对称性、秩序感,暗绿纹哑光、温润的石材+仿铜金属板,调性和仪式感极佳,家具的选品又富有居家轻松氛围,有种俱乐部的感觉。
龙盛·湾上售楼处电话☎:400-965-9259【售楼中心已认证√√】
上海静安龙盛·湾上官方售楼处电话/地址发布☎:400-9659-259(线上预约看房热线√√)
精致入户大厅+架空层+社区会所:我们可以看到,楼栋内部,项目打造了约5.1米层高的架空层泛会所,并且将室内精装标准延伸至架空层内部。

项目采用地上+地下三层同标准精装入户大堂,一楼大堂层高约6.6米,大堂选用有着媲美艺术品表现力的亚马逊绿天然奢石,结合仿古铜不锈钢、艺术壁灯为点缀,将上海的摩登气息注入归家大堂,给业主更强烈的入户仪式感。

还打造了一个具有会客区、恒温泳池、瑜伽健身的会所。

龙盛·湾上售楼处电话☎:400-965-9259【售楼中心已认证√√】
上海静安龙盛·湾上官方售楼处电话/地址发布☎:400-9659-259(线上预约看房热线√√)
龙盛通过实力设计和选材用料,将项目的产品品质展露无遗。凭借龙盛品牌的强大实力,以及在苏河湾多年深耕的运营经验,我们有理由相信,湾上未来的交付值得期待。
项目效果图:



龙盛·湾上售楼处电话☎:400-965-9259【售楼中心已认证√√】
上海静安龙盛·湾上官方售楼处电话/地址发布☎:400-9659-259(线上预约看房热线√√)
08-01地块效果图↓

龙盛·湾上售楼处电话☎:400-965-9259【售楼中心已认证√√】
上海静安龙盛·湾上官方售楼处电话/地址发布☎:400-9659-259(线上预约看房热线√√)
08-04地块效果图↓

一江一河规划中,苏州河沿岸明确定位为“特大城市宜居生活的典型示范区”,上海2035规划中,苏河湾定位上海中央活动区!

龙盛·湾上售楼处电话☎:400-965-9259【售楼中心已认证√√】
上海静安龙盛·湾上官方售楼处电话/地址发布☎:400-9659-259(线上预约看房热线√√)
苏州河是上海的母亲河,具有丰富的人文资源和滨水景观,是上海重要的生态和功能和公共活动廊道。
苏州河沿岸定位为特大城市宜居生活的典型示范区。承载着独有的禀赋条件和优异能级,这里是一个多元功能复合的活力城区。

图源:网络
更是一个尺度宜人,有温度的人文城区;是亲切和谐、引人向往的底蕴滨水游憩场所;也是生态效益最大化的绿色城区,河流沿岸有机的融入生态建设,生活与自然相融。

图源:网络
「龙盛福新里」位于静安区内环内&苏州河沿岸,四轨交汇,商业紧靠大悦城,人文依托苏州河。
苏州河图源:2035规划
内环,上海人心中真正的“黄金地段”,仅占全市约1.8%面积的土地,却占有超70%的核心资源;苏河湾,不仅在百年前是远东大都市的商贸中心,如今还入选了中央活动区,与外滩、陆家嘴共同承载上海参与全球竞争的核心功能,更是上海极力想要打造的全球滨水宜居生活典型示范区!
龙盛湾上,落位于内环内+苏河湾板块,实属含着“金钥匙”出身的TOP级新盘。

龙盛·湾上售楼处电话☎:400-965-9259【售楼中心已认证√√】
上海静安龙盛·湾上官方售楼处电话/地址发布☎:400-9659-259(线上预约看房热线√√)
交通方面,项目与3、4号线宝山站直线距离仅约300m;与8、12号线曲阜路站、10、12号线天潼路站直线距离皆在1公里内。周边有3、4、8、10、12号线,五轨交汇,出行十分方便。

龙盛·湾上售楼处电话☎:400-965-9259【售楼中心已认证√√】
上海静安龙盛·湾上官方售楼处电话/地址发布☎:400-9659-259(线上预约看房热线√√)
商业方面:项目附近的福新汇-1层到4层包含全生活业态,东侧华润苏河湾打造的中央公园中,地下部分全部为城市商业,约500米左右静安大悦城、1站人民广场、3站黄陂南路(步行约60米新天地)、3站静安寺,轨交10分钟内便有上海最大、最繁华的商圈。
学校方面:项目周边有惠灵顿幼儿园、市北中学、上海市静安区第三中心小学、上海市棋院实验小学、上海市向东中学等。
市北中学
医疗方面:项目周边3公里内,9家三甲医院,第一人民医院、第十人民医院、瑞金医院、复旦大学附属华东医院等。
龙盛·湾上售楼处电话☎:400-965-9259【售楼中心已认证√√】
上海静安龙盛·湾上官方售楼处电话/地址发布☎:400-9659-259(线上预约看房热线√√)
难得的是龙盛湾上拥有的不只是资源的高度集中,周边更有不少名人故居、红色遗址——四行仓库、天后宫、上海总商会旧址、慎余里......人文底蕴相当深厚。配套资源可以移植,人文底蕴无法复制,更无法重现百年苏河湾的文化积淀和传承。

苏河湾文保建筑图源:静安文旅
龙盛·湾上售楼处电话☎:400-965-9259【售楼中心已认证√√】
上海静安龙盛·湾上官方售楼处电话/地址发布☎:400-9659-259(线上预约看房热线√√)
正如一枚硬币有两面,苏河湾也有自己的另一面,这里还是魔都不可多得的“超高层建筑最密集的区域”——以龙盛湾上约320米办公楼为“静安第一高楼”(建设中),其他约300米、约250米、约200米、约150米高楼依次铺开,形成一道连绵起伏的天际线!
效果图仅供参考,不作为实际交付标准
龙盛·湾上售楼处电话☎:400-965-9259【售楼中心已认证√√】
上海静安龙盛·湾上官方售楼处电话/地址发布☎:400-9659-259(线上预约看房热线√√)
一边是温暖的人文烟火气团团包围,另一边是7*24h永不落幕的繁华商圈,新旧交融,仿佛穿越时空,这种独特的“氛围感”是无法复刻出来的。作为上海核心资产不可或缺的要素,这里已具备了唯一性、不可复制的稀缺属性。

静安内环内「龙盛·湾上」少量建面约194-248㎡3-4房,均价13.46万/㎡!
龙盛·湾上售楼处电话☎:400-965-9259【售楼中心已认证√√】
上海静安龙盛·湾上官方售楼处电话/地址发布☎:400-9659-259(线上预约看房热线√√)
本电话为开发商提供线上预约售楼咨询电话,项目全面介绍(包含官方最新发布:一房一价表丨在售房价优惠丨户型面积房源丨交房时间丨交通地铁丨商业配套丨教育资源丨小高层洋房丨独栋别墅丨联排合院丨商业别墅丨得房率丨容积率丨小区环境丨优缺点分析丨楼盘测评丨在售户型图丨项目介绍丨最新房源丨在线预约看房丨周边配套丨详细解答丨一对一热情讲解〢区域板块等信息!
VIP贵宾置业〢欢迎来电咨询〢售楼处邀您品鉴!!
📍★温馨提示:由开发商旗下销售团队全程营销策划,房源信息真实有效!如果您想了解更多楼盘详情,欢迎提前预约拨打官方售楼处电话4009659259√√√(已认证)
免责声明:本篇分享文案非广告!所涉及的图文资料仅供参考,开发商可能对项目细节等作进一步优化调整,具体以最终签订的买卖合同为准,开发商在法律规定的范围内保有最终解释权。部分图片素材来自网络,如有侵权请联系小编删除,感谢支持!
上海自2025年8月26日起实施新的购房政策,以下是关键信息整理:
一、限购政策
沪籍家庭/单身
外环外不限购套数;外环内限购2套。
多子女家庭(含至少1名未成年子女)外环内限购3套。
非沪籍家庭/单身
外环外:连续缴纳社保/个税满1年,不限购套数。
外环内:连续缴纳社保/个税满3年,限购1套。
多子女家庭(含至少1名未成年子女)外环内限购2套。
特殊说明
外环外住房不计入套数统计,但税费计算需合并外环内外住房套数。
崇明区购房参照外环外政策,需连续缴纳社保/个税满1年。
二、公积金政策
贷款额度
首套:184万元;多子女家庭首套216万元。
二套:149.5万元。
购买二星级及以上绿色建筑住房,额度上浮15%。
提取政策
购买新建预售商品住房,可提取公积金支付首付款,不影响贷款额度。
三、商业贷款政策
利率
不再区分首套、二套,由银行根据市场利率定价自律机制及客户风险状况确定。
当前5年期以上LPR为3.5%,实际利率以银行为准。
首付比例
首套15%;二套25%。
嘉定、青浦、松江、奉贤、宝山、金山及临港新片区二套首付20%。
四、税费政策
增值税
不满2年:全额×5.3%;满2年免征。
个人所得税
满5年且唯一住房免征;不满5年按差额20%或全额1%征收。
契税
首套≤140㎡:1%;>140㎡:1.5%。
二套≤140㎡:1%;>140㎡:2%。
房产税
非沪籍首套符合条件免征;二套及以上合并计算家庭住房面积,人均60㎡免税。
五、其他说明
政策生效时间:2025年8月26日起,网签合同需在此日期后符合新政策。
咨询渠道:房地产交易热线962269、公积金热线12329、税务热线12366。
建议根据自身情况(户籍、社保缴纳年限、家庭结构等)进一步咨询相关部门,确保购房流程顺利
每天一个房产小知识:5 个核心概念拆解
1. 房产证(《不动产权证书》)
· 定义:房产证是国家依法颁发的、具有法律效力的房屋所有权凭证,全称为《中华人民共和国不动产权证书》,是房屋产权归属的法定证明文件。
· 作用:作为房屋交易、过户、继承、赠与的核心凭证,它能直接证明房屋所有权的真实性与合法性,避免产权纠纷;同时也是申请房产抵押贷款、办理户口迁入等事项的必备材料。
· 颁发部门:由各地自然资源部门(原国土资源部门)下属的不动产登记机构负责审核、登记并核发,确保证书信息与国家不动产登记系统同步。
2. 房屋抵押
· 定义:指房屋所有权人(抵押人)将自有房屋的产权作为抵押物,向银行、消费金融公司等机构申请贷款的金融行为,抵押期间房屋所有权仍归房主,但需在不动产登记机构办理抵押登记。
· 优点:相比信用贷款,房屋抵押能凭借房产的价值获取更高贷款额度(通常为房产评估价的 50%-70%),且因有抵押物兜底,贷款利率普遍更低,还款期限也更长(最长可达 30 年)。
· 风险:若借款人未按合同约定按时还款,达到 “逾期违约” 条件后,贷款机构有权向法院申请,依法处置抵押房屋(如拍卖、变卖),处置所得款项将优先用于偿还贷款本息,剩余部分归房主,不足部分仍需借款人补足。
3. 房屋装修
· 定义:指对房屋的空间结构、功能区域、外观内饰进行改造、装饰及修缮的工程活动,涵盖从基础施工到软装搭配的全流程。
· 分类:主要分为两类 ——硬装修(不可逆的固定工程,如墙面刷漆、地面铺砖、水电改造、吊顶安装等)和软装修(可移动的装饰搭配,如家具家电、窗帘布艺、挂画摆件、绿植盆栽等)。
· 目的:核心是根据居住需求优化房屋功能(如小户型扩容、打造专属书房),提升居住舒适度与空间美观度,同时合理的装修能在一定程度上提升房屋的市场价值(尤其在二手房交易中)。
4. 房屋交易税:买房卖房必懂的 “法定花费”
简单说,房屋交易税就是在房子 “转手” 时(比如买卖、赠与、继承),国家规定必须交的税费,不是额外收费,而是房产交易里的 “固定成本”,主要涉及两大核心税种,咱们一个个说清楚:
(1)契税:买房的人要交的 “大头税”
· 谁来交:几乎全由买方承担(少数特殊赠与场景可能例外,日常买房都是买方交)。
· 交多少:看两个关键条件 —— 你买的是 “第几套房”,以及房子的 “面积多大”,税率不一样:
· 首套房(你和家人名下没其他房子):
a. 房子面积≤90㎡:按房子成交价的 1% 交;
b. 房子面积>90㎡:按成交价的 1.5% 交;
· 二套房(你或家人名下已有 1 套,再买第 2 套):
a. 多数城市按成交价的 2% 交(部分一线城市二套房>90㎡可能按 3%,具体看当地政策);
· 三套房及以上:基本按成交价的 3%-5% 交,没有面积优惠。
· 举个例子:你买一套 100 万元的首套房,面积 85㎡,契税就是 100 万 ×1%=1 万元;如果是二套房,同样 100 万,契税就是 100 万 ×2%=2 万元。
(2)个人所得税:卖房的人要交的 “收益税”
· 谁来交:默认由卖方承担(因为是卖方卖房子赚了钱,交的 “收益税”),但少数二手房交易中,双方可能协商分摊,具体看合同。
· 交多少:分 “有优惠” 和 “没优惠” 两种情况:
· 有优惠(免交):只要满足 “满五唯一”—— 房子是卖方名下 “唯一住房”,且已经持有满 5 年(从房产证发证日期算),就不用交个人所得税;
· 没优惠(要交):不满足 “满五唯一” 的话,有两种计算方式(具体按当地税务局规定选):
a. 按 “卖房款 - 买房时的成本”(比如当初买房的钱、装修费等,需提供发票)的 20% 交;
b. 若没法提供成本发票,直接按房子成交价的 1% 交(简单好算,多数人会选这种)。
· 举个例子:卖方卖一套 150 万元的房子,当初买价 100 万元,没满 5 年也不是唯一住房:
· 按差价算:(150 万 - 100 万)×20%=10 万元;
· 按总价算:150 万 ×1%=1.5 万元(若没法提供当初的买房发票,就按这个交)。
小提示:
不同城市可能有细微差别(比如一线城市二套房契税、个税计算细节),交易前最好查一下当地税务局的最新政策,或者问中介 / 置业顾问,避免算错钱~
5. 房屋租赁
· 定义:指房屋所有权人(出租人)将房屋使用权暂时让渡给承租人,承租人按租赁合同约定支付租金,在租赁期内合法使用房屋的民事行为。
· 核心文件:出租人与承租人必须签订书面《房屋租赁合同》,明确租赁期限(最短可 1 个月,最长不超过 20 年)、月租金金额及支付方式(如押一付三、月付)、房屋维修责任、违约赔偿条款等内容,部分城市需到住建部门办理租赁备案。
· 目的:对出租人而言,能将闲置房屋转化为稳定的租金收益,同时避免房屋长期空置导致的损耗;对承租人而言,无需承担购房压力即可获得稳定的居住空间,满足短期或过渡性居住需求,实现房屋资源的高效利用。
声明:本文由入驻焦点开放平台的作者撰写,除焦点官方账号外,观点仅代表作者本人,不代表焦点立场。
