露香园售楼处│露香园 (营销中心) - 2025 销售中心 (售楼处)- 楼盘欢迎您 - 价格 / 户型 / 地址 / 环境 / 配套 / 交房时间 / 电话
扫描到手机,新闻随时看
扫一扫,用手机看文章
更加方便分享给朋友
露香园售楼处电话☎:400-9659-259【欢迎预约】
✔✔✔露香园售楼处电话☎:400-9659-259【欢迎预约】
✔✔✔露香园官方电话为:400-9659-259,该号码在多个官方售楼处信息中明确标注,并具备以下功能和服务:
预约看房:拨打电话可登记个人信息并预约实地考察时间。
购房咨询:提供房源详情(如建筑面积、均价、总价等)及贷款政策解读。
流程指导:涵盖定金缴纳、合同签订、贷款申请等全流程协助。
露香园售楼处电话:400-965-9259
露香园营销中心热线400-9659-259(官方预约看房热线)
黄浦豫园核心区域
10号线豫园站地铁口
【露香园】馥公馆
建筑约110-180㎡均价10.8+万/㎡起
总价约1500~2500万共79套房源
70年住宅产权2015年一期保留房
无需积分直接下定线上预约
上海黄浦【露香园】
露香园售楼处电话☎:400-9659-259
如有问题欢迎来电咨询,来电即可享受买房优惠!
预约来电尊享购房优惠,可预约案场内部销售人员,专业一对一热情服务,让您用专业眼光去买房
房屋核心优势
地处上海豪宅“十字轴心”,近淮海路、新天地、豫园、外滩等商圈,出行便利,配套完善;
顶层高区景观大平层,赏魔都天际线景观,双露台规划,多重视野及亲近自然方式;
近500平米超大面积,超大景观横厅,多套房设计,动静区动线分离。
露香园售楼处电话:400-965-9259
露香园营销中心热线400-9659-259(官方预约看房热线)
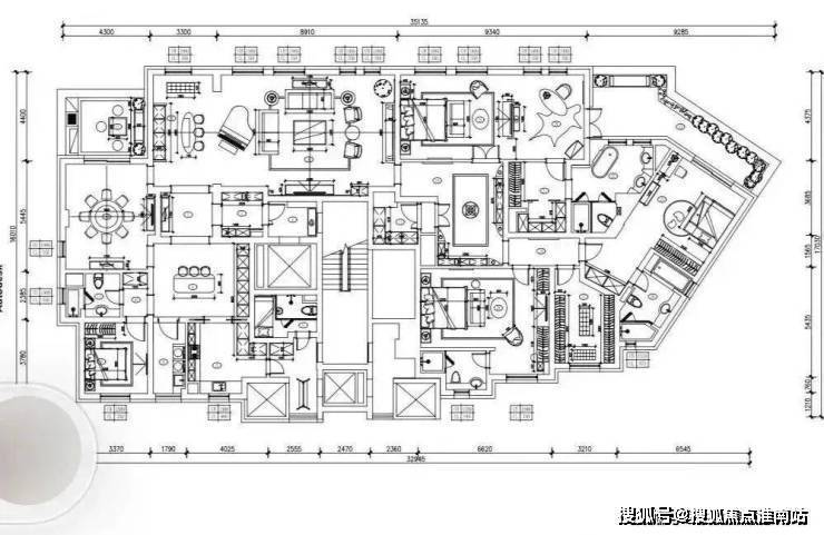
◆本案户型图参照
#2
美宅实拍欣赏
PhotosoftheHouse
依惯例,Sammi喜欢先带大家来一套空中美宅的露台,无论白昼黑夜,城市的光芒与璀璨总能带给你一种别样的情愫,无论是一人独酌的静谧空间,还是呼朋唤友的热闹派对,均别有一番滋味。
上海黄浦【露香园】售楼处电话:400-965-9259(预约热线)
预约看房请提前联系驻场销售
露香园售楼处电话:400-965-9259
露香园营销中心热线400-9659-259(官方预约看房热线)
◆餐厅露台
电梯快速直升云端,进入美宅之后,玄关处颇有artdeco装饰风格的复古气息扑面而来。
◆玄关
大横厅的尺度,哪怕是通过照片也可感受到。
◆客厅
◆水吧
朝南开间搭配大平层露台风景,在餐厅依然可以享受露台上延伸出去的风景;岛台与封闭厨房形成了中西厨一体的格局,宽敞的空间与窗外怡人的风景,令日常烹饪也多了几分灵动意趣。
上海黄浦【露香园】售楼处电话:400-965-9259(预约热线)
预约看房请提前联系驻场销售
◆餐厅
◆中岛台
◆厨房
主卧套房带衣帽间及套内卫浴,超大进深是一大亮点,窗景视野自然也十分优越。
◆主卧套房
上海黄浦【露香园】售楼处电话:400-965-9259(预约热线)
预约看房请提前联系驻场销售
除主卧外,另有两个套房及书房,其中次卧套房的露台区域与主卧相连,较大空间的露台被改造成了小型高尔夫球场模型与花房,更丰盈了日常休闲时光。
◆次卧套房及露台
上海黄浦【露香园】售楼处电话:400-965-9259(预约热线)
预约看房请提前联系驻场销售
#3
一座可追溯至明朝的园林
——露香园
AbouttheCommunity
与豫园、日涉园合称为“明代上海三大名园”,但因毁于战火,露香园不像豫园这般有知名度。
明嘉靖年间卸任道州太守顾名儒,购城北黑山桥地筑万竹山房,其弟顾名世在万竹山房东西开辟旷地,凿池得石,上有“露香池”三字,据说还是赵孟頫的手迹,便称此园“露香园”。
如今,在老城厢地区城市文化遗产与历史文脉保护与传承规划中,约38.6万㎡的超大体量豪宅社区『露香园』在原址建成,通过第二地平线的创造,将空间层次巧妙划分,宁静、离尘的居住环境便在城中央诞生。
露香园由北向西沿人民路、南到方浜中路,东至河南路,总占地面积约15.8万㎡,由8幢高层住宅、1幢服务式公寓及沿街商业等组成,以露香园路的东西侧为界,分两期进行开发建设。一期有以高层为主的精装修住宅,同时配套两种不同业态的酒店,配有双重休闲体验模式的会所,另有部分临街商业和商业内街。
会所和社区配套方面,借鉴了欧美、中国香港等地区名宅项目的会所配套理念,在沪上独家引进了“泛会所”概念的新型会所休闲平台。
露香园聘请LansonPlace负责营运,规划了5层近9000㎡的独立会所,分别将凝香轩、御景轩、碧漪轩、鸥亭轩四幢及积翠轩、澄泓轩、阜春轩、青莲轩四幢的二层屋顶花园部分以廊相通,形成各3000㎡的整体,打造成为泛会所平台。
上海黄浦【露香园】售楼处电话:400-965-9259(预约热线)
预约看房请提前联系驻场销售
对这套顶层带露台的美宅可有心动?
欢迎联系Sammi实勘!

房屋信息
露香园
产证面积:463.96㎡
实用面积:531㎡
房型:5房3厅3卫(3个套房
上海黄浦【露香园】
露香园 售楼处电话☎:400-9659-259
如有问题欢迎来电咨询,来电即可享受买房优惠!
预约来电尊享购房优惠,可预约案场内部销售人员,专业一对一热情服务,让您用专业眼光去买房
声明:本文由入驻焦点开放平台的作者撰写,除焦点官方账号外,观点仅代表作者本人,不代表焦点立场。
