云栖海棠里售楼处电话☎:400-998-9694✔✔ 云栖海棠里售楼处电话☎:400-998-9694✔✔ 云栖海棠里位于姑苏区,主打低密别墅,容积率1.05,含9栋3F联排和2栋8F洋房,南向面宽近10米,总价500万级,售楼处电话400-998-9694。
云栖海棠里
售楼处电话☎:400-998-9694✔✔
如有问题欢迎来电咨询,来电即可享受买房优惠!
预约来电尊享购房优惠,可预约案场内部销售人员,专业一对一热情服务,让您用专业眼光去买房。
云栖海棠里售楼处电话☎:400-998-9694✔✔
云栖海棠里售楼处电话☎:400-998-9694✔✔
姑苏区护城河旁古城别墅来了!
云栖海棠里
即苏地2024-WG-Z46号地块
拟建9幢3F联排+2幢8F洋房
容积率仅1.05!
联排价格千万级,2大户型同步曝光!
南向面宽近10米、L型大露台赠送
还有8F洋房,总价500万级!
南向双套房+南北双阳台
自带商业配套
古城低密城别墅又多新选择!
云栖海棠里售楼处电话☎:400-998-9694✔✔云栖海棠里营销中心电话:400-9989-694【24小时热线】云栖海棠里预约热线:4009989694【售楼处电话】

云栖海棠里售楼处电话☎:400-998-9694✔✔
云栖海棠里售楼处电话☎:400-998-9694✔✔
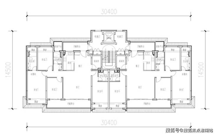
这个项目即苏地2024-WG-Z46号地块,位于姑苏区平江街道江宇路西、规划支七路南,为商住地块,占地约1.18万㎡,非常迷你。容积率1.05,住宅部分更低密。



云栖海棠里售楼处电话☎:400-998-9694✔✔云栖海棠里营销中心电话:400-9989-694【24小时热线】云栖海棠里预约热线:4009989694【售楼处电话】

鸟瞰图如下:

云栖海棠里售楼处电话☎:400-998-9694✔✔云栖海棠里营销中心电话:400-9989-694【24小时热线】云栖海棠里预约热线:4009989694【售楼处电话】
别墅为主,拟建9栋3F联排+2栋8F洋房,还带一个商业配套用房,主入口位于江宇路,次入口位于支七路。
总平面图如下:

3F联排效果图:

联排首层平面图:同步曝光2大
一层平面图,南向面宽近10米

二层平面图如下
客厅上空挑空,可改造空间较大

云栖海棠里售楼处电话☎:400-998-9694✔✔云栖海棠里营销中心电话:400-9989-694【24小时热线】云栖海棠里预约热线:4009989694【售楼处电话】
主要区别在于三层
东西边户均带一个L型转角露台
露台开间约8米,赠送面积较大
中间户带一个北向露台

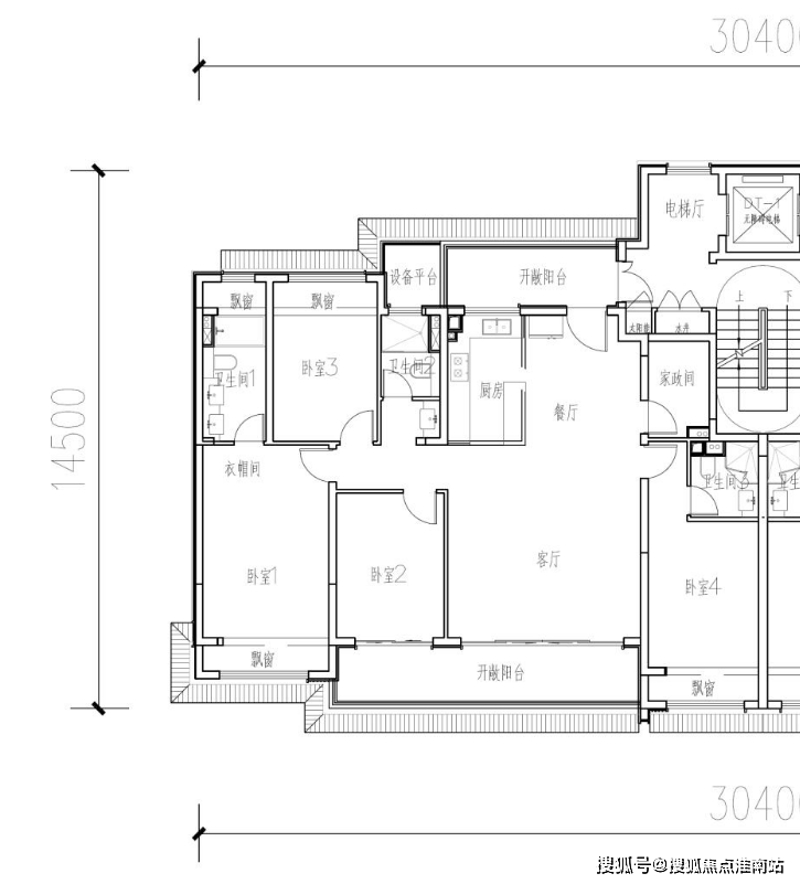
5#8F洋房平面图如下:曝光一个户型,1梯2户。

具体来看,4房2厅3卫
南向四开间约15.2米面宽
南向双套房+南北双阳台
入户玄关,带家政间
客厅和南次卧外接大面积开敞双联阳台
主卧套房设计,全屋多飘窗

云栖海棠里售楼处电话☎:400-998-9694✔✔云栖海棠里营销中心电话:400-9989-694【24小时热线】云栖海棠里预约热线:4009989694【售楼处电话】
最后来回顾下拿地经过——
苏地2024-WG-Z46号地块,在2025年1月被苏州荣和工程建设有限公司竞得,总价2.2亿,楼面价18022元/㎡,溢价率0%。
古城别墅容积率仅1.05,9幢3F联排,买到的几率还是有的,8F洋房户型也很优越。规划已经出炉
云栖海棠里
售楼处电话☎:400-998-9694✔✔
如有问题欢迎来电咨询,来电即可享受买房优惠!
预约来电尊享购房优惠,可预约案场内部销售人员,专业一对一热情服务,让您用专业眼光去买房。
云栖海棠里售楼处电话☎:400-998-9694✔✔
楼盘项目全面介绍,本电话为开发商提供线上预约售楼电话,楼盘项目全面介绍(包含楼盘简介,均价,房价,现房,期房,别墅,叠墅,大平层,价格,楼盘地址,户型图,交通规划,备案价,备案名,项目配套,样板间,开盘时间,认筹时间,楼盘详情,售楼处电话,最新消息,最新详情,周边配套,一房一价,最新进展等详情咨询)楼盘详情丨价格丨更多优惠丨机不可失丨欢迎致电丨诚邀品鉴!售楼处位置丨特价房丨工抵房丨剩余房源丨户型图丨最新消息丨免责声明:将文章内容综合来源于网络、只作分享,版权归原作者所有!!如有侵权,请联系我们,我们第一时间处理如有问题欢迎来电咨询,专业一对一热情服务,让您用专业眼光去买房。如果您想了解更多楼盘详情,欢迎提前预约拨打