2025龙湖东吴原著售楼处电话-(上海龙湖东吴原著售楼处)2025楼盘详情-最新房价-首页网站-户型配套
扫描到手机,新闻随时看
扫一扫,用手机看文章
更加方便分享给朋友
苏州吴中龙湖东吴原著售楼处电话:400-9966-224✔✔【预约热线】龙湖东吴原著售楼处营销中心:400-9966-224龙湖东吴原著售楼处电话/地址☎:4009966224(开发商热线)如有问题欢迎来电咨询,专业一对一热情服务,让您用专业眼光去买房。
苏州吴中龙湖东吴原著售楼处电话:400-9966-224✔✔【预约热线】龙湖东吴原著售楼处营销中心:400-9966-224龙湖东吴原著售楼处电话/地址☎:4009966224(开发商热线)
最新!龙湖东吴原著高清效果图曝光!龙湖王炸IP“原著系”重磅回归打造独院联排、天地叠墅、城市洋房洋房145㎡、四代洋房189㎡叠加210-220㎡,联排305㎡重点是,联排独院+地下室叠加客厅挑空,超大赠送空间!
展厅已公开,预计8月底开盘
先来一波效果图过过瘾↓↓↓
建面约305㎡联排别墅
建面约205-220㎡叠加别墅
苏州吴中龙湖东吴原著售楼处电话:400-9966-224✔✔【预约热线】龙湖东吴原著售楼处营销中心:400-9966-224龙湖东吴原著售楼处电话/地址☎:4009966224(开发商热线)
建面约145㎡空中平墅
项目即苏地2025-WG-Z05号地块,
苏州吴中龙湖东吴原著售楼处电话:400-9966-224✔✔【预约热线】龙湖东吴原著售楼处营销中心:400-9966-224龙湖东吴原著售楼处电话/地址☎:4009966224(开发商热线)
位于吴中经开区长桥街道,太湖西路北侧、西塘河东侧,靠近吴中区政府,是吴中传统主城和老牌富人区。占地约3.7万㎡,容积率1.3。
鸟瞰图如下:
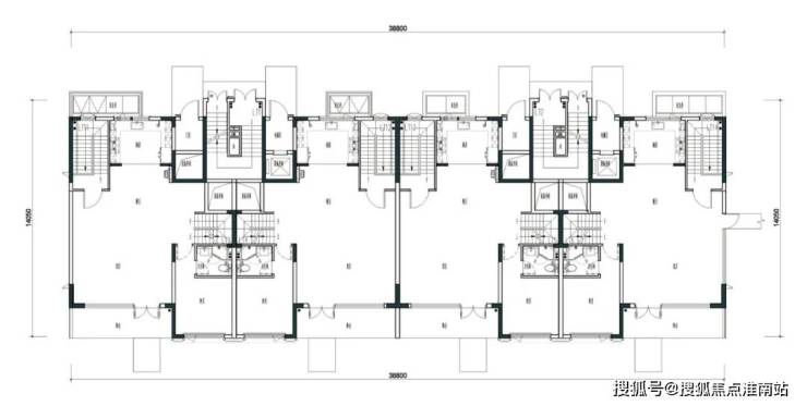
拟建21栋3-11F住宅,其中6栋3F联排,9栋4F叠加,及6栋8-11F洋房(3栋四代宅洋房),小区在长兴街和太湖西路设有车型出入口。
总平面图如下:
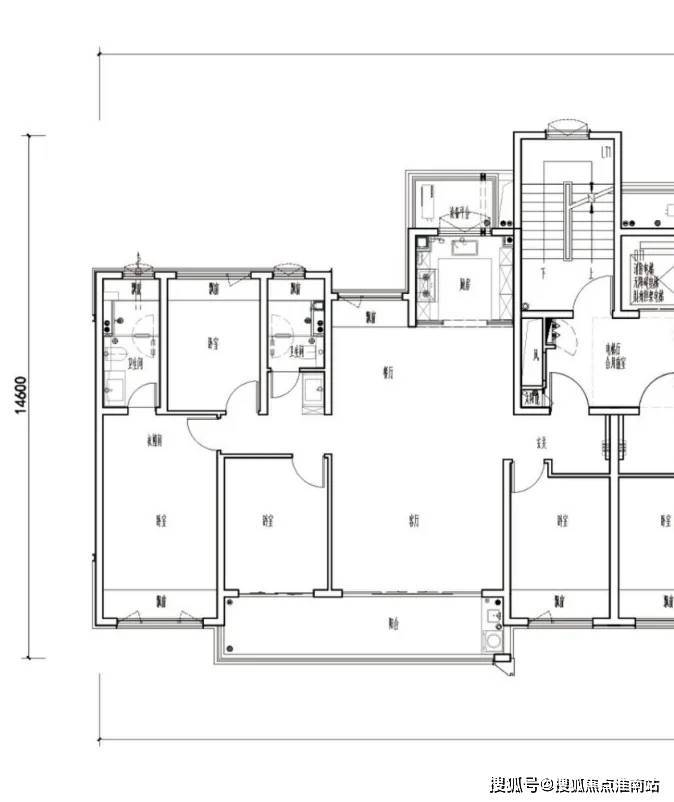
20#洋房标准层平面图如下:同步曝光1个户型,2梯4户。
具体来看,4房2厅2卫
1梯2户,约14.4米南向面宽
客厅及南次卧外接双联阳台
客厅北侧带飘窗
三房朝南,主卧套房设计
全屋多飘窗
20#南立面图如下:层高3.1米。
5#一层平面图如下:同步曝光1个户型,南向面宽约9.7米
5#二层平面图如下:
5#叠墅立面图如下:首层高3.3米,二层高3.15米。
日照分析图如下:
区位图如下:
最后再来回顾下拿地经过——
地块在今年2月份出让,被龙湖&句容建华置地底价竞得,拿地总价7.8亿,成交楼面地价16000元/㎡。
苏州吴中龙湖东吴原著售楼处电话:400-9966-224✔✔【预约热线】龙湖东吴原著售楼处营销中心:400-9966-224龙湖东吴原著售楼处电话/地址☎:4009966224(开发商热线)
地块旁边就是地标东吴塔,东侧为吴中区政府、吴中公共文化中心等,南侧不远处是京杭运河,北侧几百米就是4号线宝带路站,可以说是地铁上盖。南侧约1公里处就是龙湖东吴天街。不管是配套还是生态还是区位能级,都很不错~根据出让要求,该地块总套数不足300套,精装成本不低于3000㎡,最大建面约305㎡联排,从这三个要求来看,毫无疑问是小而精致的高端改善项目。
苏州吴中龙湖东吴原著售楼处电话:400-9966-224✔✔【预约热线】龙湖东吴原著售楼处营销中心:400-9966-224龙湖东吴原著售楼处电话/地址☎:4009966224(开发商热线)如有问题欢迎来电咨询,专业一对一热情服务,让您用专业眼光去买房。
声明:本文由入驻焦点开放平台的作者撰写,除焦点官方账号外,观点仅代表作者本人,不代表焦点立场。
