鸿湖上售楼处电话→鸿湖上售楼中心电话→楼盘百科→首页网站→鸿湖上售楼中心电话→楼盘百科→首页网站→鸿湖上24小时热线电话
扫描到手机,新闻随时看
扫一扫,用手机看文章
更加方便分享给朋友
鸿湖上售楼处电话:400-891-9910✔✔✔(已认证)
鸿湖上售楼处线上预约看房热线电话:400-891-9910(24小时热线含专属置业顾问)
鸿湖上售楼处24小时vip热线☎:400-891-9910【开发商售楼处预约看房热线】
看房请提前致电预约,可享受内部渠道优惠!联系销售人员获取最新一房一价表,售楼处最新优惠底价!开发商销售人员将详细介绍每个户型的独特设计和优势,带您参观样板间,感受精装修的品质和温馨氛围。您还可以了解周边配套设施,包括高端购物中心、优质学校和便捷交通网络,让您的居住体验更加完美。
【项目数字档案】
地块名称:苏地2024-WG-Z17号
地块位置:吴中城南街道澹台街和下田路交汇处
项目名称:鸿湖上
开发品牌:江苏海鸿集团+旭辉建管
地块指标:占地约4.97万方,容积率1.02,总建约9.07万方
产品规划:23幢3F合院别墅+6幢9F四代洋房,仅196套
户型配置:四代宅洋房185㎡、300㎡;合院别墅245、287、295、365、375㎡
价格区间:24.10月拿地,楼面价21698元/m²

鸿湖上售楼处电话:400-891-9910✔✔✔(已认证)
鸿湖上售楼处线上预约看房热线电话:400-891-9910(24小时热线含专属置业顾问)
往期推荐

【狂戳链接】:2024苏州楼盘笔记大全(收藏版)
【吴中笔记集锦】城南·龙湖御湖境2023.06
【吴中笔记集锦】龙湖·东吴原著|2025龙湖藏品级墅作
【吴中笔记集锦】东吴序|吴中主城芯隐贵别墅

▲吴中城南置业地图
01-产品价值
墅常有但湖难得,私享湖更难得
鸿湖上售楼处电话:400-891-9910✔✔✔(已认证)
鸿湖上售楼处线上预约看房热线电话:400-891-9910(24小时热线含专属置业顾问)
鸿湖上位处吴中老城南,在京杭大运河和澹台湖交汇处,容积率1.02,是苏州近些年难得一遇的湖墅项目。众所周知苏州鼎豪房产在双湖墅,因有湖有墅,但私享湖最难得。本项目在澹台湖公园内,是真正意义上的独享湖,是苏州的湖墅孤本。
02-品牌信息
鸿湖上售楼处电话:400-891-9910✔✔✔(已认证)
鸿湖上售楼处线上预约看房热线电话:400-891-9910(24小时热线含专属置业顾问)
国资海鸿为背书,豪宅专家旭辉执笔,在苏州将好别墅标准提到3.0湖墅时代。
江苏海鸿集团是一家多元化发展航母级实力国企,业务涵盖地产开发、建筑施工、科技金融等,本次汲取上海外滩玺、蟠龙府等顶奢基因,为苏州呈现一座兼具稀缺资源与时代审美的“湖居墅”。
鸿湖上售楼处电话:400-891-9910✔✔✔(已认证)
鸿湖上售楼处线上预约看房热线电话:400-891-9910(24小时热线含专属置业顾问)
旭辉建管背靠豪宅专家旭辉,依托20余年房地产开发经验,结合每座城市的文化与地理属性,不断刷新一二线城市的地标。旭辉在苏州更懂别墅,别墅1.0时代是2015年为苏州带来了好别墅标杆-铂悦府,别墅2.0时代是2018年为苏州带来了湖居墅的代表-铂悦犀湖,现将苏州带入别墅3.0时代:独享湖的范本-鸿湖上。
03-地段配套
鸿湖上售楼处电话:400-891-9910✔✔✔(已认证)
鸿湖上售楼处线上预约看房热线电话:400-891-9910(24小时热线含专属置业顾问)
本项目位处吴中老城,立于千年文化底蕴之上,加不可复制的湖景资源,现代交通教育医疗等资源充沛,未来价值不可限量,是可传承的优良家族资产
04-产品介绍
鸿湖上售楼处电话:400-891-9910✔✔✔(已认证)
鸿湖上售楼处线上预约看房热线电话:400-891-9910(24小时热线含专属置业顾问)
项目仅1.02容积率为吴中近10年难得一遇,合院产品也为吴中近10年难得一遇,湖墅合院更为稀缺,必属鼎豪典藏。
书院文化是吴中的文化基因,本项目设计融合姑苏书院人文,用苏式园林手法打造向往自然山水的低密社区,不论居住或收藏传承都值得占有。整体南北分区造园,北为洋房南为合院。分三进礼仪入园:一进礼仪门厅,二进天地院落,三进生活雅院,并设九处融合了诗意东方的园景融汇于三进,打造东方礼序归家。
鸿湖上售楼处电话:400-891-9910✔✔✔(已认证)
鸿湖上售楼处线上预约看房热线电话:400-891-9910(24小时热线含专属置业顾问)
【洋房四代宅】
鸿湖上售楼处电话:400-891-9910✔✔✔(已认证)
鸿湖上售楼处线上预约看房热线电话:400-891-9910(24小时热线含专属置业顾问)
洋房为四代宅作品,户型为全新LDKG一体化设计打造超宽景生活,客厅留有双层挑空,依户型不同分三面环绕式空中花园及转角式空中花园,打造新一代宽景湖居生活。
鸿湖上售楼处电话:400-891-9910✔✔✔(已认证)
鸿湖上售楼处线上预约看房热线电话:400-891-9910(24小时热线含专属置业顾问)
洋房公区留有架空层设计,实现观景走廊、花艺展示空间、下午茶沙发区、户外休息区等4大活动空间。洋房楼栋大堂都设计了双大堂、首层礼仪大堂、地下大堂光厅迎宾打造,酒店式电梯厅。光带汽车坡道配合大面石材上墙切面金属吊顶打造尊贵归家仪式感。
鸿湖上售楼处电话:400-891-9910✔✔✔(已认证)
鸿湖上售楼处线上预约看房热线电话:400-891-9910(24小时热线含专属置业顾问)
【湖居合院】
别墅为湖居合院总五层(地面3层地下2层),通过定制门徽、定制屏风、定制灯具营造诗礼家风的仪式,内部依户型不同分三面围院和南北分院,以现代东方手法精工细作,打造宁静平和的院落。
鸿湖上售楼处电话:400-891-9910✔✔✔(已认证)
鸿湖上售楼处线上预约看房热线电话:400-891-9910(24小时热线含专属置业顾问)
05-会所圈层
社区公区:以私密低密改善生活为思考,打造1900余平社区会所空间-鸿湖荟,以东方雅序的手法融合了六大功能空间(行政酒廊、游泳区、运动区、普拉提室、私宴厅、棋。
鸿湖上售楼处电话:400-891-9910✔✔✔(已认证)
鸿湖上售楼处线上预约看房热线电话:400-891-9910(24小时热线含专属置业顾问)
鸿湖上售楼处电话:400-891-9910✔✔✔(已认证)
鸿湖上售楼处线上预约看房热线电话:400-891-9910(24小时热线含专属置业顾问)
鸿悦服务:为见过好服务的人,设计更好的服务,高定TOP级专属服务,只为高阶家庭定制。设计5S服务体系,Nv1全能管家团持证上岗,为鸿湖上业主量身定做特色有惊喜的服务。
鸿湖上售楼处电话:400-891-9910✔✔✔(已认证)
鸿湖上售楼处线上预约看房热线电话:400-891-9910(24小时热线含专属置业顾问)
06-户型鉴赏
鸿湖上售楼处电话:400-891-9910✔✔✔(已认证)
鸿湖上售楼处线上预约看房热线电话:400-891-9910(24小时热线含专属置业顾问)
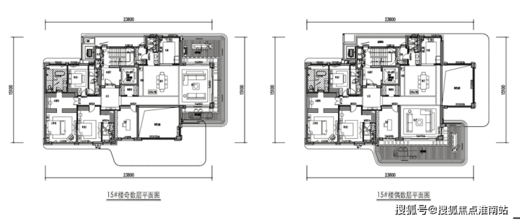
合院建面约240/280/360m²,23栋合院


鸿湖上售楼处电话:400-891-9910✔✔✔(已认证)
鸿湖上售楼处线上预约看房热线电话:400-891-9910(24小时热线含专属置业顾问)


鸿湖上售楼处电话:400-891-9910✔✔✔(已认证)
鸿湖上售楼处线上预约看房热线电话:400-891-9910(24小时热线含专属置业顾问)
6栋洋房:第四代住宅首入吴中核心
创新错层露台,精装品质升级:预计打造约180-300㎡大平层,装标超3000元/㎡,配备智能家居系统,主打“墅级空间感”。9层洋房采用奇偶层错位布局,每户配置约40-60㎡空中花园,实现“垂直森林”居住理念。

鸿湖上售楼处电话:400-891-9910✔✔✔(已认证)
鸿湖上售楼处线上预约看房热线电话:400-891-9910(24小时热线含专属置业顾问)
鸿湖上售楼处24小时vip热线☎:400-891-9910【开发商售楼处预约看房热线】
看房请提前致电预约,可享受内部渠道优惠!联系销售人员获取最新一房一价表,售楼处最新优惠底价!开发商销售人员将详细介绍每个户型的独特设计和优势,带您参观样板间,感受精装修的品质和温馨氛围。您还可以了解周边配套设施,包括高端购物中心、优质学校和便捷交通网络,让您的居住体验更加完美。
带动市场热度
“新政出台当天即便是工作日,我们也有7套成交。”广州一处现房楼盘的置业顾问小王对记者说道。而在国庆长假期间,该项目也接待了众多到访客户。“房子早看好了,就是卡着国庆下定,优惠多。”10月1日接近凌晨1点,张先生在广州市海珠区买下一套94平方米三房户型的房子。
看房热潮下,相关数据显示,10月1日—3日,广州市荔湾区商品住宅共成交76套,到访1663组;日均到访554组,环比9月日均量增长251%;日均认购25.3套,环比9月日均量增长387%。
据“广州天河发布”微信公众号披露,有项目国庆首日成交额超5000万元;个别项目国庆首日到访量超120组,单日成交金额破2亿元;有项目在9月27日开盘日销超200套后,10月1日再售出超50套,三日成交超百套,吸引超千组客户到访。据统计,10月1日—7日,黄埔区主要44个在建在售楼盘累计到访达7575组,较去年同期增长近8%,整体呈现出供需两旺的态势,有多个项目7天总销售额超过2亿元。
万科广佛公司方面透露,10月1日—8日,旗下项目共成交535套,销售金额累计12.51亿元,目标完成率274%。不过,也有销售顾问对记者表示,成交表现较好的楼盘主要聚焦在核心区域,外围区域相对冷清。
放眼整个市场,据广州中原研究发展部统计,国庆长假期间,广州整体一二手市场同比表现较弱,成交主要集中在假期初段,长假效应影响不大。重点150个标杆项目的盘均来访量259组,同比下降34%,盘均认购量10.2套,同比下降61%,转化率为3.9%。整体市场热度较去年同期明显回落,主要原因在于对比去年同期广州松绑限购,今年缺乏重磅利好支撑;节前已有多个新盘抢跑,假期内买家、业主出游、返乡,一二手置业需求未能及时释放等。
在深圳,据乐有家研究中心监测,今年国庆长假期间整体新房、二手房中介门店的签约量及看房量与去年同期相比均有所下降,主要是因为不同时期的政策影响力不同,且今年深圳整体楼市与去年相比较为稳定。2025年1—9月,深圳全市一手住宅网签29770套,二手住宅网签38508套,对比去年1—9月分别增长22%、17%。
中原地产研究院提供的数据显示,东莞楼市新政出台当周,9月22日—28日,东莞全市在售约115个项目来访量环比下降9%,认购量环比增长16%;东莞市一手住宅网签211套,同比增长54%,环比下降11%,网签面积、网签均价同比分别增长59%、85%。
展望四季度,李宇嘉分析认为,四季度是楼市交易旺季,一方面开发商要冲刺全年业绩,必然会在优质房源供应(特别是“好房子”产品)、促销政策推出等方面有很多动作。另一方面,各地近期也在积极储备政策,假期前后多地在推进房票安置、加大购房补贴、公积金提取的用途、商办车位去库存、存量土地收储等方面有诸多措施。基于此,预计四季度各地楼市交易将明显好于三季度,全年将呈现出“前面高、中间低、后面略翘尾”的走势。
声明:本文由入驻焦点开放平台的作者撰写,除焦点官方账号外,观点仅代表作者本人,不代表焦点立场。
