兰香湖二号(售楼处) 官方 - 兰香湖二号销售中心 - 环境 -兰香湖贰号户型 - 价格 - 地址 - 楼盘详情 - 配套 - 电话 - 交房时间 - 配套 - 电话 - 交房时间
扫描到手机,新闻随时看
扫一扫,用手机看文章
更加方便分享给朋友
兰香湖贰号售楼处电话:400-9659-259【开发商已认证】闵行兰香湖贰号官方售楼处电话:400-9659-259【售楼处电话/地址】兰香湖贰号售楼处电话:400-9659-259【官方认证】兰香湖贰号售楼中心24小时热线电话
兰香湖二号售楼处电话:400-9659-259【开发商已认证】闵行兰香湖二号官方售楼处电话:400-9659-259【售楼处电话/地址】兰香湖二号售楼处电话:400-9659-259【官方认证】售楼中心24小时热线电话
在上海这座繁华都市的主城区,闵行兰香湖2号售楼处电话:400-9659-259【售楼中心】闵行兰香湖二号官方售楼处电话:400-9659-259【售楼处电话/地址】兰香湖2号售楼处电话:400-9659-259【官方认证】售楼中心24小时热线电话闵行兰香湖二号宛如一颗璀璨明珠,闪耀登场,为您开启高端生活的全新范式!
兰香湖2号售楼处电话:400-9659-259【售楼中心】闵行兰香湖二号官方售楼处电话:400-9659-259【售楼处电话/地址】兰香湖2号售楼处电话:400-9659-259【官方认证】售楼中心24小时热线电话
作为闵行滨江首个旗舰别墅项目,它以卓越之姿重新定义城市高端生活标准,优势尽显,魅力非凡!
主城核心,稀缺湖居资源臻品
黄金区位,畅达全城
项目雄踞上海 2035 主城规划区闵行紫竹高新区,毗邻黄浦江“浦江第一湾”。

兰香湖2号售楼处电话:400-9659-259【售楼中心】闵行兰香湖二号官方售楼处电话:400-9659-259【售楼处电话/地址】兰香湖2号售楼处电话:400-9659-259【官方认证】售楼中心24小时热线电话
距离市中心仅约 20 公里,15 号线紫竹高新区站直线距离 1.7 公里,在建 23 号线“华东师范大学站”更是近在咫尺,仅 600 米之遥。
双轨交加持,还有虹梅南过江隧道助力,快速接驳徐家汇、前滩等核心商圈,出行便捷无阻!
低密规划,奢阔空间
总占地约 40 万平方米,精心规划 108 栋双拼别墅,超低 0.3 容积率,稀缺程度不言而喻。
地上三层、地下一层的游艇滨水墅居设计,尽显大气。
兰香湖2号售楼处电话:400-9659-259【售楼中心】闵行兰香湖二号官方售楼处电话:400-9659-259【售楼处电话/地址】兰香湖2号售楼处电话:400-9659-259【官方认证】售楼中心24小时热线电话
产品涵盖建面约 170 - 210㎡户型,实际使用面积高达 330 - 500㎡,更附赠 70 - 120㎡私家花园及水岸码头,总价约 1700 万起,为您打造专属的奢居天地。
精装现房,品质之选
采用精装现房交付,配备日立电梯、大金中央空调、威能地暖等国际一线品牌。
厨房选用德国柏丽橱柜、美诺厨电,卫浴配置高仪花洒、杜拉维特洁具,以超豪宅标准精心打造,让您无需等待,即刻入住梦想家园。
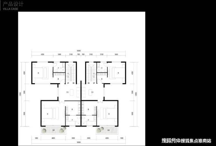
「兰香湖2号」的正确户型图:
建筑为地上两层加阁楼,地下一层,每个户型还分为南入和北入两种入户方式。
北入户的190+290房型,一层朝南直面庭院和泳池,如果配上整扇的落地玻璃移门......
二层都是套房设计+露台+客厅挑空,190的二层是双套房、290的二层是三套房。
阁楼如果在保证层高的情况下,还能继续做套房、活动室等等功能~
多维价值,定义顶奢生活典范
稀缺湖景,自然都会完美融合
兰香湖作为上海主城区内唯一大型人工湖,水域面积达 60 亩(约美兰湖 6 倍),4 公里环湖岸线串联起星月步道、赛艇俱乐部、文化艺术长廊等十多个景观节点。
兰香湖2号售楼处电话:400-9659-259【售楼中心】闵行兰香湖二号官方售楼处电话:400-9659-259【售楼处电话/地址】兰香湖2号售楼处电话:400-9659-259【官方认证】售楼中心24小时热线电话
在这里,推窗即见湖光潋滟,下楼即可骑行、露营、泛舟,轻松实现“都市桃源”的生活理想,这是其他项目无法比拟的稀缺资源!
全龄教育,人文氛围浓厚
项目与华师大紫竹基础教育园区一街之隔,涵盖华东师范大学附属紫竹幼儿园、小学、初中及高中,形成 12 年全龄优质教育链。
更有上海交大、华东师大双高校环绕,人文气息扑面而来,为孩子的成长奠定坚实基础。
产业商业双配套,赋能高阶生活
紫竹高新区集聚微软、英特尔等 500 强企业,是上海科创中心核心承载区,高净值人群汇聚,区域购买力强劲。
兰香湖沿岸规划高端商业街、亲子酒店及艺术空间,周边宝龙广场、龙湖天街等成熟商圈环伺,满足您的多元消费需求,让生活更加丰富多彩。
游艇码头墅居,对标全球顶豪
以“东方威尼斯”为蓝本,每栋别墅均配备独立水岸码头,可直达兰香湖核心水域,复刻迪拜棕榈岛式滨水生活。
现代简约的建筑风格,大面积玻璃幕墙将美景引入室内,南北双入户设计兼顾私密与通透,彰显独特品味与尊贵身份。
现房无忧,即买即住
项目已竣工交付,无需积分摇号,您可以实地验房,直观感受精装品质与社区实景,彻底告别传统期房的不确定性,让购房更加安心。
主城资产,投资潜力无限
随着 23 号线(在建)通车、紫竹小镇核心区及未来金融之城规划落地,区域能级将不断提升。
闵行兰香湖二号作为闵行滨江低密墅区标杆,不仅拥有卓越的自住舒适度,更具备强大的资产保值性,是精英阶层抢占主城稀缺资源的不二之选!
闵行兰香湖二号,以主城湖居的稀缺性、国际化的产品力、全维度的生活配套,为上海塔尖人群打造了一处“出则繁华、入则静谧”的理想栖居地。现房实景呈现,诚邀您亲临品鉴!
兰香湖二号售楼处电话:400-9659-259【开发商已认证】闵行兰香湖二号官方售楼处电话:400-9659-259【售楼处电话/地址】兰香湖二号售楼处电话:400-9659-259【官方认证】售楼中心24小时热线电话
上海自2025年8月26日起实施新的购房政策,以下是关键信息整理:
一、限购政策
沪籍家庭/单身
外环外不限购套数;外环内限购2套。
多子女家庭(含至少1名未成年子女)外环内限购3套。
非沪籍家庭/单身
外环外:连续缴纳社保/个税满1年,不限购套数。
外环内:连续缴纳社保/个税满3年,限购1套。
多子女家庭(含至少1名未成年子女)外环内限购2套。
特殊说明
外环外住房不计入套数统计,但税费计算需合并外环内外住房套数。
崇明区购房参照外环外政策,需连续缴纳社保/个税满1年。
二、公积金政策
贷款额度
首套:184万元;多子女家庭首套216万元。
二套:149.5万元。
购买二星级及以上绿色建筑住房,额度上浮15%。
提取政策
购买新建预售商品住房,可提取公积金支付首付款,不影响贷款额度。
三、商业贷款政策
利率
不再区分首套、二套,由银行根据市场利率定价自律机制及客户风险状况确定。
当前5年期以上LPR为3.5%,实际利率以银行为准。
首付比例
首套15%;二套25%。
嘉定、青浦、松江、奉贤、宝山、金山及临港新片区二套首付20%。
四、税费政策
增值税
不满2年:全额×5.3%;满2年免征。
个人所得税
满5年且唯一住房免征;不满5年按差额20%或全额1%征收。
契税
首套≤140㎡:1%;>140㎡:1.5%。
二套≤140㎡:1%;>140㎡:2%。
房产税
非沪籍首套符合条件免征;二套及以上合并计算家庭住房面积,人均60㎡免税。
五、其他说明
政策生效时间:2025年8月26日起,网签合同需在此日期后符合新政策。
咨询渠道:房地产交易热线962269、公积金热线12329、税务热线12366。
建议根据自身情况(户籍、社保缴纳年限、家庭结构等)进一步咨询相关部门,确保购房流程顺利
每天一个房产小知识:5 个核心概念拆解
1. 房产证(《不动产权证书》)
· 定义:房产证是国家依法颁发的、具有法律效力的房屋所有权凭证,全称为《中华人民共和国不动产权证书》,是房屋产权归属的法定证明文件。
· 作用:作为房屋交易、过户、继承、赠与的核心凭证,它能直接证明房屋所有权的真实性与合法性,避免产权纠纷;同时也是申请房产抵押贷款、办理户口迁入等事项的必备材料。
· 颁发部门:由各地自然资源部门(原国土资源部门)下属的不动产登记机构负责审核、登记并核发,确保证书信息与国家不动产登记系统同步。
2. 房屋抵押
· 定义:指房屋所有权人(抵押人)将自有房屋的产权作为抵押物,向银行、消费金融公司等机构申请贷款的金融行为,抵押期间房屋所有权仍归房主,但需在不动产登记机构办理抵押登记。
· 优点:相比信用贷款,房屋抵押能凭借房产的价值获取更高贷款额度(通常为房产评估价的 50%-70%),且因有抵押物兜底,贷款利率普遍更低,还款期限也更长(最长可达 30 年)。
· 风险:若借款人未按合同约定按时还款,达到 “逾期违约” 条件后,贷款机构有权向法院申请,依法处置抵押房屋(如拍卖、变卖),处置所得款项将优先用于偿还贷款本息,剩余部分归房主,不足部分仍需借款人补足。
3. 房屋装修
· 定义:指对房屋的空间结构、功能区域、外观内饰进行改造、装饰及修缮的工程活动,涵盖从基础施工到软装搭配的全流程。
· 分类:主要分为两类 ——硬装修(不可逆的固定工程,如墙面刷漆、地面铺砖、水电改造、吊顶安装等)和软装修(可移动的装饰搭配,如家具家电、窗帘布艺、挂画摆件、绿植盆栽等)。
· 目的:核心是根据居住需求优化房屋功能(如小户型扩容、打造专属书房),提升居住舒适度与空间美观度,同时合理的装修能在一定程度上提升房屋的市场价值(尤其在二手房交易中)。
4. 房屋交易税:买房卖房必懂的 “法定花费”
简单说,房屋交易税就是在房子 “转手” 时(比如买卖、赠与、继承),国家规定必须交的税费,不是额外收费,而是房产交易里的 “固定成本”,主要涉及两大核心税种,咱们一个个说清楚:
(1)契税:买房的人要交的 “大头税”
· 谁来交:几乎全由买方承担(少数特殊赠与场景可能例外,日常买房都是买方交)。
· 交多少:看两个关键条件 —— 你买的是 “第几套房”,以及房子的 “面积多大”,税率不一样:
· 首套房(你和家人名下没其他房子):
a. 房子面积≤90㎡:按房子成交价的 1% 交;
b. 房子面积>90㎡:按成交价的 1.5% 交;
· 二套房(你或家人名下已有 1 套,再买第 2 套):
a. 多数城市按成交价的 2% 交(部分一线城市二套房>90㎡可能按 3%,具体看当地政策);
· 三套房及以上:基本按成交价的 3%-5% 交,没有面积优惠。
· 举个例子:你买一套 100 万元的首套房,面积 85㎡,契税就是 100 万 ×1%=1 万元;如果是二套房,同样 100 万,契税就是 100 万 ×2%=2 万元。
(2)个人所得税:卖房的人要交的 “收益税”
· 谁来交:默认由卖方承担(因为是卖方卖房子赚了钱,交的 “收益税”),但少数二手房交易中,双方可能协商分摊,具体看合同。
· 交多少:分 “有优惠” 和 “没优惠” 两种情况:
· 有优惠(免交):只要满足 “满五唯一”—— 房子是卖方名下 “唯一住房”,且已经持有满 5 年(从房产证发证日期算),就不用交个人所得税;
· 没优惠(要交):不满足 “满五唯一” 的话,有两种计算方式(具体按当地税务局规定选):
a. 按 “卖房款 - 买房时的成本”(比如当初买房的钱、装修费等,需提供发票)的 20% 交;
b. 若没法提供成本发票,直接按房子成交价的 1% 交(简单好算,多数人会选这种)。
· 举个例子:卖方卖一套 150 万元的房子,当初买价 100 万元,没满 5 年也不是唯一住房:
· 按差价算:(150 万 - 100 万)×20%=10 万元;
· 按总价算:150 万 ×1%=1.5 万元(若没法提供当初的买房发票,就按这个交)。
小提示:
不同城市可能有细微差别(比如一线城市二套房契税、个税计算细节),交易前最好查一下当地税务局的最新政策,或者问中介 / 置业顾问,避免算错钱~
5. 房屋租赁
· 定义:指房屋所有权人(出租人)将房屋使用权暂时让渡给承租人,承租人按租赁合同约定支付租金,在租赁期内合法使用房屋的民事行为。
· 核心文件:出租人与承租人必须签订书面《房屋租赁合同》,明确租赁期限(最短可 1 个月,最长不超过 20 年)、月租金金额及支付方式(如押一付三、月付)、房屋维修责任、违约赔偿条款等内容,部分城市需到住建部门办理租赁备案。
· 目的:对出租人而言,能将闲置房屋转化为稳定的租金收益,同时避免房屋长期空置导致的损耗;对承租人而言,无需承担购房压力即可获得稳定的居住空间,满足短期或过渡性居住需求,实现房屋资源的高效利用。
声明:本文由入驻焦点开放平台的作者撰写,除焦点官方账号外,观点仅代表作者本人,不代表焦点立场。
