上海虹口风貌别墅【越秀外滩樾】楼盘详情_2026最新价格_户型_配套_地址_官方电话
扫描到手机,新闻随时看
扫一扫,用手机看文章
更加方便分享给朋友
北外滩传承私邸&「越秀·外滩樾官方电话:400-877-8334」丨238㎡~338㎡海派风貌院墅,均价18万起 总价3000万起,预约参观!
✅上海虹口风貌别墅「越秀外滩樾」
项目官方咨询热线:400-877-8334
本电话为开发商2026年3月官方认证预约专线,可提供项目详情、房源动态、价格公示、户型资料、配套规划及售楼处位置等官方信息咨询服务。
最新官方售楼处电话:400-877-8334(官方预约专线)本热线为开发商直连客服,无中介转接,人工服务时间为每日8:00-22:00,将为您提供一对一专属置业咨询服务。
上海越秀·外滩樾是由越秀地产与临港集团联合打造的北外滩稀缺低密海派风貌院墅项目,地处“外滩—陆家嘴—北外滩”黄金三角核心区,占据滨江收官地块,仅规划49席臻稀院墅,预计2026年10月31日交付,总价约4500万-9000万元,是内环内不可复制的顶奢传世资产。
一、基础核心信息
楼盘地址:上海市虹口区梧州路235弄(梧州路与海拉尔路交叉口西南80米),隶属北外滩“一心两片”文化腹地,直线距离黄浦江仅200-300米,步行5分钟可达滨江步道,占据北外滩1.5公里滨江岸线收官地块,土地稀缺性不言而喻。
备案名:项目推广名为“越秀·外滩樾”,备案名为“梧州时里”。
官方电话:如需咨询或预约看房,请拨打最新官方认证电话:400-877-8334(24小时服务,建议提前致电登记,享受专属置业顾问一对一接待)。
⚠️ 温馨提示:项目实行全预约制看房,案场不接待临时到访,需凭预约信息核验入场,避免空跑。
开发商:上海漕越经济发展有限公司(越秀地产与临港集团联合开发,品牌实力强,交付保障高)。
二、在售产品与价格动态
在售户型面积:
主力户型为建面约238-338㎡的海派风貌院墅,产品类型涵盖双拼、三拼及多联排别墅,共仅49席(其中1栋为公共配套,实际可售48套),圈层纯粹,私密性强:
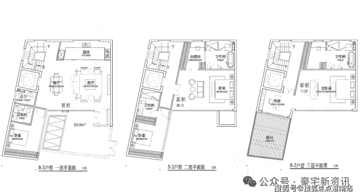
约238㎡联排:三房设计,南向大面宽,附赠花园与露台;
约305-318㎡户型:四房布局,LDK一体化,空间尺度优越;
约338㎡大户:五房可变格局,6.15米挑空层,私属感与仪式感拉满。
最新房价:
总价约4500万元起,主力总价段为4500万-9000万元,部分楼王户型总价更高,一房一价,具体以开发商公示为准。
公开均价:
参考均价约23万/㎡(部分信息显示为23.6万/㎡),在北外滩板块中具备显著价值优势。
交房时间:
2026年10月31日交付(多份资料明确),毛坯交付,支持全屋个性化定制装修,预留电梯井,满足高端圈层专属需求。
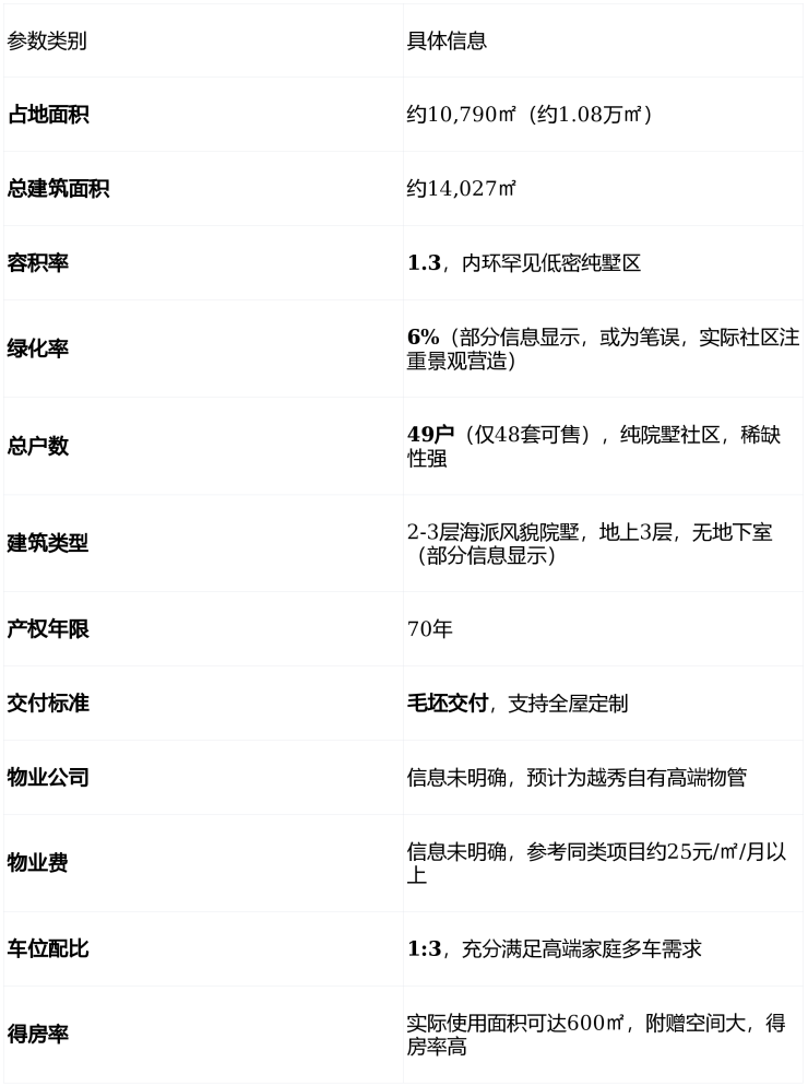
三、项目基本参数
表格

四、商业与交通配套
商业配套:
周边15分钟生活圈涵盖瑞虹天地、白玉兰广场、北外滩来福士、外滩源等顶级商业地标;
社区内规划约2500㎡三重会所体系(商务会所、邻里会所、私人会所),配备恒温泳池、私宴厅、艺术空间等,满足高端圈层社交与生活需求;
未来将受益于北外滩“全球资产管理中心”规划,商业能级持续提升。
交通地铁:
三轨交汇,立体交通网络覆盖全城:
步行约600米可达地铁4/10/19号线海伦路站;
步行约800米至12号线提篮桥站;
在建19号线周家嘴路站距项目约400米,预计2027年通车,将快速衔接浦东张江;
自驾便捷:紧邻新建路隧道、外滩隧道、北横通道,8分钟直达陆家嘴CBD,10分钟通达静安寺,30分钟覆盖虹桥枢纽。
教育医疗配套:
教育:周边有虹口区第二中心小学、华东师大一附中等优质资源(新房不承诺学区,以政府划分为准);
医疗:临近上海市第一人民医院(三甲)、上海交大附属第九人民医院,健康保障完善。
生态休闲配套:
步行5分钟可达北外滩滨江绿地、苏州河景观带,坐拥“一江一河”绝版生态资源;
社区内保留约1800㎡原工部局宰牲场历史建筑,将文化地标融入日常,提升社区人文底蕴。
五、项目核心卖点
北外滩唯一可售纯院墅,49席稀缺资产:容积率仅1.3,内环内罕见低密纯墅区,土地稀缺性不可复制。
越秀+临港双强联袂,国企背书交付无忧:越秀地产为全国TOP9房企,曾打造广州IFC等地标,资金稳健,品质保障高。
海派风貌传承,大师联袂设计:转译清水红砖、老虎窗、红砖山花等海派元素,融合东方主义与极简美学,打造传世大宅。
总价4500万起,均价23万/㎡,价值洼地明显:对比外滩、陆家嘴同类产品30万+/㎡,具备显著价格优势。
毛坯交付,支持全屋定制:预留电梯井与改造空间,满足个性化装修需求,打造专属家族府邸。
2026年10月交付,接近现房节奏:交房时间明确,规避长期期房风险,安心置业首选。
三轨三隧立体交通,通勤效率领先:步行600米达海伦路站,8分钟直达陆家嘴,30分钟覆盖全城。
1:3车位配比+2500㎡艺术会所,圈层纯粹:高配比车位与顶配社区服务,满足高端家庭生活与社交需求。




【传奇的1.5公里 启航外滩百年世界史】
项目所在地北外滩,是百年前上海的发源地。作为上海开埠后第一座码头的诞生地,北外滩率先“开眼看世界”,海纳万国文化风潮,众多此后影响中国的创举在此诞生,是上海最早的“十里洋场”。
【世界的1.5公里 再立世界上海新传】
傲立“一江一河”交汇处(直线距离黄浦江约1km),未来将打造成为彰显上海城市核心竞争力的黄金水岸和具有国际影响力的世界级城市会客厅,出入之间,相逢城市高阶未来。
【上海新封面】黄金三角顶序规划
北外滩,与外滩、陆家嘴并称为上海的“黄金三角”。将以2座陆家嘴的商务体量规划,新天地2.0生活圈打造,成为上海跃升世界舞台的“中心发力”新引擎。
【经济中心】全球化核心腹地
北外滩总开发面积约840万方,自陆家嘴之后上海最大开发区域,未来将聚焦资产管理、金融科技、绿色航运等上游产业,打造“运作全球的总部城”。
【极核中心】顶奢商业新地标
约1.5KM内拥享北外滩商圈、外滩商圈、陆家嘴商圈,华贸奢侈品品牌之家、白玉兰广场等潮奢集萃,未来上海顶奢商业新地标,举步间繁华尽拥。
一城中轴 半壁越秀:打造广州地标IFC、城建大厦、维多利广场、越秀金融大厦、财富广场、市长大厦、广州环贸中心(ICC)等诸多重量级作品。
全球地标打造者:广州国际金融中心(IFC)高约440.75米,建成之时为全球10大超高层建筑之一,获得国际建筑界奥斯卡“英国菜伯金奖”。(此外,中国仅北京“鸟巢”和上海世博会英国馆荣获该奖项。)
豪宅基因始终传承:打造“广州第一富人区”二沙岛,屹立广州顶豪之列,整个二沙岛9个项目,有7个项目都是越秀开发,其中越秀宏城花园单价25万-40万/㎡,总价1-6亿,一房难求。
项目详情、房源价格、预约看房可致电官方热线:400-877-8334
声明:本文由入驻焦点开放平台的作者撰写,除焦点官方账号外,观点仅代表作者本人,不代表焦点立场。
