华发海上都荟售楼处│华发海上都荟 (营销中心) 首页 - 2025 销售中心 (售楼处)- 楼盘欢迎您 - 价格 / 户型 / 地址 / 环境 / 配套 / 交房时间 / 电话
扫描到手机,新闻随时看
扫一扫,用手机看文章
更加方便分享给朋友
上海松江「华发海上都荟」
售楼处电话☎:400-9966-224✔✔【预约热线】(一对一热情服务)
如有问题欢迎来电咨询,专业一对一热情服务,让您用专业眼光去买房。
上海松江华发海上都荟售楼处电话☎:400-9966-224✔✔【预约热线】华发·海上都荟一脉徐汇·双轨交·约42万方国际科创生活城
—————— 项目详细信息 ——————
开发商:华发股份板块占位:松江产品类别:高层(18层)、叠墅(4层/6层)物业类型:70年产权总建筑面积:约42万方 绿化率:约35%
上海松江华发海上都荟售楼处电话☎:400-9966-224✔✔【预约热线】容积率:约2.1可售住宅:约2500套联动价:5万元/㎡车位配比:1:1.3
户型面积:建面约89-99㎡高层户型、建面约90-133㎡叠加户型
国企巨擘 百强企业【华发股份,匠心43载】
上海松江华发海上都荟售楼处电话☎:400-9966-224✔✔【预约热线】珠海华发实业股份有限公司(简称:华发股份,股票代码 :600325)是承接华发集团房产开发版块的平台公司,组建于1992年,前身始创于1980年,拥有国家一级房地产开发资质,2004年成功在上海证券交易所挂牌上市。2017年起连续七年跻身《财富》“中国500强”榜单。上海松江华发海上都荟售楼处电话☎:400-9966-224✔✔【预约热线】2022年“房地产开发企业综合实力TOP500”第20位,2023年“中国房地产百强企业”第12位。
【造城六大黄金法则,与城市共「城」长】
上海松江华发海上都荟售楼处电话☎:400-9966-224✔✔【预约热线】华发在珠海特区的建设过程中,始终跟随脚步,二十多年来,华发先后成功开创了4次造城运动,可以说珠海城市格局的形成,有华发浓墨重彩的一笔。在新时代下,十余年丰富经验的“造城专家”华发,酝酿了一套造城的“六大黄金法则”——上海松江华发海上都荟售楼处电话☎:400-9966-224✔✔【预约热线】 黄金区位、明星产业、巨量规模、高端规划设计、优渥自然、全龄全能配套。
【深耕上海9载,与城市同频共振】
上海松江华发海上都荟售楼处电话☎:400-9966-224✔✔【预约热线】华发重仓上海,以前瞻性眼光考量区域未来规划发展及产业利好,自2014年首进上海,9年间布局项目已达27个,上海松江华发海上都荟售楼处电话☎:400-9966-224✔✔【预约热线】服务业主超16000户,不仅打造了静安府、华发四季、苏河世纪、静安华府、半岛华庭、四季河滨等一系列红盘,还收获了良好的市场口碑。
万亿走廊 价值高地
【国家级科创布局,G60科创走廊核芯站点】
上海松江华发海上都荟售楼处电话☎:400-9966-224✔✔【预约热线】松江作为五大新城中的重点国家级开发区,未来将引领长三角城市群的发展,推动长三角城市群成为世界第六大城市群。而洞泾作为松江东北部城镇圈和G60科创走廊的重要组成部分,上海松江华发海上都荟售楼处电话☎:400-9966-224✔✔【预约热线】随着长三角一体化国家战略的提出,结合G60科创走廊和上海人工智能产业布局等重大机遇,洞泾将重点打造G60科创走廊示范引领的人工智能科创小镇,成为科创和人才高地。
合心规划 产城样板【“科创+人文+生态”城市单元示范】
上海松江华发海上都荟售楼处电话☎:400-9966-224✔✔【预约热线】华发股份首入松江,携崭新“优+产品体系5.0”,为洞泾、乃至为松江带来目前区域内综合高品质作品。结合上海生态环境保护“十四五“规划,站位国际领先的可持续性项目规划,华发·海上都荟结合自身的独特聚合优势,在传统TOD规划之上,叠加不可复制的土地生态资源,上海松江华发海上都荟售楼处电话☎:400-9966-224✔✔【预约热线】向东链接G60科创走廊“以镇命名为区块”洞泾人工智能产业基地;向南直达亚洲大学城之一——松江大学城;北侧紧连上海陆面自然山林资源——佘山国家旅游度假区。板块高度贴合上海2035与松江2035发展关键节点,将区域打造成为“科创+文教+生态”交汇的核心新城模式,划立一个崭新的城市单元示范。
资源精萃 鼎级配套【多维交通 都会超级枢纽】
华发·海上都荟咫尺洞泾站,5站七宝商圈、8站漕河泾、11站徐家汇,可以快速连通上海西区多个核心商圈。
上海松江华发海上都荟售楼处电话☎:400-9966-224✔✔【预约热线】·距9号线洞泾站直线距离约400米,12号线(在建中)西延伸线洞泾站位于9号线洞泾站旁,直线距离约500米,双轨交汇,帷幄交通大境。
项目西侧嘉松公路,向北可到达佘山、欢乐谷、山姆会员店、青浦奥莱等,向南可到达松江第一人民医院、松江区政府、松江大学城等。
项目北侧沈砖公路会设置上下匝道口,未来可快速直达虹桥机场及上海市中心。从项目出发,可快捷转到G50、G60高速,规划中的沪松快速路,北接漕宝路—嘉闵高架路立交,南至申嘉湖高速公路(S32),自驾出行,畅达无阻。
【黄金商圈 悦享繁华万象】
上海松江华发海上都荟售楼处电话☎:400-9966-224✔✔【预约热线】华发·海上都荟地理位置优越,真正实现半小时生活圈,5公里内丰富商业环伺:松江印象城、山姆会员店、万达广场、宝乐汇广场、五龙商业广场、开元地中海、泰晤士小镇等,吃喝玩乐购一站式生活,随时即享。依托轨交配套的落地,在12号线沿线位置将配置生态科技城TOD、未来湾TOD,双地铁上盖TOD规划,规划大型商办综合体、都市体育中心、历史文化馆、特色剧院、图书馆、科技体验展示馆、古镇特色商业街区等,未来将进一步提升洞泾板块的商业配套能级。
【优教邻里 启程锦绣人生】
上海松江华发海上都荟售楼处电话☎:400-9966-224✔✔【预约热线】华发·海上都荟周围优质学校林立:爱朗双语幼儿园、洞泾百鸟幼儿园、洞泾外国语实验学校、华东师范大学第二附属中学松江实验学校(华二),以及赫贤双语、包玉刚实验学校、上外西外等高端私立名校。全龄段教育覆盖,多元化的优质教育资源满足各种家庭结构对于教育的多元化需求。(非学区配套承诺,具体教育资源应以政府实际规划及要求为准)
上海松江华发海上都荟售楼处电话☎:400-9966-224✔✔【预约热线】【三甲医疗 护航健康未来】华发·海上都荟距上海市第一人民医院的松江院区约 4.2公里,上海市第一人民医院的松江院区是拥有直升机救援服务的综合性三甲医院,并拥有临床三级学科和医技学科48个,可以享受到市区同等医疗标准资源,服务高效且便捷。
【公园环伺 氧护诗意生活】
上海松江华发海上都荟售楼处电话☎:400-9966-224✔✔【预约热线】华发·海上都荟西侧、南侧所属区域正位于新城绿环青松生态廊道范围内,未来将形成宽约1公的蓝水绿植的大地景观带。近揽佘山国家森林公园、广富林遗址公园、广富林郊野公园、 辰山植物园四大公园,以及1个市政规划千亩百花港开放休闲林地,低密公园生活,真正被绿色环抱。
华发·海上都荟 国际住区
上海松江华发海上都荟售楼处电话☎:400-9966-224✔✔【预约热线】【简约立面 现代美学封面】华发·海上都荟建筑外立面的设计上采用了现代设计风格,打造现代简洁风格的高层立面形象,设计立足于材料和色彩的种族与调和,建筑与场所形成一种动态的和谐,摒弃了过于复杂的肌理和装饰,简化了线条,兼容华贵典雅与时尚现代感。
【城市山水 全景度假庭院】
上海松江华发海上都荟售楼处电话☎:400-9966-224✔✔【预约热线】华发·海上都荟邀请朗道国际景观设计倾力打造诗意园林,项目整体内外景观相互融合,以现代简约手法演绎城市山水意境,通过滨水景观与社区渗透,将项目自然水系引入场地中,同时,与建筑共同营造温馨的都市度假感,雅致的美学氛围让闲适重回生活,打造自然精致的美学人居环境,更以“五重体验空间”构建宜人归家品质生活。
【多元邻里空间 全龄志趣空间】
上海松江华发海上都荟售楼处电话☎:400-9966-224✔✔【预约热线】华发·海上都荟洞察大盘社交生活需求,打造近1900㎡配套用房,定制多重立体邻里空间生活体系,涵盖健身房、瑜伽室、泳池等运动邻里空间,以及育儿托儿、日间照料中心、文化活动室等丰富的功能共建,致力于构建业主第二会客厅,实现空间咬合,无所拘束的多场景共融。
【奢适空间 革新人居体验】
上海松江华发海上都荟售楼处电话☎:400-9966-224✔✔【预约热线】华发始终站在居者的角度,以“革新传统空间”理念,细致考究对空间的每一寸利用,以人性化的户型设计、定制化的户型尺度,在同等的面积下,以更合理规划、科学布局的设计观,打造建筑面积约99㎡的高层户型,以及建筑面积约90㎡—133㎡的4叠、6叠户型,多元的产品户型,满足不同家庭阶段和家庭成员生活所需。
阅·见 建筑面积约101m²G户型
上海松江华发海上都荟售楼处电话☎:400-9966-224✔✔【预约热线】三房两厅两卫全明户型| 约9.7m面宽,南向三开间,阳光清风滋养生活
社交场域|LDK一体化,亲子陪伴、好友聚会,多场景互动性
优游格局|全卧室飘窗,延伸美好,充分拥抱阳光生活
套房主卧|套房式主卧设计,私密尊贵,悦享多室花样生活
奢适卫浴|干湿三分离,洗漱与沐浴互相独立,多人使用从容有序
瞰·见 建筑面积约101㎡H户型
上海松江华发海上都荟售楼处电话☎:400-9966-224✔✔【预约热线】三房两厅两卫全明户型| 三面采光格局,阳光充沛,风景随心,视野宽广怡人阔境边厅|约5.4m边厅布局,超大阳台,采光观景浪漫盈然
上海松江华发海上都荟售楼处电话☎:400-9966-224✔✔【预约热线】套房主卧|套房式主卧设计,私密尊贵,悦享多室花样生活
优游格局|全卧室飘窗,延伸美好空间,品质生活悠然自得
奢适卫浴|干湿三分离,雅洁清新,细节之处彰显优越生活
1.地段优秀!双轨交纯正地铁盘!
上海松江华发海上都荟售楼处电话☎:400-9966-224✔✔【预约热线】地段:位于G60科创带咽喉地段,并且周边3大城市级TOD环绕,配套十分齐全!地铁:拥有双地铁,8站徐汇!直线距离9号线洞泾站约400米,直线距离12号线洞泾站(西延伸线在建中)约500米!
2.首开价格劲爆,低于联动价!
上海松江华发海上都荟售楼处电话☎:400-9966-224✔✔【预约热线】项目首开均价4.91万/㎡,低于联动价5万/㎡!这意味着这个项目后期加推的新房会涨价!关键4.91万/㎡的价格还是包含了叠墅与高层,单看高层的话,均价仅4.53万/㎡!总价最低400+万即可上车!
上海松江华发海上都荟售楼处电话☎:400-9966-224✔✔【预约热线】3.品质担当!高层+叠墅的产品搭配,同时满足刚需与改善!户型产品竞争力强,社区更是自带约2000㎡邻里空间配套和约1000㎡社区商业配套!户型装修品牌云集,适宜人居!

上海松江华发海上都荟售楼处电话☎:400-9966-224✔✔【预约热线】
那么,它是谁?它就是华发海上都荟,首推建面约99㎡高层、约90-133㎡叠加!总价最低400+万级即可上车!
上海松江华发海上都荟售楼处电话☎:400-9966-224✔✔【预约热线】
华发海上都荟,紧邻9号线和12号线西延伸段(在建)洞泾站,根据百度地图显示,项目所在地块距离地铁站最近的仅需步行约400米,指导价5万/㎡,即将入市!主力户型为建面约99㎡
上海松江华发海上都荟售楼处电话☎:400-9966-224✔✔【预约热线】F、G户型均为三开间朝南的三房两卫
全明通透,连通式阳台大大增加采光面
上海松江华发海上都荟售楼处电话☎:400-9966-224✔✔【预约热线】
户型免责:本资料为“华发海上都荟”的户型示意图,所示内容仅供参考,不作为要约或销售承诺,图中所示的装修、家具、陈设等不属于交付标准。不同户型的面积尺寸、功能布局、空间尺寸、朝向等均有不同,相同户型因楼栋、楼层、单元等差别,空间尺寸、朝向、局部结构、面积等也可能不同,具体以买卖合同约定和/或政府部门相关批准为准。本资料制作时间为 2024年3月。资料如有更新恕不另行通知,敬请留意最新资料。
上海松江华发海上都荟售楼处电话☎:400-9966-224✔✔【预约热线】
H户型为边套三房两卫
厨房、餐厅、客厅位于一条直线上
还有约5.4m大边厅带飘窗
可以更好地观赏窗外美景!
上海松江华发海上都荟售楼处电话☎:400-9966-224✔✔【预约热线】户型免责:本资料为“华发海上都荟”的户型示意图,所示内容仅供参考,不作为要约或销售承诺,图中所示的装修、家具、陈设等不属于交付标准。不同户型的面积尺寸、功能布局、空间尺寸、朝向等均有不同,相同户型因楼栋、楼层、单元等差别,空间尺寸、朝向、局部结构、面积等也可能不同,具体以买卖合同约定和/或政府部门相关批准为准。本资料制作时间为 2024年3月。资料如有更新恕不另行通知,敬请留意最新资料。
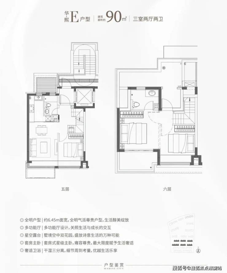
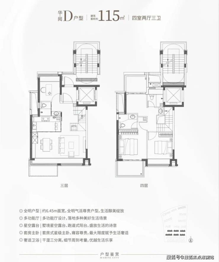
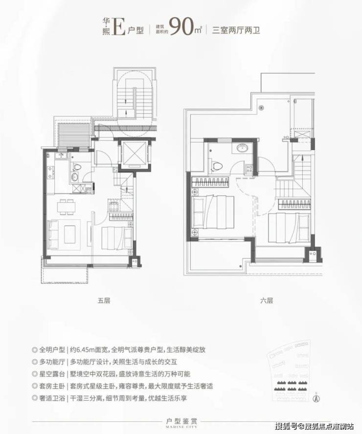
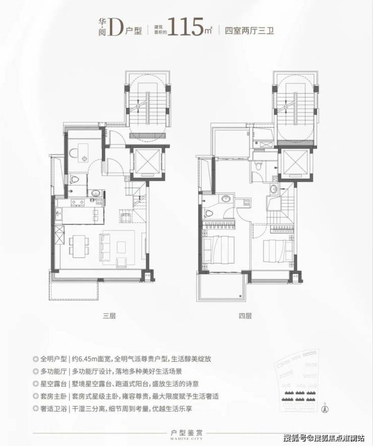
华发还有目前松江比较稀缺的叠加房源
上海松江华发海上都荟售楼处电话☎:400-9966-224✔✔【预约热线】分为六层叠加和四层叠加主力户型建面约90-133㎡
特别是这个E户型,建面仅约90㎡
对于想住叠加但预算有限的购房者来说
面宽约6.45米,上下动静分离带
是个不错的选择!
上海松江华发海上都荟售楼处电话☎:400-9966-224✔✔【预约热线】户型免责:本资料为“华发海上都荟”的户型示意图,所示内容仅供参考,不作为要约或销售承诺,图中所示的装修、家具、陈设等不属于交付标准。不同户型的面积尺寸、功能布局、空间尺寸、朝向等均有不同,相同户型因楼栋、楼层、单元等差别,空间尺寸、朝向、局部结构、面积等也可能不同,具体以买卖合同约定和/或政府部门相关批准为准。上海松江华发海上都荟售楼处电话☎:400-9966-224✔✔【预约热线】本资料制作时间为 2024年3月。资料如有更新恕不另行通知,敬请留意最新资料。
最新效果图如下(供参考)👇
交通:项目周边有9+12号线(西延伸段在建),是真正的双轨交汇地铁盘、地铁9号线5站到达七宝,8站到达漕河泾,11站徐家汇!
上海松江华发海上都荟售楼处电话☎:400-9966-224✔✔【预约热线】
12号线(西延伸段在建)是时隔多年来,松江继9号线之后迎来的第二条轨交地铁线,预计开通后将进一步松江、闵行地区的出行条件,对于长三角G60科创走廊起到有效支撑作用。
上海松江华发海上都荟售楼处电话☎:400-9966-224✔✔【预约热线】而且12号线(西延伸段在建)进展飞速,从2022年6月批复,到8月规划公示,再到12月底开始动工,12号线西延伸工程(在建)仅用了半年时间就走完了“前期流程”,预计建设工期为5年。
信息来源:上海发布
商业:9号线洞泾站规划有地铁上盖商办,往北1站佘山站有宝乐汇商场,2站泗泾站有三湘广场、大润发、保利悦活荟等。
上海松江华发海上都荟售楼处电话☎:400-9966-224✔✔【预约热线】
项目西南方向约2.4km处是松江网红打卡地松江印象城,二期在建中,建成后将升级约40万方的印象城MEGA!除此之外,南侧松江新城还有五龙商业广场、开元地中海、泰晤士小镇等。

信息来源:上海松江
上海松江华发海上都荟售楼处电话☎:400-9966-224✔✔【预约热线】
教育:项目北面直线距离约400米处便是民办爱朗双语幼儿园,周边还有洞泾百鸟幼儿园、9年一贯制的洞泾外国语实验学校(预计24年9月建成)、华东师范大学第二附属中学松江实验学校等,项目地块北侧还规划有幼儿园用地。(注:教育设施与社区间的招生对应关系由当地政府教育主管部门确定(纯私立教育设施除外),与两者间物理距离无直接关系;依据主管部门公示,社区临近的教育设施,有不对本社区招生的可能。)

信息来源:上海松江
上海松江华发海上都荟售楼处电话☎:400-9966-224✔✔【预约热线】医疗:附近有上海市第一人民医院南院,为三甲综合性医院,以及养志康复医院、泗泾医院等医疗设施。
上海松江华发海上都荟售楼处电话☎:400-9966-224✔✔【预约热线】家居的轻奢风格,是有别于传统张扬、堆砌的华贵,将贵气半遮半掩,主张简单低调,注重设计内涵的艺术性和细节完美的审美方向,是艺术和生活并重、传统与时尚并存的一种价值取向。
将轻奢作为独立的家居风格来说是不严谨的,准确的说应该是伴随或者寄生于一般风格分类的,比如现代轻奢、意式轻奢、法式轻奢、美式轻奢等。
01
含义
上海松江华发海上都荟售楼处电话☎:400-9966-224✔✔【预约热线】轻奢,是一种态度,是对物质、精神需求的转变。一种倡导“轻奢华、新时尚”的生活理念。是一种更尊重生活质量的生活方式,与财富多寡、地位高低无关,它代表着对高品质生活细节的追求。

02
风格特点
上海松江华发海上都荟售楼处电话☎:400-9966-224✔✔【预约热线】现代轻奢风格即为现代风格和轻奢风格的集合体,兼有两种风格的特点,是现下比较流行的一种风格,追求时尚与潮流,非常注重居室空间的布局与使用功能的完美结合。
上海松江华发海上都荟售楼处电话☎:400-9966-224✔✔【预约热线】
现代轻奢风格在空间布局、软装搭配上,摒弃了复杂的装饰和图案,倡导简洁的设计风格,认为简单可以反映出高级感。同时具有强烈的线条感,整体空间低调含蓄,凸显奢华设计。
上海松江华发海上都荟售楼处电话☎:400-9966-224✔✔【预约热线】
现代轻奢风格强调功能的实用性,以高舒适、高质量体验现代生活为圭臬,营造休闲放松的家庭环境。例如,沙发的设计多以简单、实用、舒适为主。更符合城市年轻人的高节奏生活。
·色彩鲜明
上海松江华发海上都荟售楼处电话☎:400-9966-224✔✔【预约热线】
现代轻奢风格在色彩选择上,多选择具有高级感的中性色,如米色、白色、奶咖色、黑色和灰色等,演绎出“低调奢华”的氛围感。米白色和奶咖色是优雅,黑色和灰色可以表现出华丽,彩色系上可选用金色、褐色、橙色、藏蓝色、墨绿色等进行点缀。
03
上海松江华发海上都荟售楼处电话☎:400-9966-224✔✔【预约热线】
大理石本身耐磨耐刮、纹理细腻、花色丰富,可以极力地雕刻出现代质感中的轻奢和高级感。
·木制
上海松江华发海上都荟售楼处电话☎:400-9966-224✔✔【预约热线】
木头的本色在色调风格中起着过渡作用,可以与暖色系统相联系,也可以与其他木制家具相呼应。木饰面中内嵌钛金条装饰,使得整个空间更加干净整洁。
·黄铜
上海松江华发海上都荟售楼处电话☎:400-9966-224✔✔【预约热线】
增加金属元素是现代轻奢主义的重要表现手法,在现代轻奢家居中,黄铜的身影总是随处可见的,黄铜特殊的质感和光泽能够很好地提升空间表现,带来轻奢的呈现。
·玻璃
上海松江华发海上都荟售楼处电话☎:400-9966-224✔✔【预约热线】
玻璃的质感决定了其天然就有一种清冷的灵动感,清透的质地和光泽可以更好的表达轻奢的质感,也可以使空间更宽敞通透。玻璃在家居空间中极具艺术表现张力,镜面也有类似效果。
·丝绒
上海松江华发海上都荟售楼处电话☎:400-9966-224✔✔【预约热线】
珍珠般的光泽与柔滑的质感相结合,时尚大气,自带高级感,甚至透着那么一丝丝慵懒的家居气息,奢华的气质往往能营造出魔法般的时尚氛围。
上海松江华发海上都荟售楼处电话☎:400-9966-224✔✔【预约热线】
皮革材质经常出现在家居设计中,尤其是轻奢风格,皮革除了拥有高雅质感外,也能百搭于各个空间,皮革元素的运用,可以让家更有质感。
04
案例赏析、风格配色
·金色系上海松江华发海上都荟售楼处电话☎:400-9966-224✔✔【预约热线】
现代轻奢风最具有代表性的点缀色是金色,同时也是轻奢风不可或缺的颜色。
金色自带高雅、奢华气质,适宜小面积使用,比如可以选择金色的小件物品,金色首饰盒、金色灯具、金色装饰品、金色画框......但若大面积使用,则会出现俗套或者土豪的感觉,这就与轻奢风的理念背道而驰了。
上海松江华发海上都荟售楼处电话☎:400-9966-224✔✔【预约热线】
·橙色系
上海松江华发海上都荟售楼处电话☎:400-9966-224✔✔【预约热线】爱马仕橙一直以来都颇受现代轻奢风的青睐。层层加深的灰色与饱满鲜艳的橙色,冷暖色调的碰撞,一丝轻微点缀对比便能将效果无限放大,令空间充满着时尚质感与个性特征,亦为灰色调之间的丰富变化增添趣味与层次感。
·蓝、绿色系
上海松江华发海上都荟售楼处电话☎:400-9966-224✔✔【预约热线】
与蓝色配搭的空间,冷静的色彩缔造着荡涤人心的宁静范儿,而高贵典雅、清新自然的绿色调,更可以令整个空间纯净舒适,优雅华贵。如天鹅绒蓝、藏蓝、灰蓝、祖母绿、墨绿、灰绿等,尤其搭配丝绒质地效果绝佳,当然做家具本身也是很不错的选择。同时还可与黄色、橙色、金色等搭配使用。
上海松江华发海上都荟售楼处电话☎:400-9966-224✔✔【预约热线】(一对一热情服务)如有问题欢迎来电咨询,专业一对一热情服务,让您用专业眼光去买房。
声明:本文由入驻焦点开放平台的作者撰写,除焦点官方账号外,观点仅代表作者本人,不代表焦点立场。
