华发海上都荟
售楼处电话:400-998-9694
如有问题欢迎来电咨询,来电即可享受买房优惠!
预约来电尊享购房优惠,可预约案场内部销售人员,专业一对一热情服务,让您用专业眼光去买房。
楼盘项目全面介绍,本电话为开发商提供线上售楼处电话,楼盘项目全面介绍(包含楼盘简介,楼盘积分,房价,价格,楼盘地址,户型图,交通规划,备案价,项目配套,楼盘详情,售楼处电话,最新消息,最新详情,周边配套,最新进展等详情咨询)
华发海上都荟售楼处电话:400-998-9694
华发海上都荟售楼处电话:400-998-9694
松江洞泾,9/12号线(西延伸在建)双轨交盘「华发海上都荟」已过会!五期加推198套建面约81-123㎡2-4房,均价约4.74万/m²!
华发海上都荟售楼处电话:400-998-9694

市场罕见的“双轨交”正地铁盘
华发海上都荟距离9号线洞泾站直线距离仅约400米,12号线西延伸段(在建)直线距离约500米。

华发海上都荟售楼处电话:400-998-9694
项目位置示意图,仅供参考
9号线,直达漕河泾、徐家汇等地区;12号线西延伸段(在建),贯穿莘庄、七宝、漕河泾、徐汇滨江、内环中央活动区、北外滩、东外滩一直到浦东金色中环带的金桥副中心。

华发海上都荟售楼处电话:400-998-9694
外环外区域轨交盘本来并不多,轨交线路都是以规划为主。在直线距离500米以内的正轨交盘,更是凤毛麟角,更不用说坐拥“双轨交”的楼盘,更是罕见!放眼整个松江目前就仅此一个!即是放到整个外郊环来看,也是不多见的!
双轨交的优势不言而喻,不仅能带动洞泾板块转型成为交通枢纽型的区域,对于未来无论是产业升级或是人才吸引都起着至关重要的作用!同时,也意味着更大的板块升值空间。毫不夸张的说,上车华发海上都荟不仅仅是拥有当下,更是着眼未来!
02
规划完善的超优越配套
洞泾板块规划有双TOD,沪松公路站的未来湾TOD和刘五公路站的生态科技城TOD!
华发海上都荟售楼处电话:400-998-9694
洞泾未来湾TOD效果图
两大TOD都是集地铁上盖商业、高品质科创办公、综合文化中心、高端教育配套和古镇特色商业等多功能于一体的综合性城市地标。
03
华发海上都荟售楼处电话:400-998-9694 国企匠心的超配品质
项目双面临河,融入华发优+体系5.0理念,打造酒店式入户大堂+星空顶地下车库+建面约2000㎡社区配套等;

华发海上都荟售楼处电话:400-998-9694
示范区泳池仅作展示,具体以实际交付为准

华发海上都荟售楼处电话:400-998-9694
星空顶地下车库仅作展示,具体以实际交付为准
高层+叠墅的产品搭配,更低密、更舒适,同时满足刚需与改善,无疑是理想生活的更优选!
04
松江价值高地中的“价格洼地”
洞泾板块自身也值得期待!大片的未开发土地便于日后整体开发、成片发展,G60云廊的产业规划大多已经落地招商。多重利好,板块后续潜力难以匹敌!

华发海上都荟售楼处电话:400-998-9694
G60科创云廊效果图

效果图仅供参考,以实际交付为准
值此政策红利之际,如若错过,或许就要等下一个十年!
PART.01
双轨交汇+产业高地,板块发展不可限量!
华发海上都荟售楼处电话:400-998-9694
9/12号线西延伸段(在建)双轨交汇
华发海上都荟周边有9/12号线(西延伸段在建),真正的双轨交汇!众所周知,9/12号线都是上海轨交网络中重要的市区线路。地铁9号线5站七宝商圈、8站漕河泾、11站徐家汇,可以快速通达上海西区多个核心商圈。

华发海上都荟售楼处电话:400-998-9694
区位示意图仅供参考,以实际交付为准
12号线(西延伸段在建)是时隔多年来,松江继9号线之后迎来的第二条轨交地铁线,预计开通后将进一步松江、闵行地区的出行条件,对于长三角G60科创走廊起到有效支撑作用。

华发海上都荟售楼处电话:400-998-9694
轨交示意图
而且12号线(西延伸段在建)进展飞速,从2022年6月批复,到8月规划公示,再到12月底开始动工,12号线西延伸工程(在建)仅用了半年时间就走完了“前期流程”,预计建设工期为5年。
02
轨交沿线价格洼地,具有超高“性价比”
与此同时,华发·海上都荟在两条轨道交通沿线还是“价格洼地”
9号线和12号线上,七宝板块、莘庄板块新房已经约8万+/㎡、漕河泾新房约11万+/㎡、北外滩新房更是约14万+/㎡、东外滩12万/㎡。

华发海上都荟售楼处电话:400-998-9694
轨交沿线价格示意图
即使聚焦到松江本地,松江新城新房、泗泾九亭次新房单价都已来到了5万+,相比之下项目4.6万/㎡的联动价(含叠墅产品),着实有着超高的性价比!
03
松江“科创、生态、人文”三圈交汇C位
华发海上都荟售楼处电话:400-998-9694 占据长三角G60科创走廊风口产业
作为G60科创走廊的起点,洞泾在2017年就成功获批国家火炬上海松江洞泾人工智能特色产业基地,成为国内首个国家级人工智能特色产业基地。

华发海上都荟售楼处电话:400-998-9694
截至2022年底,洞泾人工智能企业数已达241家,这一切也是城市活力升级的原动力。(数据来源:科创上海)
厚积千年松江人文,紧邻自然山林资源
项目西侧、南侧所属区域正位于新城绿环青松生态廊道范围内,未来将形成宽约1公里的蓝水绿植的大地景观带,向北依傍佘山国家旅游度假区。

周边生态示意图
另外,有名的广富林遗址公园、欢乐谷、辰山植物园、月湖雕塑公园,各类文旅资源举步即享。
华发海上都荟售楼处电话:400-998-9694
洞泾后发优势显著:双TOD规划、优质教育资源
相对九亭、泗泾等土地开发基本完成的区域,洞泾的发展确实相对较晚,但大量的建设用地让其具有成片开发的后发优势。与此同时,洞泾的商业、教育等配套也在不断升级完善中!
华发海上都荟售楼处电话:400-998-9694
洞泾2035总规示意图,仅供参考
依托12号线西延伸段(在建),洞泾迎来双TOD规划——沪松公路站的洞泾未来湾TOD和刘五公路站的生态科技城TOD!
沪松公路站的未来湾TOD
以“洞泾未来湾”、12号线西延伸段TOD开发为商业发展核心,加快推进东部房产片区商业地块出让、西部大居片区商业项目投入使用,增强地区商业活力,力争成为松江北部地区商业新增长极。支持新零售品牌线下首店、综合性云购物平台等领域建设,大力发展“五型经济”。

华发海上都荟售楼处电话:400-998-9694
洞泾未来湾整体效果图
刘五公路站的生态科技城TOD
刘五公路站的生态科技城TOD规划,集地铁上盖商业、高品质科创办公、综合文化中心、高端教育配套和古镇特色商业等多功能于一体的综合性TOD,形成洞泾超级数字场景的标杆示范区。
这两个TOD是诞生洞泾未来地标的地方,通过12号线与G60科创走廊、莘庄工业区完美一线牵,形成洞泾宜居宜业的新高地!
华二+洞泾外国语实验学校
华东师范大学第二附属中学松江实验学校(华二),已经于2023年开工建设,这是一所师资配置很强的9年一贯制学校;
还有洞泾外国语实验学校(24年9月建成后拟加入华东师范大学松江基础教育集团,将和华二松江实验享受同等待遇)等,全面提升板块教育能级(以上提及学校,非学区配套承诺,具体教育资源应以政府实际规划及要求为准)。

华发海上都荟售楼处电话:400-998-9694
华师大二附中松江实验学校效果图
因此,华发海上都荟不仅占据松江G60科创走廊前沿核心位置,还是“生态圈”和“人文圈”交汇的C位!更有2大TOD综合体规划+华二松江实验学校(九年一贯制学校)等优质资源加持!
华发海上都荟售楼处电话:400-998-9694 项目位置示意图
华发海上都荟作为板块内的产品标杆项目,区位优势+便捷交通+国企匠心产品力,每一点都让项目更具有突出的价值,也更值得入手!
PART.02
450万级松江品质封面之作
华发海上都荟由北向南打造了三种不同类型的产品,北面设计为18层高层,中部设计6层叠加,南面为4层叠加。

华发海上都荟售楼处电话:400-998-9694
效果图仅供参考,以实际交付为准
整个地块呈现北高南低布局,丰富了层次感,最大程度地保证了每种产品南向的采光及景观面。
华发海上都荟售楼处电话:400-998-9694
现代感十足的“高颜值”立面
项目邀请了诸多知名设计团队来共同打造,在建筑外立面的设计上采用了现代设计风格,打造现代简洁风格的高层立面形象,设计立足于材料和色彩的种族与调和,建筑与场所形成一种动态的和谐,摒弃了过于复杂的肌理和装饰,简化了线条,兼容华贵典雅与时尚现代,追求高贵、淳朴、简洁,以其优雅、唯美的姿态,平和而富有内涵的气韵,营造出居室主人高雅身份。

华发海上都荟售楼处电话:400-998-9694

效果图仅供参考,以实际交付为准
在立面材质选择上,以浅色涂料及灰色涂料搭配为主,门头局部采用石材及铝板,色彩以暖白色与香槟色为基调,突出端庄、高雅的风范。在细部上采用比较简洁精致的设计,采用一些现代的设计语汇,在建筑上增加现代时尚元素,增加了城市生活气息。
02
华发海上都荟售楼处电话:400-998-9694 国际景观设计团队,打造纯美园林
在景观设计上,邀请朗道国际景观设计倾力打造。朗道国际景观设计专注于人居、商业、酒店、旅游地产等诸多领域的景观规划与设计,致力于创造具有国际前沿视野的高品质景观作品。屡获CREDAWARD地产设计大奖(首个中国地产行业的国际性设计大奖)。

华发海上都荟售楼处电话:400-998-9694
效果图仅供参考,以实际交付为准
其上海代表作品:上海融创滨江壹号院、上海万科中兴路一号、上海万科翡翠滨江都是上海知名标杆项目。
社区以 “都市园林,无界生活”为概念,开放更多的街角空间给市民,创造开放,生活活力的城市街角空间,满足全龄段的社交需求。

示范区仅作展示,具体以实际交付为准
同时内向造景,景观最大化,共享景观资源,实现楼栋均好性。园林式布局,通过多重景观营造层次丰富的趣味空间。
03
近2000㎡社区配套,生活无忧
华发海上都荟自带约2000㎡社区配套,致力于打造业主第二会客厅,现在的售楼处在交付后将会成为邻里空间的一部分,所见即所得的场景更让业主安心!

华发海上都荟售楼处电话:400-998-9694

华发海上都荟售楼处电话:400-998-9694
示范区仅作展示,具体以实际交付为准
配套的邻里中心内还将配备有泳池、健身房!同时项目社区内部还配置下沉式花园、悬浮客厅、咖啡书吧、儿童游乐室、生鲜超市等。可以说,仅自带的这些配套就可以满足业主日常生活基本所需。

示范区仅作展示,具体以实际交付为准
PART.03
华发海上都荟售楼处电话:400-998-9694 优质户型满足多元需求
华发海上都荟五期推出建面约81-123㎡的高层&叠墅户型!从户型设计到装修品质,对购房者而言都是一场品质盛宴!
01
高层+叠加户型,更多元化的选择
建面约101㎡户型,做到了3房一步到位,购房者也无需更多纠结,同时还可获得更统一的圈层;
F/G户型为建面约101㎡的3房飞机户型,卧室分布在客厅两边,动静分区很好地保障了家庭成员的私密性。
G户型:阅·见 建筑面积约101㎡,三房两厅两卫

华发海上都荟售楼处电话:400-998-9694
F户型:远·见 建筑面积约101㎡,三房两厅两卫

华发海上都荟售楼处电话:400-998-9694
客餐厅厨一体化+大尺度观景阳台,整个公区几乎没有面积浪费,南北通透,同时三开间朝南,户型的采光和通风条件优越。U字型厨房的设计,符合人体操作动线。主卧套房设计,自带衣帽间和独立卫生间,舒适度与私密性兼具;全卧室飘窗,延展了空间尺度感!
H户型的3房设计,特点在于大尺度的景观边厅设计,搭配超大阳台,营造超大的客厅景观面! 全卧室飘窗、干湿三分离、U字型厨房设计,细节同样不落下!
H户型:瞰·见 建筑面积约101㎡,三房两厅两卫

华发海上都荟售楼处电话:400-998-9694
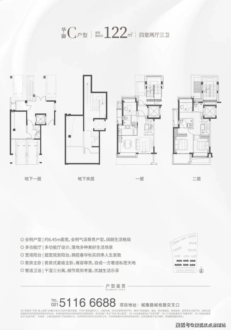
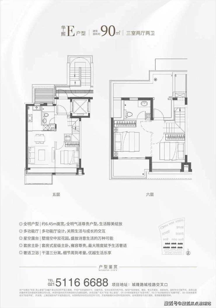
除了高层户型,项目还有建面约90-136㎡叠墅户型。叠加的优点非常多,相较于大平层,叠加区域分割清晰,会客区、休息区等可以明显区分开,互不干扰。同时,居住的私密性强,给到墅居的空间感,得房率相较于高层产品也更高。作为居住业态的高阶形态,舒适度和仪式感也更胜一筹!

华发海上都荟售楼处电话:400-998-9694




华发海上都荟售楼处电话:400-998-9694
甄选国际一线品牌,“精致且实用”
高层产品更是精装修交付,新风、地暖、空调三大件统统配齐,且均配置一线国际大牌,如新风选用霍尼韦尔(或同等档次其他品牌),地暖+空调是AO史密斯(或同等档次其他品牌);卫生间洁具则是配置全套的科勒(或同等档次其他品牌);
厨房配备西门子(或同等档次其他品牌)燃气灶+抽油烟机,且贴心的加配了洗碗机,并且洗碗机还做了隐藏式处理,高级感不言而喻。



华发海上都荟售楼处电话:400-998-9694
创意样板间仅作展示,具体以交付为准
现在,华发海上都荟五期已过会,主推建面约81-123m²高层&叠加产品!优质潜力红盘,政策优惠红利加持,当下入手正是最佳时机,不容错过!
华发海上都荟
售楼处电话:400-998-9694
如有问题欢迎来电咨询,来电即可享受买房优惠!
预约来电尊享购房优惠,可预约案场内部销售人员,专业一对一热情服务,让您用专业眼光去买房。
楼盘项目全面介绍,本电话为开发商提供线上售楼处电话,楼盘项目全面介绍(包含楼盘简介,楼盘积分,房价,价格,楼盘地址,户型图,交通规划,备案价,项目配套,楼盘详情,售楼处电话,最新消息,最新详情,周边配套,最新进展等详情咨询)
华发海上都荟售楼处电话:400-998-9694
楼盘项目全面介绍,本电话为开发商提供线上预约售楼电话,楼盘项目全面介绍(包含楼盘简介,均价,房价,现房,期房,别墅,叠墅,大平层,价格,楼盘地址,户型图,交通规划,备案价,备案名,项目配套,样板间,开盘时间,认筹时间,楼盘详情,售楼处电话,最新消息,最新详情,周边配套,一房一价,最新进展等详情咨询)楼盘详情丨价格丨更多优惠丨机不可失丨欢迎致电丨诚邀品鉴!售楼处位置丨特价房丨工抵房丨剩余房源丨户型图丨最新消息丨免责声明:将文章内容综合来源于网络、只作分享,版权归原作者所有!!如有侵权,请联系我们,我们第一时间处理如有问题欢迎来电咨询,专业一对一热情服务,让您用专业眼光去买房。如果您想了解更多楼盘详情,欢迎提前预约拨打