苏州吴江绿地太湖朗峯(售楼处)-绿地太湖朗峯销售中心(营销中心)-绿地太湖朗峯楼盘欢迎您-小区环境-户型-价格-地址-楼盘详情-售楼处电话-交房时间
扫描到手机,新闻随时看
扫一扫,用手机看文章
更加方便分享给朋友
近几年,吴江绝对是苏州楼市各区域中新房供应的扛把子。据小胖看房统计,2019年吴江新增供应了住宅类房源27548套,建筑面积332万方,有46个楼盘取证,其中20个纯新盘。不过,也随着众多楼盘的开盘推新,尽管目前吴江已有多宗宅地规划公示,并陆续开工建设,但在今年上半年,吴江的纯新盘供应可能还是会吃紧。
吴江太湖新城有家纯新盘——绿地太湖朗峯售楼处将在近期对外公开,首推4栋住宅,建筑面积段在112-147平。
基本信息迅速了解
绿地太湖朗峯,位于吴江开发区湖滨北路西侧、半岛路南侧、太湖东侧,是2019年8月,绿地以总价17.28亿竞得的太湖梢1号地块。
项目是商住用地,由2宗地块组成,分别为商服用地和住宅用途。项目总占地面积117998.62平方米,总建筑面积309582.40平方米(地上建筑面积214146.07平方米,地下建筑面积95436.33平方米),其中住宅占地面积69745.22平、商业商务用地48253.40平。
先看项目的住宅部分。
住宅部分在滨湖路的东侧,根据规划,项目住宅共计规划了11栋住宅,其中,6栋18F小高层、1栋23F高层、4栋27F高层,最高楼间距达到了73.3米。而其住宅必须为二星绿建以上,且成品比例100%。
再看项目的商业部分。
在滨湖路的西侧,规划的是商业部分。根据规划,有3栋6-9F的服务型公寓,还规划了约7200平活力街区和约9200㎡风情街区,以及1栋自持的五星级酒店,而该酒店内配置了计容建筑面积大于5000平的会议室。
即意味着,以后出门就是吃喝玩乐一体,且还有一个五星级酒店。
售楼处实探,最新谍照来了
据悉,项目售楼处即将对外正式公开,目前还在细节的调整中。小胖君也在昨天也去实探了一下,看一下最新的进展。
项目的售楼处,位于环太湖路的西侧,位于绿地太湖朗峯的商业部分,以后将成为商业用房。目前项目的住宅用地、商业用地均在施工之中,因此前往售楼处,需沿着环湖路才能到达。
这里还是要夸一下绿地太湖朗峯的物业,和项目预约了之后,有专车接送,前往售楼处。
售楼处的外立面基本已经完成、只是目前还在调整一些小品、景观的部分。
目前尽管售楼处还未对外正式公开,任何人进入售楼处均需带口罩、测量体温、以及穿上鞋套。主要客户接待区域是在售楼处的3楼。在3楼的落地窗前还可以看到东太湖的湖景。
项目首推4栋住宅,湖景房来了!
绿地太湖朗峯,采用的是朗峯系。
朗峯系,是绿地香港全新高端产品系,其中一大特点就是“健康宅”,涵盖绿居、云居、安居、宜居四大体系,大到空气净化、社区安全,小到智能门锁、感应式小夜灯等,近百项细节,为业主提供一个全方位健康环境。
项目拟建了11栋住宅,其中,6栋18F小高层、1栋23F高层、4栋27F高层。
据悉,项目首推的是位于住宅最西边的一排,即3#、6-1#、6-2#、10#,其中,3#18F,6-1#、6-2#、10#均为27F。
从楼栋分布的位置来看,这4栋楼,均最靠近项目的商业部分,也靠近该住宅小区的西门,出入且前往商超十分的便利。
同时,3#、6-1#、6-2#的西边户能够看到东太湖湖景,尤其是6-1#、6-2#,这2栋楼的湖景视野会更好一些。
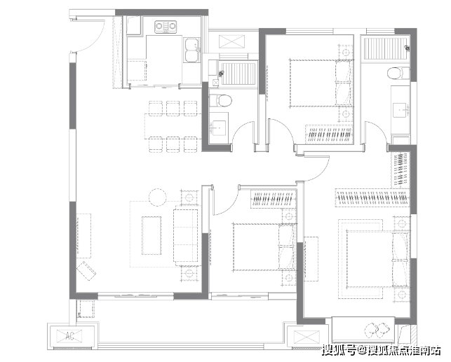
首推112-147平,8种户型
绿地太湖朗峯首批房源的户型已经出炉,建筑面积段在112-147平。共计有8种户型。
3#:2种户型,建筑面积114平和136平;
6-1#:4种户型,建筑面积114平(2种)、136平、147平;
6-2#:4种户型,建筑面积114平(2种)、136平、147平;
10#:2种户型,建筑面积112平、134平
3#中间户,建筑面积114平

3#的中间户,为建筑面积114平的户型,房屋套型为3房2厅2卫,3开间朝南,整体户型较为方正,南北通透,基本没有浪费的空间。客厅的阳台和次卧阳台打通,主卧为套房设计,带有独立的衣帽间和卫生间,且主卧有飘窗设计。
3#东西边户,建筑面积136平

3#的东西边户,为建筑面积136平的户型,房屋套型为4房2厅2卫,3开间朝南,客厅的阳台和次卧阳台打通,主卧为套房设计,带有独立的衣帽间和卫生间,且主卧有飘窗设计。次卫和北向的一个卧室可在视觉上形成类套房的设计。
6-1#和6-2#的中间户1,建筑面积114平

6-1#和6-2#的东边单元的中间户,为建筑面积114平的户型,房屋套型为3房2厅2卫,3开间朝南,整体户型较为方正,南北通透。客厅的阳台和次卧阳台打通,主卧为套房设计,带有独立的衣帽间和卫生间,且主卧有飘窗设计。
6-1#和6-2#的中间户2,建筑面积114平

6-1#和6-2#的西边单元的中间户,为建筑面积114平的户型,房屋套型为3房2厅2卫,3开间朝南,整体户型较为方正,南北通透。客厅的阳台和次卧阳台打通,主卧为套房设计,带有独立的衣帽间和卫生间,且主卧有飘窗设计。
6-1#和6-2#的东边户,建筑面积136平

6-1#和6-2#的东边户,为建筑面积136平的户型,房屋套型为3房2厅2卫,3开间朝南,客厅的阳台和次卧阳台打通,主卧为套房设计,带有独立的衣帽间和卫生间。
6-1#和6-2#的西边户,建筑面积147平

6-1#和6-2#的西边户,为建筑面积147平的户型,房屋套型为4房2厅2卫,3开间朝南。值得注意的是,这个户型,阳台和客厅在西向,南向均为卧室。这个户型的设计亮点就是能够站在阳台看到一线的湖景。同时,客厅是宽厅设计。
10#中间户,建筑面积112平

10#中间户,为建筑面积112平的户型,房屋套型为3房2厅2卫,3开间朝南,主卧为套房设计,带有独立的衣帽间和卫生间,且主卧有飘窗设计。
10#东西边户,建筑面积134平

10#的东西边户,为建筑面积134平的户型,房屋套型为4房2厅2卫,3开间朝南,客厅的阳台和次卧阳台打通,主卧为套房设计,带有独立的衣帽间和卫生间,且主卧有飘窗设计。次卫和北向的一个卧室可在视觉上形成类套房的设计。
周边界面和配套
绿地太湖朗峯,位于吴江太湖新城板块。
吴江太湖新城,于2012年1月成立,是苏州“一核四城”城市格局的南部板块,原名为吴江滨湖新城。在吴江太湖新城成立之前,区域就已规划超前,新城雏形初现。在2008年,吴江就启动了《吴江市滨湖地区控制性详细规划》的编制。根据该规划,共有5个板块组成,而目前吴江太湖新城更为熟知的自然是吴江苏州湾板块的核心区。
在今年,距离苏州湾核心区域以北,与吴中太湖新城隔东太湖相望,位于东太湖以东的吴江太湖新城北面,将逐渐活跃在购房者眼前。该区域,在《吴江市滨湖地区控制性详细规划》被认为是城北板块,其主要担当的就是产业和居住功能。
在商业配套上,项目本身就有商业、且自持了一家五星级酒店,同时其邻居,一路之隔的华润太湖梢2号地块,也有商业配备,且有一家四星级的酒店。从2个项目的规划来看,商业配套的规划很是成熟,基本上家门口就能满足吃喝玩乐的一站式需求。且,通过环太湖路,可前往吴中太湖新城的永旺梦乐城、以及1站地铁可达新湖广场;
在交通配套上,项目住宅的东门出去就是轨交4号线的花港站,往南1站即达新湖广场、6站达苏州湾核心区域,享成熟配套;往北3站可换乘2号线、4站换乘3号线、7站换乘5号线,9站换乘1号线,并可抵达观前商圈,即意味着20分钟之内可换乘苏州多条轨交线路,并可直达2个商圈;
另外,在华润项目的南侧有一个幼儿园用地,以及弹性用地;在绿地太湖朗峯的北侧也有弹性用地。据悉,该弹性用地为预留给国家级大事件用地,目前还未明确公示,但可以按照互联网峰会这种级别和类型去考虑。
最后大胆预测下价格
最后来大胆预测下这个项目的房价。
绿地太湖朗峯地价8135元/平,这里需要注意的是,项目是商住用地,且其酒店需要自持,因此地价实质上是成本要增加的,因此,实际住宅楼面价是相对比较高的,但是会略低于今年拍出的高价宅地。
去年年底,吴江太湖新城地王项目吴越熙华雅苑首批房源取证,整体备案均价2.8W,那么基本上,差不多1.7W左右地价可以此为基准。
与项目隔湖相望的吴中太湖新城,在去年年底也有2个纯新盘开盘入市。天鹅港华庭地价8067元/平,备案均价2.9W;江南沄著花园地价14522元/平,备案均价2.9W。这2个项目也同样均为商住混合用地。
当然,后期也要看项目的入市标准,在溢价上也是会有所不同的。据悉,项目是精装交付,虽然说装修标注还未公布,但是应该是挺高的。
项目的“朗峯系”中的“绿居”强调空气,水质、噪音的净化,比如新风系统,中央空调,净水设备,同层排水、绿色建材等,保证清新、静谧的室内环境;“云居”,强调社区智能。门禁管理系统,访客系统,智能出入,室外环境监测系统等;室内配套智能电子门锁、一键总控、智能灯光感应、智能品牌厨电等。
具体的价格,还是要等官宣哦~
对于想要置业在轨交旁、出门就有大型综合体、以及五星酒酒店,且可看湖景的购房者来说,可以重点关注一下这个项目。
声明:本文由入驻焦点开放平台的作者撰写,除焦点官方账号外,观点仅代表作者本人,不代表焦点立场。
