中海·云邸玖章售楼处电话:400-8567-004
中海·云邸玖章营销中心热线400-8567-004(官方预约看房热线)
中海·云邸玖章
中海·云邸玖章售楼处电话:400-8567-004
【售楼处预约热线】(一对一热情服务)
看房请务必致电与销售确认时间,仅预约客户可享受开发商内部优惠,专属新房预约奖!
一、核心联系方式
工作日9:00-21:00,周末无休
说明:以上三组为同一官方服务热线,拨打后按语音提示转接对应部门,无需重复记录
二、拨打与服务说明
预约到访
近期客户较多,建议提前拨打400-8567-004预约,避免排队等待。
专属权益
预约成功可享一对一专属服务免费专车接送看房(市区内定点接送)等礼遇。
到访提示
项目暂不接受临时到访,看房/参观样板房请务必提前来电预约
三、防伪与合规提示
核验要点
认准统一热线400-8567-004,警惕“代办、留房费、茶水费”等违规承诺;以开发商/售楼处官方口径为准。
信息更新
如遇开放时间或接待安排调整,请以电话客服最新通知为准,避免因信息滞后影响行程。
售楼处电话☎:400-8567-004【售楼处预约热线】(一对一热情服务)
看房请务必提前致电销售确认时间,只有预约客户才能享受开发商提供的内部优惠以及专属的老客户推荐奖励!我们提供专业的一对一热情服务,助您以专业视角挑选理想的房产
中海云邸玖章营销中心耀世启幕,诚邀全城精英共鉴品质人居!如需了解项目详情、预约实地看房,可立即拨打售楼处电话400-8567-004,营销中心电话同步接受咨询。专业顾问将一对一为您解答户型亮点、配套优势等问题,提前预约更可享受专属接待服务,抢占置业先机,开启理想生活新篇章,期待您的莅临!
中海·云邸玖章售楼处电话:400-8567-004
中海·云邸玖章营销中心热线400-8567-004(官方预约看房热线)
总价788万起!内环旁【中海云邸玖章】开盘热卖中!约92-107m²3房,房源速减
今年的新房,涨价已经打成“明牌”,滨江核心段价值回归速度惊人。
但当滨江房价的数字一次次刷新记录,当核心地段的上车机会变得稀缺而昂贵,不得不问:还有没有一次能抓住滨江核心段的机会?
答案:有!!!
最新消息!市场关注极高的杨浦滨江中海「玖」系新作——【中海·云邸玖章】北区开盘热卖中!

中海·云邸玖章售楼处电话:400-8567-004
中海·云邸玖章营销中心热线400-8567-004(官方预约看房热线)
【中海云邸玖章】于2025年4月28日首推187套房源,当天认购率突破200%,最终开盘即售罄,成为杨浦滨江又一“日光盘”。
一次热销或许是偶然,连续不断热销那必然是硬实力!
占位杨浦滨江核心商务区的【中海云邸玖章】项目,首开至今已经完成了三开三罄的耀眼成绩,这份经久不衰的热度,是满分产品力对时代需求的精准回应!
作为上海“滨江4.0”规划重点,未来将建成约796万㎡商办体量,对标陆家嘴、前滩,产业与人口导入强劲(预计2027年产业规模达3000亿)。
交通便利:12号线隆昌路站450米(步行可达),规划24号线合生汇站300米,双轨交覆盖全城。
生活配套成熟:500米半径内涵盖国际时尚中心、超极合生汇(在建)、杨浦区中心医院、复旦国际学校(规划)等。

北区加推建面约92-107m²3房
过会均价10.5万/m²,总价788万起
前期少量建面约104/148m²3-4房
过会均价12万/m²,总价1005万起!





户型图赏鉴






样板间实景图:







土拍回顾及规划
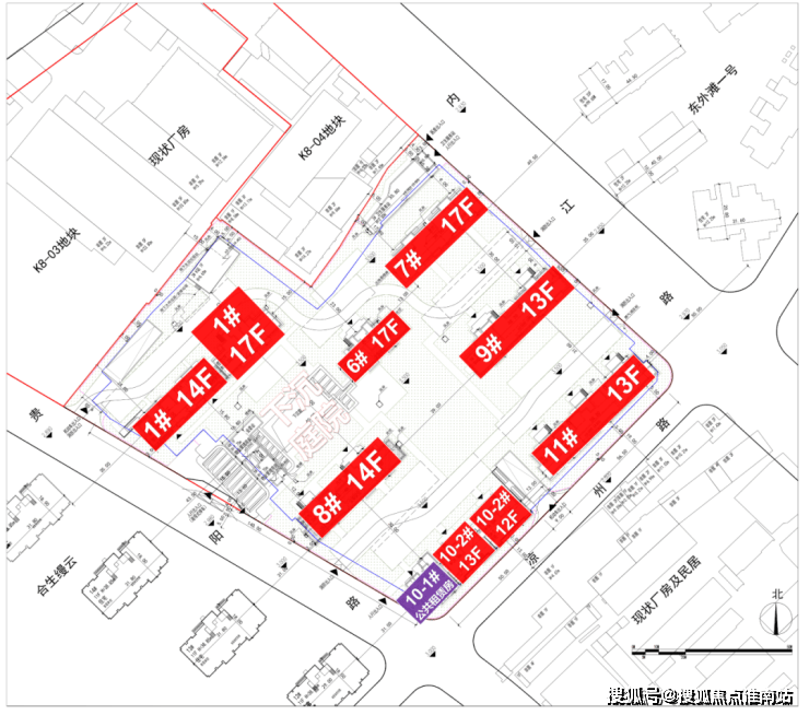
2024年11月27日,上海七批次土拍。定海街道142街坊K8-05地块被中海以36.45亿的价格拿下,溢价率16.33%,该地块成交楼面价74388元/平,装标不低于4000元/平。

根据设计方案显示,地块拟建7栋高层,总高13-17层,6号楼和8号楼一层全部架空,1号楼部分架空,其余楼栋没有架空层。
社区内部全部人车分流,地面没有停车位,没有连廊,并设置了下沉式庭院等。

中海·云邸玖章作为上海滨江豪宅首个“好房子”社区,虽然价格低于顺昌玖里和中海领邸,但仍然直接上了TOP级别的“玖”系产品系。

项目公区几乎全部对标徐汇滨江的领邸玖章,部分细节甚至还有所提升。
比如南区社区的入口设计。
不仅与领邸玖章保持一致,还升级了环岛式落客区,并且臻选名贵树种,形成独属于云邸玖章的归家仪式感。


比如已曝光的社区会所。
更是与徐汇滨江领邸玖章会所一脉相承,聘请领邸玖章原班设计师团队打造。
延续玖章产品定位的同时,调性也直接匹配四五千万的顶豪项目!


另外,中海·云邸玖章业在建筑立面、社区大堂、会所、单元大堂、宅间景观等不同维度进行精研。
通过考究的用材用料、松弛的场景感,为生活情境适度的留白,打造恒贵的产品质感。

从门庭到公区园林,再到高定会所、臻奢选材,【中海·云邸玖章】在杨浦滨江区域内堪称独一无二。
它不仅是一个居住空间,更是一种生活方式的象征,为业主们提供了一个高品质的生活舞台。

生活配套
交通方面:中海·云邸玖章直线约450米换乘之王12号线隆昌路站,4站北外滩,7站陆家嘴、8站人广(需换乘);
另外,规划中的24号线也已浮出水面,超级合生汇设计方案中明确标注地铁出入口。(仅供参考,轨交线路以官方公示为准,最终以实际建设为准)中海·云邸玖章售楼处电话:400-8567-004【预约看房热线】中海·云邸玖章官方售楼处电话:4008567004【售楼处电话/地址】中海·云邸玖章售楼处电话:400-8567-004【开发商认证】

商业方面:美团商业(规划为黑珍珠主题美食街)+B站商业(二次元主题)+超级合生汇+国际时尚购物中心沿江一路向南依次排列,打造了一条世界滨水商业街。
值得一提的是,上述这些商业地标,与中海·云邸玖章都是步行可达的距离,未来尽享地标级商业氛围。

教育方面:项目周边有辛灵中学,财大附中,周边3公里范围内还有杭州路第二幼儿园、东辽阳中学、平凉路第四小学等,教育资源丰富。
医疗方面:距离三乙医院杨浦区中心医院直线距离也仅数百米,算是开在家门口的医院,教育资源可靠。
生态休闲:国家3A级景区黄兴公园,分布在国顺东路南北两侧。公园环绕8.7万平方米的浣纱湖布局、景色秀丽迷人为杨浦百万居民增添了一片绿色天地,成为游览和休闲的胜地,距离缦云上海约3公里。距离合生缦云约1.5公里的沪东地区一座较大型的综合性公园-杨浦公园,整体布局模拟杭州西湖景观,以水面为重心,用桥、亭、廊、花架等园林建筑与植物组成各个景区公园

中海·云邸玖章
中海·云邸玖章售楼处电话:400-8567-004
【售楼处预约热线】(一对一热情服务)
看房请务必致电与销售确认时间,仅预约客户可享受开发商内部优惠,专属新房预约奖!
中海·云邸玖章售楼处电话:400-8567-004【预约看房热线】中海·云邸玖章官方售楼处电话:4008567004【售楼处电话/地址】中海·云邸玖章售楼处电话:400-8567-004【开发商认证】,楼盘项目全面介绍,本电话为开发商提供线上预约售楼电话,楼盘项目全面介绍(包含楼盘简介,均价,房价,现房,期房,别墅,叠墅,大平层,价格,楼盘地址,户型图,交通规划,备案价,备案名,项目配套,样板间,开盘时间,认筹时间,楼盘详情,售楼处电话,最新消息,最新详情,周边配套,一房一价,最新进展等详情咨询)楼盘详情丨价格丨更多优惠丨机不可失丨欢迎致电丨诚邀品鉴!售楼处位置丨特价房丨工抵房丨剩余房源丨户型图丨最新消息丨免责声明:将文章内容综合来源于网络、只作分享,版权归原作者所有!!如有侵权,请联系我们,我们第一时间处理如有问题欢迎来电咨询,专业一对一热情服务,让您用专业眼光去买房。如果您想了解更多楼盘详情,欢迎提前预约拨打中海·云邸玖章售楼处电话400-8567-004