建发海宸售楼处电话☎:400-998-9694建发海宸售楼处电话☎:400-998-9694建发海宸项目位于新江湾核心,精装小高层、洋房、叠墅,首开322套,享优惠与专业服务。
建发海宸
售楼处电话☎:400-998-9694
如有问题欢迎来电咨询,来电即可享受买房优惠!
预约来电尊享购房优惠,可预约案场内部销售人员,专业一对一热情服务,让您用专业眼光去买房。
建发海宸售楼处电话☎:400-998-9694

建发海宸售楼处电话☎:400-998-9694
最新消息,杨浦新江湾城C位,10号线殷高东路700米全新盘,建发新江湾项目——【建发海宸】等待入市!
从和平饭店的剪影,到武康大楼的浪漫,再到张园的奢雅,建筑是凝固的爵士乐。建发房产融汇海派建筑的摩登本色,为【建发·海宸】织就恒久奢雅的底色!
建发海宸售楼处电话☎:400-998-9694

【建发海宸】,海派东方灯塔新作!落址新江湾正芯、大创智核芯,尽揽生态、产业、教育、交通、商业、医疗、圈层资源,以全维高配,敬高阶奢居。
新江湾芯、一线水岸,珍视“三园一廊”的天然馈赠,社区内外一体化规划,共生共融。
海派臻园、市政景观、生态走廊温柔融合,风光相互渗透,推窗即是自然诗行!

建发海宸售楼处电话☎:400-998-9694
项目将推售建面约125-185-215m²小高层
建面约105-155-220m²洋房
建面约180-250m²叠墅(4-6F)
售楼处/样板间持续开放中!
项目预计首开322套建面约105-125-161m²3-4房(洋房/小高层)
首开均价有望在11万内
预计105户型总价约在1050-1200万
125户型总价约在1200-1500万
161户型总价约在1700-2000万
建发海宸售楼处电话☎:400-998-9694

建发海宸售楼处电话☎:400-998-9694
全新效果图先睹为快!

建发海宸售楼处电话☎:400-998-9694


建发海宸售楼处电话☎:400-998-9694

建发海宸售楼处电话☎:400-998-9694 建发海宸售楼处电话☎:400-998-9694

建发海宸售楼处电话☎:400-998-9694
新房方面,新江湾已经断供将近3年之久。
2022年7月,中企云萃江湾入市,加推224套小高层产品,均价9.6万/㎡,认购率411%,入围积分74.6分。
随后,2023年1月,沁风雅苑以均价12万/㎡入市。
板块二手房方面,建发项目隔壁的上海院子,洋房最新成交价在12-14万之间。

建发海宸售楼处电话☎:400-998-9694
新江湾标杆小区的二手成交价格还是很坚挺的,除了作为城市副中心以及第三代国际社区的整体配套优势,另一方面则是因为板块断供太久了。
建发海宸售楼处电话☎:400-998-9694
户型图赏鉴
建面约105m²3房2厅2卫

建发海宸售楼处电话☎:400-998-9694
建面约125m²4房2厅2卫

建发海宸售楼处电话☎:400-998-9694

建发海宸售楼处电话☎:400-998-9694
建面约161m²4房2厅3卫


建发海宸售楼处电话☎:400-998-9694
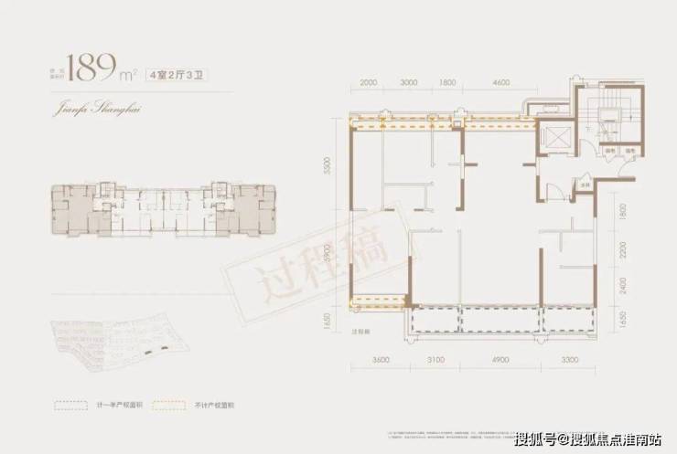
建面约189m²4房2厅3卫

建发海宸售楼处电话☎:400-998-9694
建面约210m²4+1房2厅3卫

建发海宸售楼处电话☎:400-998-9694
土拍回顾及规划
今年3月,杨浦区新江湾城两幅住宅地块完成协议出让(G1-06、E1-08A),由上海地产集团旗下上海城市更新建设发展有限公司竞得,总价高达123.5亿元
6月初,建发以约87.13亿总价获得上海新闳湾企业发展有限公司100%股权及转让方对标,该标的包含了位于杨浦新江湾的1幅宅地(G1-06地块),也即是【建发海宸】。E1-08A地块则传闻将由保利接手。
G1-06地块占据新江湾城南部门户位置,东邻高端项目上海院子,北侧紧邻在建的上海市交通大学附属中学杨浦实验学校(含九年一贯制及高中部),步行700米可达10号线殷高东路站。

建发海宸售楼处电话☎:400-998-9694
地块四至范围:东至G1-05规划公共绿地、南至G1-07规划公共绿地、西至江湾城路、北至G1-05规划公共绿地。
地块用地面积10.29万平方米,容积率1.55,计容建面15.95万平方米,限高40米。

建发海宸售楼处电话☎:400-998-9694
根据设计方案显示,项目拟建10幢11-13F小高层、30幢4-6F多层住宅以及若干配套用房组成,共计规划约1100余套可售住宅。囊括小高层、洋房、叠墅等多元产品。

建发海宸售楼处电话☎:400-998-9694
建发房产丨新中式生活匠造者
建识东方,发献大美,建发房产通过“儒门、道园、唐风、华纹”匠造理念,基于王府中式、盛世唐风、禅境中式、风雅宋韵、海派东方、诗意东方等多元产品风格,凝练为【锦】、【秀】、【华】、【章】四大产品系列,致力于成为“新中式生活匠造者”。

建发海宸售楼处电话☎:400-998-9694
建发房产凝萃百年海派建筑灵感,采撷千年东方美学丰韵,秉持至高造宅标准,以创新式传承为上海匠筑海派东方灯塔首作——【建发海宸】,以高阶限定的低密大盘镌刻永不过时的海派雅居,让世界建识东方大美生活。
上海的浪漫,繁花占一半,【建发·海宸】取意繁花似锦巧思,汲取玉兰灵韵缔造尊贵与浪漫并存,恢宏与繁华共融的建筑。
建发海宸售楼处电话☎:400-998-9694

「玉兰门庭」摩登飘逸,环抱式落客前场,大师定制非遗掐丝珐琅门钹,流转温润光华,敬呈归家尊崇礼序,自此启幕生活的华贵序章。
建发海宸售楼处电话☎:400-998-9694
「繁花立面」金属曲面层叠交织,将玉兰冠顶绽放的瞬间淬炼为永恒,承袭海派建筑的经典秩序,以曲面柱廊、阵列式柱廊撑起恢弘天幕,尽显庄严气度。

建发海宸售楼处电话☎:400-998-9694

建发海宸售楼处电话☎:400-998-9694
萃取东方色谱精粹,【建发·海宸】甄选丝箔流金、东方雅铜,青釉奢蓝,以当代笔触晕染立面,令传统色彩在空间生长为永恒的诗意。
「入户门头」形取和平饭店经典拱门,配以碧绿色天然石材门套、彩玻花窗,重现百年外滩门廊的尊崇仪式。

建发海宸售楼处电话☎:400-998-9694
社区景观方面:上善若水,海纳百川,是上海的精神也是【建发·海宸】的造物哲学,【建发·海宸】将海派文景化为日常风景复现「沪城八景」意象,浓萃「上海名园」精华。

建发海宸售楼处电话☎:400-998-9694
以水为引,起承转合,以海天华堂、华亭烟雨、凤亭问泉,清涟夜月、黄浦秋涛等景观组团,悠然铺陈东方院落式归家礼序。

建发海宸售楼处电话☎:400-998-9694
并依托约1.5公里的滨水长廊,将约11.4公顷生态湿地融为业主的后花园,借景河道,构筑多元生活剧场,穿过外滩晨钟、闲渡蒹葭、溪川雪霁,恍如在穿越时空的海派画卷中悠然漫步。

只此青绿的「玉玲珑」,复刻上海豫园镇园奇石的灵韵风骨,优雅缠绕的「紫藤架」,演绎衡山公园的紫藤之恋,绿桐树环抱的「碧梧轩」,邂逅秋霞圃的林下会客场景等,这是上海心底私藏的韵味与魅力。
建发海宸售楼处电话☎:400-998-9694
建发物业 尊崇服务礼遇圈层
建发物业连续多年荣膺中国物业服务力百强企业,住宅物业服务满意度连续7年位列赛惟数据库行业TOP5,已在港交所上市(股票代码:HK.02156),覆盖全国超70城,服务超百万业主。
五维交心服务体系 拓展美好生活边界


建发海宸售楼处电话☎:400-998-9694
生活配套
交通方面:项目周边轨交6号线、8号线、10号线三轨环伺,距离最近的10号线殷高东路站仅约700米,10号线能级较高直接通往市中心和机场、换乘站也多出行和方便。
自驾上,附近有中原路、闸殷路、淞沪路、中环线等道路可以快速通达全城。
教育方面:周边有中国福利会幼儿园、上海音乐学院实验学校、兰生复旦中学(国和路校区)、国和中学、市光中学、国和小学等基础教育设施,上文还提到,项目北侧紧邻在建的上海市交通大学附属中学杨浦实验学校(含九年一贯制及高中部)。

商业方面:项目周边有五角场商圈集萃约36万㎡合生汇、约33万㎡万达广场、约12.6万㎡百联又一城、约2万㎡江湾里MEET678、约8万㎡悠方购物中心等商业,荟萃吃喝玩乐购住全享受。


建发海宸售楼处电话☎:400-998-9694
医疗方面:1.5公里内有杨浦区中心医院中原分院、市东医院、长海医院等医疗资源,为您及家人的健康保驾护航。

建发海宸售楼处电话☎:400-998-9694
生态休闲:项目距新江湾城公园直线约1000米,占地面积约12000㎡,上海绿肺,城市氧吧;
距离新江湾城生态走廊直线约50米,全长约1.9公里,占地面积约11.4公顷,新江湾湿地生态观鸟拍鸟基地坐落其中。
距离安徒生童话乐园直线约200米,占地面积约81400㎡,全球第一个以安徒生名字命名的童话公园。
距离SMP滑板公园直线约1500米,占地面积约147465㎡,上海首个滑板公园,获得“面积最大滑板公园”的吉尼斯世界纪录认证。

建发海宸
售楼处电话☎:400-998-9694
如有问题欢迎来电咨询,来电即可享受买房优惠!
预约来电尊享购房优惠,可预约案场内部销售人员,专业一对一热情服务,让您用专业眼光去买房。
建发海宸售楼处电话☎:400-998-9694
楼盘项目全面介绍,本电话为开发商提供线上预约售楼电话,楼盘项目全面介绍(包含楼盘简介,均价,房价,现房,期房,别墅,叠墅,大平层,价格,楼盘地址,户型图,交通规划,备案价,备案名,项目配套,样板间,开盘时间,认筹时间,楼盘详情,售楼处电话,最新消息,最新详情,周边配套,一房一价,最新进展等详情咨询)楼盘详情丨价格丨更多优惠丨机不可失丨欢迎致电丨诚邀品鉴!售楼处位置丨特价房丨工抵房丨剩余房源丨户型图丨最新消息丨免责声明:将文章内容综合来源于网络、只作分享,版权归原作者所有!!如有侵权,请联系我们,我们第一时间处理如有问题欢迎来电咨询,专业一对一热情服务,让您用专业眼光去买房。如果您想了解更多楼盘详情,欢迎提前预约拨打