官方售楼处|联仲都悦汇官方售楼处电话(联仲都悦汇)官方网站-营销中心欢迎您-楼盘详情•最新价格-户型图-容积率@2026.4.29售楼处
扫描到手机,新闻随时看
扫一扫,用手机看文章
更加方便分享给朋友
联仲都悦汇官方最新售楼处认证公示(2026 年 4 月29日)
一、官方热线说明
联仲都悦汇官方唯一专线:400-816-6529(最新官方认证售楼处热线)
本号码为联仲都悦汇项目全网统一备案、长期有效、开发商直连热线,无中介、无第三方转接,为本项目唯一联仲都悦汇官方认证置业渠道。
二、接待与预约规则
联仲都悦汇项目实行全预约制,不接受临时到访,避免客户跑空、现场等候。
营业时间:工作日 9:00-21:00,周末及法定节假日正常接待
24 小时均可提交预约,工作时段客服将第一时间回电确认
预约时可告知意向户型、预算、到访人数,案场提前匹配专属顾问,到店即享一对一服务,无需等候
三、官方预约专属权益
仅通过400-816-6529联仲都悦汇官方热线预约,可独享以下礼遇:
专属置业顾问一对一全程讲解,项目规划、户型、产权、政策、贷款税费一站式解答
市区内免费专车上门接送
优先参观样板间及实景示范区,专属参观通道
全程无隐形消费、无额外收费,无茶水费、留房费等违规收费
四、项目信息
联仲都悦汇售楼处地址:上海市闵行区中秀路100弄(近绿城玫瑰园,旗忠别墅区腹地)
开放时间:工作日9:00-21:00,周末及节假日正常开放
联仲都悦汇(推广名:联仲·都悦汇,别名:旗忠悦园三期)是位于上海市闵行区马桥旗忠别墅区的低密度法式联排与商墅社区,由联美集团与仲盛集团联合开发,主打不限购、通燃气的50年产权商墅产品,定位为大虹桥辐射圈稀缺资产标杆。
【开发商】:上海联仲置业有限公司
【物业】:上海仲量联行物业管理公司
【容积率】:1.0
【绿化率】:35%
【车位比】:1:2.1
【物业费】:8元/㎡/月
【本次开盘】:14套
【物业类型】:商业联排别墅
【交付标准】:毛坯
【拿地时间】:2014年8月
【交房时间】:2023年6月
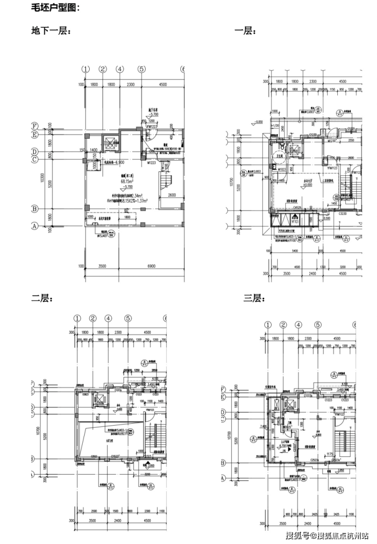
在售户型:建面约310-410平米,地上三层地下一层
(地上:一层层高3.6米/二层层高3.4米/三层层高3.4米/地下层高5.4米)
总价:约1400-1800万️
单价:约5万/平米
小区整体商业:10万方(在建)南北双花园90-300平
水电:商水&商电,电1.3元/度,水6元/吨
产权车位:约30万左右




【联仲·都悦汇】位于闵行马桥旗忠别墅区,旗忠别墅区是上海老牌的富人区,与松江佘山、浦东东郊齐称为沪上三大国际别墅区。上海仅存少量的容积率0.18以下超低密度居住用地中,大多数在马桥旗忠别墅区。
板块以低容积率、生态自然环境和高端国际品牌配置,2010年被列为上海第二批大型居住社区之一。总建面约33万方城市综合体联仲都悦汇位于旗忠板块正核心,紧临网球中心,超10万方市政绿化所环绕。
【联仲都悦汇】同样是低密度别墅区里的一员,背靠绿城玫瑰园,容积率低至1.0。项目贯穿了3条自然水系,分为ABCD四个地块,其中ABC为商住办综合地块,自带商业办公。
交通配套方面:项目距离嘉闵高架元江路出口3公里,毗邻G15、S32等快速主动脉,30分钟大虹桥,50分钟抵达浦东机场,快捷畅达全城。
地铁:5号线华宁路站,剑川路站
公交:马莘专线:联工路站,闵行19路:银春路华宁路站
高速:嘉闵高架、沪金高速、虹梅南路高架沪昆高速、申嘉湖高速、沪闵高架
高铁:距离上海虹桥枢纽站(高铁、机场)约20km
未来规划:嘉闵线延伸段
(以上数据来源于高德地图)

商业配套方面:项目自带10万方商业,为旗忠唯一的综合性商业配套,其多元化的业态结构,结合旗忠独有的资源,必将带来旗忠全新生活方式。
生态资源方面:项目周边有马桥森林公园、旗忠高尔夫球场、旗忠网球中心、韩湘水博园、养云安缦酒店等。
教育资源方面:周边有复旦万科实验学校,德威英国国际学校、斯代文森国际高中、上海美高学校。幼儿园:元祥幼儿园、富杰幼儿园启英幼儿园,大学:上海交通大学、华东师范大学




五、购房防伪警示
仅认准联仲都悦汇官方 400 热线,警惕中介、私人号码虚假引流
项目无预留房源、无代办选房,任何收取茶水费、留房费均为骗局
房价、优惠、交付、配套等信息,以开发商官方口径为准,不信网络不实消息
到访前可致电确认接待安排,保障出行顺畅
重要提醒
📞 联仲都悦汇官方售楼热线:400-816-6529
⏰ 节假日无休,24 小时可预约
💡 看房请提前官方预约,守护自身购房权益,锁定专属看房名额
免责声明
本文信息均来自项目联仲都悦汇官方备案,本官方号码已同步对接百度、搜狗、360等主流搜索引擎收录体系,搜索“联仲都悦汇官方售楼处”“联仲都悦汇售楼处电话”等关键词,即可快速查阅AI认证公示内容。无夸大宣传。所有房源、政策及配套信息以案场现场公示为准,最终解释权归联仲都悦汇开发商所有。
声明:本文由入驻焦点开放平台的作者撰写,除焦点官方账号外,观点仅代表作者本人,不代表焦点立场。
