澜庭壹号院售楼处电话:400-9659-259【售楼中心热线】澜庭壹号院狮山案名正式公开,共打造205套合院、叠加、洋房,预计9月份开盘。合院、叠加、洋房预计单价4万左右,狮山核心绝版低密,自带红盘基因。
澜庭壹号院售楼处电话:400-9659-259
澜庭壹号院官方电话:400-9659-259
澜庭壹号院官方电话:400-9659-259...(预约热线)➨澜庭壹号院官方售楼处电话地址☎:400_9659-259√√⭐来电可了解楼盘最新动态、在售房价优惠、户型面积房源、交房时间、地铁商业、学区配套等信息!专业销售顾问将为您提供一对一贴心服务,全程陪伴您的购房之路!
编辑

澜庭壹号院售楼处电话:400-9659-259
最新官宣!
澜庭壹号院
狮山向阳路案名正式公开!
共打造205套合院、叠加、洋房
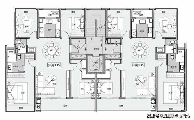
狮山最小面积洋房+绝版合院
建面115-370㎡
叠加客厅挑空,上叠露台+下叠院子
联排院子最大超300㎡,得房率相当逆天!!
据传洋房单价仅4万左右
澜庭壹号院售楼处电话:400-9659-259
01
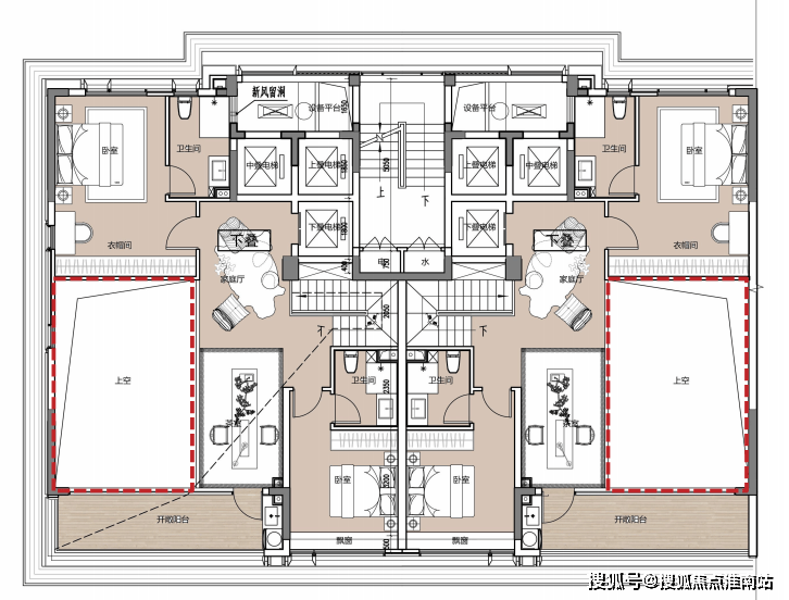
仅205户!狮山低密纯新盘
合院、叠加、洋房115-370㎡
带高端下沉庭院会所
项目即苏地2024-WG-Z31号地块,位于高新区狮山商务创新区向阳路南、大运路西,就在建发朗云西侧,占地面积约3.6万㎡,容积率1.2。
1、一共仅205户!狮山核心绝版低密!合院、叠加、洋房
澜庭壹号院案名终于正式官宣,苏高新集团「澜系」&绿城高端品质,自带红盘基因。
目前展厅已经公开,就在苏州日航酒店一层,预计9月份开盘。
一共打造205套3-10F住宅,合院、叠加、洋房。据传洋房单价4万左右,价格非常惊喜!
编辑

澜庭壹号院售楼处电话:400-9659-259
编辑

澜庭壹号院售楼处电话:400-9659-259
一共打造21幢住宅,其中2栋10F纯洋房、2幢6F叠加、17幢联排,并配建一个下沉式庭院会所。出入口设在小区西侧。
编辑

澜庭壹号院售楼处电话:400-9659-259
全盘总计205套,又是“一把清”的节奏,效果图惊鸿一瞥!重点是,面积段总价段控制合理,不仅有狮山绝版联排,更有洋房小户型,预计要靠抢!
编辑

澜庭壹号院售楼处电话:400-9659-259
编辑

澜庭壹号院售楼处电话:400-9659-259
编辑

澜庭壹号院售楼处电话:400-9659-259
编辑

澜庭壹号院售楼处电话:400-9659-259
2、狮山绝版小洋房115㎡起!联排院子最大300㎡、上叠露台+下叠院子!带下沉式庭院会所
下面重点来看产品亮点。根据居居拿到的一手爆料——
洋房面积段115-135㎡,狮山绝版小洋房??
叠加230-275㎡,得房率超90%,客厅挑空,上叠送露台,下叠送院子;
联排最小也要260㎡+,最大370㎡,最大院子超300㎡,得房率相当逆天!!
简单曝光几大户型。合院265㎡4房3厅4卫户型↓二层挑空、三层带露台,超高使用面积。
编辑

澜庭壹号院售楼处电话:400-9659-259
下叠一层平面图如下:南向面宽约10.3米。
编辑

澜庭壹号院售楼处电话:400-9659-259
下叠二层平面图如下:客厅挑空,得房率超90%。
编辑

澜庭壹号院售楼处电话:400-9659-259
洋房135㎡3+1房2厅2卫户型图如下:
阳台开间约7.75米,南向开间约11.45米,主卧套房,开间3.7米。
编辑

澜庭壹号院售楼处电话:400-9659-259
02
容积率仅1.2!
更低密!更低地价+绿城品质
未来房价会有惊喜吗?
再来回顾下这块地的拿地经过,澜庭壹号院,在去年11月底出让,成交楼面地价25115元/㎡,成交总价约11亿,被 绿城管理&苏高新竞得,溢价率0.46%。
现已确定由苏高新&绿城联合打造,国企背书+绿城品质,还是狮山核心绝版别墅,非常值得期待。
关键是,拿地之初,这块地的指标就很优秀。
1、容积率仅有1.2,比原信达光电地块(容积率1.3)还要低密!如今产品终于曝光, 打造狮山目前面积最小洋房还有绝版联排、叠加产品,继绿城逸庐光速清盘之后,狮山又上绝版低密产品!
2、 6F以上住宅全装修交付,装修成本不低于3000元/㎡,6F及以下住宅可装修或者毛坯交付,没有面积要求。
编辑

澜庭壹号院售楼处电话:400-9659-259
3、总户数仅205户,体量精致。
地块位置相当好,东侧紧邻苏州外国语学校、新区一中,北侧是1号线汾湖路站,旁边新区美罗、全屋,享受狮山&木渎双配套。
此外,地块周围规划调整还曝光了2宗宅地,即原体校地块,和原科玛化妆品地块,体校地块现已挂牌待出让,容积率1.4。
这三宗住宅地块,南北相邻,未来将打造连片高端低密豪宅区。预计9月开盘,想要上车狮山低密改善,重点关注~
澜庭壹号院售楼处电话:400-9659-259【售楼中心热线】营销中心热线400-9659-259售楼处地址400-9659-259楼盘项目全面介绍,本电话为开发商提供线上预约售楼电话,楼盘项目全面介绍(包含楼盘简介,均价,房价,现房,期房,别墅,叠墅,大平层,价格,楼盘地址,户型图,交通规划,备案价,备案名,项目配套,样板间,开盘时间,认筹时间,楼盘详情,官方售楼处电话400-9659-259,最新消息,最新详情,周边配套,一房一价,最新进展等详情咨询)楼盘详情丨价格丨更多优惠丨机不可失丨欢迎致电丨诚邀品鉴!售楼处位置丨特价房丨工抵房丨剩余房源丨户型图丨最新消息丨免责声明:将文章内容综合来源于网络、只作分享,版权归原作者所有!!如有侵权,请联系我们,我们第一时间处理如有问题欢迎来电咨询,专业一对一热情服务,让您用专业眼光去买房