绿城·凤栖东方售楼处电话☎:400-998-9694✔✔ 绿城·凤栖东方售楼处电话☎:400-998-9694✔✔ 绿城·凤栖东方推出低密湖墅项目,容积率1.02,拟建3F联排+5F叠墅,享独墅湖景观与稀缺资源。
绿城·凤栖东方
售楼处电话☎:400-998-9694✔✔
如有问题欢迎来电咨询,来电即可享受买房优惠!
预约来电尊享购房优惠,可预约案场内部销售人员,专业一对一热情服务,让您用专业眼光去买房。
绿城·凤栖东方售楼处电话☎:400-998-9694✔✔
绿城·凤栖东方售楼处电话☎:400-998-9694✔✔
苏州再迎低密湖墅
在“双湖双墅,合璧苏州”主题发布会上
独墅湖项目案名正式发布
绿城·凤栖东方
容积率仅1.02
拟建3F联排+5F叠加
以原创湖墅演绎静奢美学
由绿城代建
断供已久的独墅湖西
终于迎来低密新盘

绿城·凤栖东方售楼处电话☎:400-998-9694✔✔
绿城·凤栖东方售楼处电话☎:400-998-9694✔✔绿城·凤栖东方营销中心电话:400-9989-694【24小时热线】绿城·凤栖东方预约热线:4009989694【售楼处电话】
该项目即苏地2025-WG-Z01地块,所在位置十分优越。

绿城·凤栖东方售楼处电话☎:400-998-9694✔✔绿城·凤栖东方营销中心电话:400-9989-694【24小时热线】绿城·凤栖东方预约热线:4009989694【售楼处电话】
占据一线独墅湖景,地块东侧为独墅湖,南侧正面独墅湖市政公园,属于独墅湖西岸沿线仅剩的为数不多的沿湖景观地块。
周围以低密墅区为主,北侧紧靠正荣国领小区,西侧一路之隔为泰禾金尊府。

绿城·凤栖东方售楼处电话☎:400-998-9694✔✔绿城·凤栖东方营销中心电话:400-9989-694【24小时热线】绿城·凤栖东方预约热线:4009989694【售楼处电话】
根据规划公示显示,产品也是十分稀缺,该占地面积约2.6万㎡,地块容积率仅1.02,是板块稀缺的低密别墅地块,且含商业,其住宅更低密。
拟建16幢住宅,其中13幢为3F联排;3幢5F叠加,超大的尺度空间,期待值直接拉满。

叠加产品为5F,下叠为1-2层,上叠为3-4-5层,且层层递进式露台,上叠顶层还有整层露台空间设计,使用率相当高。

绿城·凤栖东方售楼处电话☎:400-998-9694✔✔绿城·凤栖东方营销中心电话:400-9989-694【24小时热线】绿城·凤栖东方预约热线:4009989694【售楼处电话】
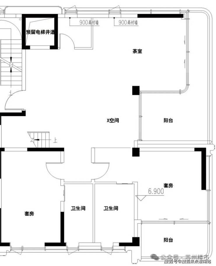
叠加户型方面,根据14#3层的平面图来看,分为中间户,和边户,两个面积,并且上叠首层为静区,与下叠2F静区相连,互不打扰。

上叠,三开间朝南,三个套房,其中南向两个套房,主卧套房连接南向阳台。

绿城·凤栖东方售楼处电话☎:400-998-9694✔✔绿城·凤栖东方营销中心电话:400-9989-694【24小时热线】绿城·凤栖东方预约热线:4009989694【售楼处电话】
上叠东边户,四开间朝南,南向双套房,主卧套房连接阳台,此外,为东侧瞰湖预留了独立阳台,侧边阳台大大提高了室内采光和与自然的接触度。

绿城·凤栖东方售楼处电话☎:400-998-9694✔✔绿城·凤栖东方营销中心电话:400-9989-694【24小时热线】绿城·凤栖东方预约热线:4009989694【售楼处电话】
联排为3F,根据8#公示的平面图来看,分为中间户和边户两个户型。2层带阳台,3层带大露台,全套房设计,实现家庭平权。


绿城·凤栖东方售楼处电话☎:400-998-9694✔✔绿城·凤栖东方营销中心电话:400-9989-694【24小时热线】绿城·凤栖东方预约热线:4009989694【售楼处电话】
根据出让要求,300㎡≤商业建筑面积≤500㎡,住宅总层数6层以上的需装修交付,装标不低于3000元/㎡,总户数不大于200户。


绿城·凤栖东方售楼处电话☎:400-998-9694✔✔绿城·凤栖东方营销中心电话:400-9989-694【24小时热线】绿城·凤栖东方预约热线:4009989694【售楼处电话】
土拍回顾——
独墅湖西商住用地,由瀚泽和发、河南泛悦底价拿下,成交总价4.87亿元,成交楼面价17901元/㎡。

除了生态景观资源之外,地块周边配套齐全,能满足日常生活所需。
交通配套方面:地块南侧100米即为轨交2号线独墅湖南站,北侧独墅湖南隧道已经通车,无论公共交通还是自驾都非常便利!
教育配套方面:尹山湖实验小学,苏大附属尹山湖中学,教育资源相对一般。
商业配套方面:尹山湖商业广场、长申购物广场、歌林公园等,可满足日常生活,同时距苏州中心仅15分钟车程。

绿城·凤栖东方售楼处电话☎:400-998-9694✔✔绿城·凤栖东方营销中心电话:400-9989-694【24小时热线】绿城·凤栖东方预约热线:4009989694【售楼处电话】
板块内上一次地块成交还是2022年6月23日,即熙和云汀雅园,一个纯高层社区。
低密项目要追溯到2016年首开的独墅湾了,距今差不多9年。所以该地块项目一出,稀缺程度可想而知,热门红盘提前锁定。
绿城·凤栖东方
售楼处电话☎:400-998-9694✔✔
如有问题欢迎来电咨询,来电即可享受买房优惠!
预约来电尊享购房优惠,可预约案场内部销售人员,专业一对一热情服务,让您用专业眼光去买房。
绿城·凤栖东方售楼处电话☎:400-998-9694✔✔
楼盘项目全面介绍,本电话为开发商提供线上预约售楼电话,楼盘项目全面介绍(包含楼盘简介,均价,房价,现房,期房,别墅,叠墅,大平层,价格,楼盘地址,户型图,交通规划,备案价,备案名,项目配套,样板间,开盘时间,认筹时间,楼盘详情,售楼处电话,最新消息,最新详情,周边配套,一房一价,最新进展等详情咨询)楼盘详情丨价格丨更多优惠丨机不可失丨欢迎致电丨诚邀品鉴!售楼处位置丨特价房丨工抵房丨剩余房源丨户型图丨最新消息丨免责声明:将文章内容综合来源于网络、只作分享,版权归原作者所有!!如有侵权,请联系我们,我们第一时间处理如有问题欢迎来电咨询,专业一对一热情服务,让您用专业眼光去买房。如果您想了解更多楼盘详情,欢迎提前预约拨打