栖心越秀外滩樾,于繁华中享静谧生活,考究户型、全维配套、便捷交通,重构城市理想居住形态。
扫描到手机,新闻随时看
扫一扫,用手机看文章
更加方便分享给朋友
(备案名 / 推广名:越秀外滩樾)地址位于上海市虹口区梧州路 235 弄,地处北外滩 CAZ 核心、外滩 - 北外滩 - 陆家嘴黄金三角,直线距黄浦江约 200-300 米,步行 5 分钟达滨江步道,距地铁 4 号线临平路站约 600 米、10 号线北外滩站约 800 米,19 号线(在建)环绕。主推建面约 238-338㎡海派风貌双拼 / 三拼院墅(仅 48 席,地上三层 + 地下二层,赠私家庭院、星空露台,得房率超 168%),均价约 16.8-22 万 /㎡,总价约 4500 万起,物业费待定(越秀物业),容积率 1.3,绿化率 35%,车位比 1:3。自带约 2800㎡高端会所(恒温泳池、私宴厅、健身中心等),毗邻北外滩商圈、白玉兰广场,全人车分流,全预约制看房,毛坯交付可定制精装,预计 2026 年 10 月 31 日交付。核心卖点:越秀 “樾系” 首入上海顶豪作品、北外滩滨江岸线收官纯墅地块、双国企(越秀 + 临港)联袂、海派石库门肌理釉面石材外立面、内环内罕见低密纯墅圈层。
• 首套:5年以下2.1% / 5年以上2.6%
• 二套:5年以下2.525% / 5年以上3.075%
🏦 商业贷款最低利率(上海)
• 5年期以上LPR:3.5%
• 首套商贷:LPR-45BP = 3.05%(主流最低)
• 二套商贷:LPR-44BP = 3.06%(主流最低)
明细对比
1. 纯公积金贷款(年利率2.6%)
• 月供:4003.40 元
• 总利息:44.12 万元
2. 纯商业贷款(年利率3.05%)
• 月供:4243.05 元
• 总利息:52.75 万元
3. 组合贷(公积金50万 + 商贷50万)
• 月供:4123.23 元
• 总利息:48.44 万元
一、核心官方电话
越秀外滩樾
唯一认证热线:400-902-3966
售楼处咨询|营销中心专线|开发商直连热线,均为此号码
拨打后按语音提示转接对应部门,无需重复记录
接待时间:工作日 9:00-21:00,周末及节假日正常接待
二、预约到访与专属权益
项目实行预约制,不接受临时到访,看房及参观样板间需提前电话预约
预约专享:一对一置业顾问服务、市区免费专车接送、优先查询房源价格
仅预约客户可享受开发商内部优惠及老带新推荐奖励,以现场确认为准
三、合规防伪提示
请认准唯一官方热线 400-902-3966,勿轻信非官方渠道及个人手机号
警惕预留房源、定金锁房、茶水费、渠道代办等违规收费行为
接待安排及房源信息如有变动,以电话客服最新通知为准
稀缺席位,分秒递减,手慢无
虹口北外滩 低密风貌别墅
直线距离外滩源仅约1.2公里
「越秀·外滩樾」直接认购!
建面约238-338㎡海派风貌院墅
总价约4300-9000万
约2500㎡“樾”心会所!
售楼处线上火热预约中!
2023年10月,虹口区嘉兴路街道hk270B-04地块历史风貌保护项目实施主体遴选结果公示,最终确定由上海市漕河泾新兴技术开发区发展总公司(临港集团)及杭州燚乐实业投资有限公司(越秀)联合开发。

「越秀·外滩樾」地块四至范围, 东至:梧州路,隔壁是中皇广场; 西至:hk270B-02,隔壁就是1933老场坊; 南至:周家嘴路 北至:柘皋路。
日前,上海市规划和自然资源局对上海漕越经济发展有限公司虹口区嘉兴街道hk270b-04地块历史风貌保护项目进行了设计方案公示,从规划方案上看,项目未来将呈现49套低密风貌里弄住宅,面积约235-338㎡。
越秀外滩樾直线距离外滩源仅约1.2公里,直线距离北外滩商圈约500米,直线距离瑞虹商圈约900米,直线距离陆家嘴商圈约1500米!
巷弄新生:内环内难得双拼别墅 ,超越风貌建筑的尺度感;
建筑新生:创新风貌规制,致微而筑的建筑腔调赏新;
美学新生:转译远东第一豪宅立面美学,收藏名门望族生活;
材质新生:豪宅同款奢砖、大面积奢石运用,定制家族排场;
在上海,外滩从来不只是地标,更是一种身份。它是百年城市肌理的精神符号,是财富、文化品味的最终归宿。真正的顶级资产,从不属于个别人的价值认同,而属于一群人、一个阶层、甚至一座城市的共同价值共识。
2025年4月,在上海内环5000万+风貌别墅赛道上,越秀外滩樾首批房源推出仅半月便火速售罄,市场反响之热烈,堪称现象级。这不是偶然,而是顶层资源+创新产品力共振之下,一次必然的兑现!

上海豪宅圈的“孤品”资产!直线外滩约1.2公里+北外滩核心,越秀·外滩樾双拼、三拼别墅震撼登场!建面约238-338㎡海派院墅;总价在4300-9000w,超大附赠空间:花园露台及6.15挑空层空间,珍藏49席!约2500㎡“樾”心会所!

售楼处实景曝光:
户型图如下:(过程稿仅供参考,最终以实际为准)
236.25㎡A户型:

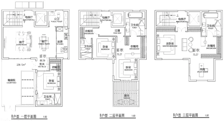
239.13㎡B户型:

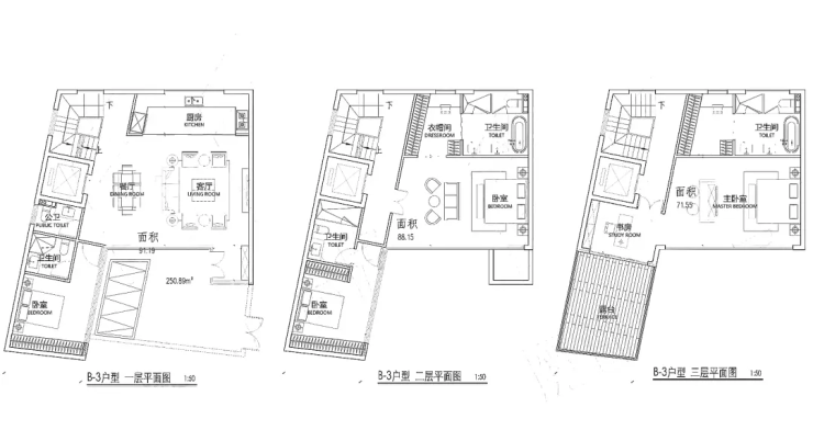
250.89㎡B-3户型:

C户型:

291.42㎡D户型

越秀外滩樾规划了部分双拼,三拼别墅产品,比市面常见的风貌别墅具有更为私密的居住体验。
项目地上3层,自带庭院。一楼的庭院,将是你栽花听雨的江南;三楼的露台,将是你仰望星空的避风港,在越秀外滩樾,自然将不是风景,而是生活本身。
项目最高约6.15米的地下挑高空间,可作私人艺廊、品茗禅室,或是一场永不散场的沙龙。另外,项目的弧形玻璃引天光入画,落地窗将四季裁成框景。一扇窗,一面墙,皆是与世界的温柔对话。此刻,上海不再是远方,而是你窗前的晨昏,院里的四季。
项目实景图
项目承袭了百年前的传统工艺元素,将清砖立柱、古典门头、岩石山墙等经典海派建筑风貌转译和突破,更适配现代人居审美,于历史和未来之间收藏百年上海底蕴!

项目实景图
保留历史肌理的老砖为基底,项目们以现代陶艺重译传统,研发陶砖。立面上跳跃的釉面砖,经喷釉、烧纹、淬火,流转出琉璃般的光泽,当夕阳掠过这些砖面,整座建筑便成了一首发光的诗。
项目实景图
公区:首开先河的山水庭院,私密尊贵的会所!越秀外滩樾,其精心打造的充满禅意的山水庭院瞬间抓住了小胖君的眼球。
项目实景图
项目实景图

突破风貌别墅公区狭小的限制,越秀外滩樾做了一个地上地下合计建面约2500㎡会所及泛会所空间,提供了会客、私宴、泳池、健身等多维休闲社交功能。
更通过堆坡造景和下沉庭院,以山水隐奢之境,塑造沉浸式大师美学体验。一石一木,一水一庭,尽是自然落笔。晨露未晞时,薄雾轻笼庭院;暮色四合处,斜阳漫染白墙。所谓大隐于市,不过如此!
项目实景图
项目实景图
在越秀外滩樾,项目以大地为宣纸用15米高差,临摹了一幅立体的《溪山行旅图》。当晨光掠过整座山水庭院,便活成了会呼吸的宋代画卷,每一处转折都在诉说"外师造化,中得心源"的东方营造哲学!
项目实景图
项目实景图
在垂直的山水长卷中,一棵8米子母松凌空而立,虬枝如墨针叶含翠,将家族传承的意象写意成永恒的风景!
项目实景图
项目实景图
山水庭院之下就是会所,深入内部,则是一座设计灵感来自于罗马浴场的豪华泳池,天光破顶而下,一边是宏伟而精致的欧陆风情,一边是溪山行旅图的东方意韵,当你在池中游弋时身体划过的是一部浓缩的东西方文明史。
所谓禅意,不过是在快时代里为您留住慢的资格。据悉项目示范区已经实景呈现,如果你也想偷得浮生半日闲,欢迎到现场参观!

项目实景图
资料显示,该地块为Rr1类别的别墅用地,容积率1.3,限高15米,建筑面积14027平米,地块内需要保留的历史建筑规模约4400平方米,均为里弄建筑。
虹口区嘉兴路街道hk270B-04地块历史风貌保护项目概况如下:
1、四至范围:东至梧州路、南至周家嘴路、西至hk270B-02地块、北至柘皋路
2、土地面积:10790平方米
3、出让年限:70年
4、规划用地性质:一类住宅组团用地
5、容积率:1.3
6、建筑面积:14027平方米
7、起始总价:17.3亿
8、楼板价:123333元/㎡
复刻百年前的高端工艺元素,让海派造诣世纪传承。清砖立柱、古典门头、封闭门窗、岩石山墙等经典海派建筑风貌转译,于历史和未来之间收藏百年上海。
(*本图片仅为方案过程讨论稿,并非交付标准。)
【41载越秀 | 万亿级开发商 与上海共卓越】国内资产规模最大的地方驻港企业之一越秀地产,中国第一代商品房缔造者。41年越秀,30城300+项目,服务超100万业主;2023年销售额行业排名12,2023年TOP20销售业绩增长率最高房企。2024中国房企综合实力TOP9。入席北外滩世界会客厅,与上海共生长。(数据来源:克而瑞地产研究发布榜单《2023年1-12月.中国房地产企业销售榜top200》)
【一座码头 启航外滩百年世界史】项目所在地北外滩,是百年前上海的“下海”地。作为上海开埠后第一座码头的诞生地,北外滩率先“开眼看世界”,海纳万国文化风潮,众多此后影响中国的创举在此诞生,是上海最早的“十里洋场”
(*示意图,图片来源于网络)
【一江一河 再立世界上海新传】傲立“一江一河”交汇处(直线距离约1.1KM),未来将打造成为彰显上海城市核心竞争力的黄金水岸和具有国际影响力的世界级城市会客厅,出入之间,相逢城市高阶未来
(*示意图,图片来源于网络)
【北外滩 面向世界的上海新封面】北外滩,与外滩、陆家嘴并称为上海的“黄金三角”。将以2座陆家嘴的商务体量规划,新天地2.0生活圈打造,成为上海跃升世界舞台的“中心发力”新引擎
(*示意图,图片来源于网络)
【中央商务区 未来上海腾飞引擎】区域能级:总开发面积约840万方,40栋甲级写字楼城市地标:480米浦西第一高楼,19栋摩天大楼集群金融产业:2100+家金融企业赋能,资产管理规模超8万亿元,位居全市第一航运格局:4500+家航运企业集聚(上港集团、中远海运等),打造国际航运中心全球贸易:2500+家贸易企业入驻(摩亚方舟、银联商务等)新兴产业:129家新增高新技术企业,113家市区科技小巨人企业(数据来源:上海市规划局《北外滩地区控制性详细规划》)
(*示意图,图片来源于网络)
地块位于虹口区嘉兴路街道,区域居住氛围浓厚,配套成熟。地块西侧的1933老场坊,早前是上海工部局宰牲场;而如今,成为了众多文艺青年打卡拍照的必游胜地。此次也要求保留工部局旧址建面约1800㎡。
交通配套:地块距离地铁4、10、19号线换乘站海伦路站直线距离约600米,交通十分便捷。
【核心商圈 | 高阶商业配套 国际摩登领潮】商业配套方面项目约2公里内多元繁华构筑封面商业圈,北外滩商圈直线距离约500米;外滩商圈直线距离约1000米;陆家嘴商圈直线距离约1500米;瑞虹商圈直线距离约900米;
教育配套:华东师大一附中实验小学、虹口区第二中心小学、华东师大一附初中等优质配套;
商业配套:1km左右就有集购物、餐饮、娱乐休闲、办公及服务式公寓为一体的综合商业体——瑞虹天地,商业面积55万方,包括太阳宫、月亮湾、星星堂、瑞虹坊四个部分。
医疗配套:地块紧邻上海第一人民医院(三甲)

虹口北外滩「越秀·外滩樾」推出约235-338㎡风貌别墅!
上海购房百科全书:2026年上海最新购房、落户、税费与补贴政策全指南
2025年下半年以来,上海市在房地产领域推出了一系列优化调整政策,涉及限购、贷款、税费、落户等多个关键环节。
不论是首次置业的新上海人,还是希望改善居住条件的老市民,面对这些交织在一起的政策,都可能感到无从下手。
想在安家的路上少走弯路?这份结合了最新官方政策的“购房百科全书”,或许能为你点亮一盏灯。
目录前瞻
一,核心新政
二,限购政策
三,交易税费
四,贷款细节
五,房产税
六,上海落户
七,产权变更
八,补贴政策
核心新政
近期三大关键调整
近期政策主要围绕三个核心文件展开,了解它们是你规划购房的第一步:
1.限购与贷款调整(2025年8月26日起施行)
核心文件是《关于优化调整本市房地产政策措施的通知》。新政的最大亮点是大幅放宽了外环外区域的限购,并对公积金贷款额度、商业贷款利率定价机制进行了优化。
2.交易税费简化(2024年12月1日起施行)
根据国家部委公告,上海取消了执行多年的“普通住房”与“非普通住房”标准。这一变化直接影响增值税、个人所得税的计算,使得税费规则更加统一和简化。
3.人才落户政策更新(2025年12月1日起施行)
上海市政府印发了新版的《上海市引进人才申办本市常住户口办法》和《持有〈上海市居住证〉人员申办本市常住户口办法》。新办法对人才引进和“居转户”的条件与流程进行了明确。
限购政策
外环外购房不再受限
2025年8月的调整,对上海的限购格局进行了重要重塑,区域成为新的分界线。
本市户籍家庭
外环外区域:不限购。
外环内区域:限购2套住房。
非本市户籍家庭
外环外区域:在本市连续缴纳社保或个税满1年及以上,即可不限套数。
外环内区域:需在本市连续缴纳社保或个税满3年及以上,限购1套住房。
重要提示:政策中的“居民家庭”包括成年单身人士。关于限购的具体业务,可拨打行业服务热线咨询。
交易税费
一买一卖,成本几何?
取消“普宅”标准后,二手房交易的税费计算变得更为清晰。以下是你需要了解的关键税种和最新规则。
个人出售住房主要税费
增值税及附加
持有满2年:免征。
持有不足2年:按全部售价的5%缴纳增值税。附加税(城市维护建设税等)目前减半征收。
个人所得税
“满五唯一”:即持有满5年且是家庭唯一住房,免征。
其他情况:通常按转让所得的20%或核定征收(按转让收入的1%)计算。
个人购买住房主要税费
契税:税率根据家庭住房套数和面积确定。
首套房:面积≤140㎡,税率1%;面积>140㎡,税率1.5%。
二套房:面积≤140㎡,税率1%;面积>140㎡,税率2%。
实用工具:个人住房房产税缴纳、不动产信息查询等,均可在“随申办市民云”APP上便捷办理。
贷款双通道
公积金与商业贷款政策
购房资金的重要支持,主要来自公积金和商业贷款两大渠道。
公积金贷款
利率(2025年5月8日起)
首套房:5年以下(含)年利率2.1%,5年以上2.6%。
二套房:5年以下(含)年利率2.525%,5年以上3.075%。
额度
基础额度:首套最高184万元,二套最高149.5万元。
上浮额度:购买二星级及以上新建绿色建筑住房,最高额度可再上浮15%。多子女家庭购买首套绿色建筑,最高可贷216万元。
提取新政:支持提取公积金支付新建预售商品住房的首付款,且提取后不影响公积金贷款额度计算(即“又提又贷”)。
商业贷款
首套二套的认定(同现有政策):
1.名下无房认定为首套,有房认定为二套
2.客户限购政策之前或未成年之前于父母共有的均可剔除2套
3.多子女家庭名下已有两套房贷再还且利率均为首套的,第三套利率按照二套计算,其余均按首套计算
4.非多子女家庭购买第三套住房的限贷。
5.动迁款破限购商贷限贷。
二套的首付比例及利率:
1.首套15%,贷款金额500万以下的,利率为Ipr-45bp=3.05%,超过5成且金额大于500万的,利率为Ipr-40bp=3.1%
2.二套25%,贷款金额小于合同价5成或贷款金额500万以下的,利率为Ipr-41bp=3.09%,超过5成且金额大于500万的,利率为Ipr-36bp=3.14%
上海五大新城(嘉定、青浦、松江、奉贤、南汇)的商业贷款利率执行情况如下:
首套住房商业贷款:目前执行利率为5年期LPR减45个基点,即3.05%。
二套住房商业贷款:执行利率为5年期LPR减25个基点,即3.25%。需注意,自2025年8月26日起,上海商业房贷利率政策调整,银行可根据客户风险状况等因素合理确定具体利率水平,实际执行利率可能因银行和客户情况略有差异。
关于存量房利率的调整
1.已经过户但尚未放款的客户,签署变更协议,直接按照新政策执行
2.已经放款的存量房客户,自己可在手机银行或联系贷款银行变更利率,首套无变动,二套可lpr-14bp=3.36%
银行贷款利率定价机制已优化,不再区分首套和二套住房。具体利率水平由各银行根据市场利率自律机制、自身经营和客户风险状况确定。
房产税
哪些人需要缴?怎么减免?
上海的房产税主要针对新购住房。2025年的新政,显著减轻了非本市户籍家庭的税负。
征税对象
本市居民家庭新购的第二套及以上住房,以及非本市居民家庭新购的住房。
关键减免政策(2025年1月1日起执行)
首套房:符合条件的非本市户籍家庭,其家庭第一套住房暂免征收。
二套及以上:家庭人均住房面积≤60㎡的部分免税;超出部分征税。
优惠条件:购房人需持有本市居住证满3年并在沪工作生活。居住证未满3年的,可先缴税,待满3年后申请退还已缴税款。
如何办理:符合条件但已缴税的纳税人,可向住房所在地税务机关申请重新认定并办理退税。
上海落户
人才引进与居转户
获得上海户籍,意味着购房资格自动解决。主要有“人才引进”和“居转户”两大途径,新办法已于2025年12月施行。
人才引进直接落户
适用对象:本市用人单位引进的紧缺急需国内优秀人才。
主要类别:包括高层次人才、重点产业紧缺急需人才、高技能人才、市场化创新创业人才等。
区域特权:注册在浦东新区、临港新片区的用人单位,可由该区域自主审批。
居转户
基本条件(需同时满足)
持有《上海市居住证》累计满7年。
持证期间按规定缴纳社保满7年。
持证期间依法在沪缴纳个人所得税。
在本市被评聘为中级及以上专业技术职务或技师以上职业资格,且社保缴费基数达到一定市场标准。
激励条件(满足可缩短年限或放宽要求)
社保缴费基数达标:最近4年内累计36个月社保缴费基数达到上年度本市平均工资2倍,可不受职称限制。
区域优惠:在临港新片区、张江科学城、五个新城等重点区域工作,可享受更短的落户年限要求。
产权变更
赠与、继承与交易清单
除了买卖,房屋产权的转移还有赠与和继承等方式,其成本和流程各不相同。
赠与
主要费用:受赠方需缴纳3%的契税。双方可能涉及印花税。直系亲属间的赠与,通常免征增值税和个人所得税。
公证成本:办理赠与合同公证,费用按受益份额的面积计算,标准为每平方米80元;证明单方赠与的,减半收取。
继承
主要特点:法定继承人继承房产,免征增值税、个人所得税和契税,成本较低。
公证成本:办理继承权公证,费用同样按面积计算,标准为每平方米80元。
二手房交易流程核心清单
1.资格核验:通过“一网通办”或各区交易中心进行购房人资质审核。
2.签约:签订《上海市房地产买卖合同》,并支付定金。
3.网签备案:合同网上备案,锁定房源。
4.资金监管:首付款或全款存入银行或交易中心的监管账户。
5.涉税审核:到税务窗口申报并缴纳相关税费(增值税、个税、契税等)。
6.产权过户:双方携带完税证明等材料,办理不动产转移登记,领取新的不动产权证。
7.贷款(如有):买方凭新产证办理抵押登记,银行放贷至监管账户,卖方收到全部房款。
8.交房:办理水、电、煤、有线电视等户名变更,完成房屋交接。“随申办”APP提供“水电气视联办过户”服务。
补贴政策
以旧换新与人才激励
当前,上海正通过多种方式支持住房消费。
“以旧换新”支持
上海在市级提振消费方案中明确提出“更好满足住房消费需求”,支持居民刚性和改善性住房需求,并探索优化公积金使用政策。虽然市级层面未统一规定现金补贴,但部分区域或开发商可能联合推出具体“以旧换新”活动,涉及优先卖旧、优惠购新等。
人才购房补贴
上海未设置全市统一的人才购房补贴或优惠价格政策。人才安居福利主要通过人才公寓、保障性租赁住房、租房补贴等形式实现,重点向青年群体倾斜。部分重点发展区域(如临港新片区、五个新城)可能在其执行的人才政策中,包含针对人才的住房扶持措施。
建议:关注工作单位所在区或意向购房区域的人才服务部门官网,或直接咨询相关管理部门,以获取最精准的属地化信息。
政策的暖风已经吹起。无论是外环外不再设限的自由,还是公积金“又提又贷”的实在支持,都传递出满足合理住房需求的清晰信号。购房安家是系统工程,理清政策、算清成本、规划路径,方能行稳致远。
声明:本文由入驻焦点开放平台的作者撰写,除焦点官方账号外,观点仅代表作者本人,不代表焦点立场。
