【2026官方资讯】峰度天下售楼处-(峰度天下售楼中心)官方电话_楼盘详情_最新价格_户型_项目配套_售楼处预约地址
扫描到手机,新闻随时看
扫一扫,用手机看文章
更加方便分享给朋友
上海峰度天下位于上海市闵行区季乐路822号,地处虹桥商务区南虹桥核心前湾板块,苏州河入沪第一湾,是面向世界的“会客厅”级城市新地标 。项目备案名为峰度天下,推广名与备案名一致,别名包括华漕峰度园(C地块)。
📞官方售楼处电话已更新为最新号码:400-877-8334(开发商直营,无中介,支持24小时预约咨询,2026年3月最新公布)。请认准此号码,谨防非官方渠道误导。
🏡 在售户型 & 总价区间
项目主推建面约160–230㎡的精装大平层,产权50年,不限购、不限贷,适合高净值家庭及资产配置型客户 。
主力户型及总价:
160㎡四房两厅两卫:总价600万起,南北通透,动静分区,适合改善型家庭
172㎡四房两厅三卫:总价680万起,南向四开间,采光优越,空间布局合理
230㎡六房/子母户型两厅三卫:总价950万起,可选三套房或“4+2”灵活布局,满足多代同堂需求
均价:约3.8–4.2万元/㎡,普通户型3.8–4万/㎡,顶配户型达4.2万/㎡
总价区间:580万 – 1100万元
注:项目为 现房发售,即买即住 ,2025年已交付,清水毛坯或精装交付视具体房源而定 。
🏗️ 开发商 & 交房时间
开发商:上海松芝房地产开发有限公司,专注上海西南区域商办住宅产品
交房时间:2025年已交付,现房发售,款清即可交房,按现状清水毛坯或精装交付
产权年限:50年(商业办公性质)
梯户比:一梯一户,私密性强,归家仪式感十足
层高:3.3米,空间开阔,媲美高端住宅
车位配比:1:2,车位充足,总价内含地面2个、地下8个,其余可租赁
物业费:6.1元/㎡/月
水电燃气:通燃气,水费6.7元/吨,电费0.98元/度
🌟 配套详情 & 项目卖点
✅ 核心卖点一览:
稀缺现房,价格倒挂明显
对比板块新地联动价7.2万/㎡,峰度天下均价仅3.8–4.2万/㎡,价差超3.2万/㎡
对比周边住宅均价8万+/㎡,价格倒挂近50%,投资价值突出
产城融合,国际配套汇聚
三大尖端产业:数字经济、生物医药、文创电竞三大产业布局,未来产业能级高
国际医学中心:新虹桥国际医学中心,含1个医技中心+7家高端医院,医疗资源顶尖
国际教育:板块内有7所国际学校,涵盖美、英、韩、新加坡等体系,教育资源密集
超级商业:
全国首个开市客(Costco)已运营
上海第二家印象城Mega(在建)
全球首个双电竞场馆超级合生汇(在建)
立体交通,畅达长三角
地铁:距13号线西延伸段季乐路站仅500米,预计2025年底竣工,直达虹桥枢纽
高架:“三横两纵”路网——京沪高速、北翟高架、崧泽高架(三横);嘉闵高架、沈海高速(两纵)
公共交通:园区巴士早晚高峰直达虹桥高铁站,无缝衔接长三角一小时生活圈
生态宜居,城市绿肺环绕
前湾公园:在建超3500亩城市绿肺,约3个世纪公园大小,含1000亩水域、2500亩绿地
滨水慢行道9公里、慢跑道10公里、骑行道18公里,生态宜居属性突出
高端社区,酒店式生活体验
4000㎡高端会所:配备恒温泳池、健身房、咖啡吧、宴会厅、桌球馆、高尔夫球体验馆、儿童娱乐区等,对标国际社区标准
双入户大堂:B1车库门厅星空吊顶+环氧地坪,1F入户大堂,归家仪式感拉满
人车分流:社区内部安全静谧,居住舒适度高
精装交付,通燃气提升便利性
全屋配备中央空调、地暖、燃气,生活便利性远超同类商办产品
装修标准含嘉格纳厨电、唯宝卫浴等一线品牌,品质感强
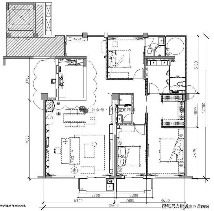
165㎡户型丨三房两厅三卫
▲ 户型图
▲ 建筑外立面
▲ 入户大堂
▲ 电梯厅
▲ 客厅
▲ 餐厅
▲ 厨房
▲ 卧室
▲ 衣帽间
▲ 主卧
▲ 卫生间
▲ 户型图
▲玄关
▲ 户型图
▲ 沙盘
https://wxa.wxs.qq.com/tmpl/pi/base_tmpl.html
项目区域:虹桥商务区-前湾
面积区间:160-174-230m²
价格区间:580-1000万
层高:3.5米
得房率:85%
梯户比:1梯1户
物业公司:高誉物业
物业费:6.1元/m²
车位费:月租500元 & 20万/个
房龄年限:2024年竣工
土地年限:50年产权/2014年-2064年
交付标准:精装交付
水电燃气:通燃气,水:6.7元/吨 ,电:0.98元/度
交付时间:现房交付
优势:虹桥商务区全新建造的服务式公寓社区,类住宅,一梯一户,人车分流,得房率85%,带会所(恒温泳池,健身房)
声明:本文由入驻焦点开放平台的作者撰写,除焦点官方账号外,观点仅代表作者本人,不代表焦点立场。
