城发云锦城售楼处电话:400-8567-004✔✔【预约热线】 城发云锦城售楼处营销中心:400-8567-004
城发云锦城售楼处电话/地址☎:400-8567-004(开发商热线) 如有问题欢迎来电咨询,专业一对一热情服务,让您用专业眼光去买房。
城发云锦城售楼处电话:400-8567-004✔✔【预约热线】
城发云锦城售楼处营销中心:400-8567-004
城发云锦城售楼处电话/地址☎:400-8567-004(开发商热线)
如有问题欢迎来电咨询,专业一对一热情服务,让您用专业眼光去买房。
城发云锦城
01
不用摇号、不用拼社保,还是地铁旁的主城“未入住新房”……
看到这些字眼,估计好多人想摩拳擦掌冲上去抢一套。然而,现实中的结果却大相径庭。
昨天,位于 上城区长睦板块的城发·云锦城,被杭州产权交易所公开拍卖了59套住宅,主力户型面积约85-134㎡(有2套66㎡)。其中约85㎡可做三房,约134㎡可变四房,后者占到了40套。
主流总价约180-330万,也在刚需们的承受范围内。
但从早上9点到下午3点,长达6个小时的自由竞拍时间,并未吸引到太多购房者—— 最终仅成交16套,近75%房源流拍。
当中又有 8套是底价成交,其余8套最高溢价率也不到10%。
值得一提的是,这59套房源中的15套,本就是早前流拍房源,又重新拿出来竞拍而已,结果仍只有可怜的2套底价成交。
从成交房源看, 进入竞价的均为85㎡,134㎡户型几乎全部底价成交(仅1套溢价0.16%)。
云锦城遇冷的背后,到底是什么原因?
02
先说明一下,这批房源的基本情况。
云锦城这59套房源,全部是2015年或2017年交付的毛坯次新房,从未有人入住。目前,房屋产权均属于城发集团公司,因此这次拍卖本质上是 二手房交易。
我咨询了一下,如果竞拍成功,最终买卖双方各自承担相关费用。
除房源成交价格外, 买家需要另外支付契税,以及成交总价2.5%的交易服务费。
至于拍卖冷清,最关键的原因在于, 这批房源的起拍价设置得并不低,跟真实二手成交价相差无几。也就是说, 没什么倒挂,不合算。

云锦城实景
以两套拍卖成功的中间楼层房源为例。
第一套是14幢1203室,面积约85㎡,经过10轮竞价,最终成交价格约215.4万,算下来成交单价约25300元/㎡。
第二套是14幢1604室,面积约135㎡,一轮底价成交,成交价格约318.8万,成交单价约23600元/㎡。
而在二手市场上,云锦城的 85㎡小户型,满二唯一,成交价约220-230万, 毛坯均价在26500元/㎡上下。134㎡大户型,毛坯成交价大约2万3,比小户型更低。
两相比较,拍卖房源的价格,确实没优势。
此外,云锦城的二手大户型,本来就不好卖;事实上整个长睦都大体如此,客户要改善就往丁桥去了。所以,没差价的134㎡大户型频频流拍,也很正常。

03
除了最重要的价格因素,云锦城小区和长睦板块,也要为这次的大比例流拍,负上一定责任。
先说结论: 云锦城是目前长睦板块内,二手成交均价最低的商品房;同时, 基本上也是主城区内均价最低的二手商品房了。
首先,云锦城分两期开发,一期交付于2015年,相对周边楼盘来说交付时间较早。 小区维护得不好,因此园区整体观感也不佳。
其次,楼盘和板块本身,有一些先天BUG。
比如云锦城的北侧有高压线塔, 北面直线约1公里处,是皋亭山上的几处陵园。这次拍卖的14幢高楼层,应该是能看到一部分陵园的。另外也会受到战机训练影响,我在现场就听到了飞机飞过的清晰声音。

云锦城实景
之前大家诟病的臭味问题,随着前年底天子岭垃圾填埋场实现零填埋,如今倒是不存在了,对长睦来说是一大利好。
与此同时, 长睦也是一个“低存在感”板块,每每要被丁桥压一头。最大的意义,是把守着杭州主城区东北侧的城门,成为 “刚中刚”客群挤进主城的跳板。
综合各方面原因,云锦城的二手成交一直不算活跃。
手边买房数据显示,小区挂牌量高达83套,但每月成交都在5套以内; 517新政后略好一些,至今成交了13套,其中6月成交8套。
客群方面,由于已是主城区二手房的最低门槛,基本上哪儿来的都有。主力还是周边地缘客户及城东、城北客户,但也有来自城西的。


御东方实景(上)
蔚蓝领秀实景(下)
而就长睦板块而言, 最抢手的两个盘,是杭房城发·御东方和卓越·蔚蓝领秀。
作为板块内唯一的铝板立面项目以及精装交付项目,御东方不仅颜值高,交付时间也是最晚的(去年下半年)。
我去看了两套房子,精装标准挺良心:客厅地面是大理石,客厅和主卧背景墙是交标,连小户型的一整排玄关柜也都是交标。
因此, 御东方的98㎡小户型三房两卫,能卖到单价3万2不含税。大户型则是长睦板块内最俏的,挂牌量也少,单价比小户型更贵点。
蔚蓝领秀的综合品质也不错,属于上城区的一期房源, 89㎡满二唯一,能卖约270万。
“蔚蓝领秀即便是二期临平区的房源,价格也跟云锦城差不多,89㎡能卖约235万。”中介小哥忍不住补了一句。
04
云锦城这次拍卖之前,本周三,我曾去长睦实地探访了一圈。讲真,踩完盘之后,我对大比例流拍的结果,多少是有预料的。
在红郡底商的德佑门店,我找了一位中介小哥带看房,东侧长睦路一路之隔,就是云锦城。
还没过红绿灯,远远望过去, 云锦城的外立面好似打了一个个扎眼的“补丁”。定睛细看, 几乎每幢楼立面的米黄色面砖都有脱落修补的痕迹,因为颜色不统一,观感上十分突兀,起翘不平也有不少。
毕竟是2015-2017年交付的房子,不应该啊。看看隔壁同为2017年交付的红郡,红褐色面砖立面啥事儿没有。



云锦城的“补丁”起翘外立面实景
从云锦城北门进入,只见 园区人车不分流,路面上停着许多车子,住户们肯定是不敢让小小孩单独下楼玩耍了。
部分楼幢的架空层,直接沦为电瓶车、自行车停车场……
这次拍卖推出的房源,大多位于14幢。
楼幢位置不错,在小区的中央靠后,南侧和西侧直面大草坪,景观和视野都算OK。



云锦城架空层沦为电瓶车停车场(上)
云锦城的中央大水景是干涸的(中)
云锦城的小水景底部满是淤泥(下)
南侧斜对角是小区中央水景。我去逛了一圈,发现 大水景是干涸的,小水景倒是在,但水有点脏,能清楚看到底部积满了淤泥。
走在园区里, 路面上的地砖不时有开裂、起翘,应该跟汽车、电瓶车的长驱直入脱不了干系。一到下雨天,踩中就溅脏水,会成为一个个让人防不胜防尴尬的“坑”。
我还看到一辆汽车想往路边的垃圾桶扔垃圾,但驾驶员也不下车,打开车窗随手一扬,果然就纷纷掉在了地上……
总结一下,云锦城的园区规模较大,草木绿化算是茂盛, 该有的规划配套基本上也有;但看得出来维护得很一般, 不免有些遗憾。
05
拍卖的具体房源,我也实探了两套,分别是云锦城14幢301和702室。
身为“户型神偷”时代的产品,云锦城和周边同期开发的楼盘差不多,户型还是挺不错的。光看户型图没太看明白的我,在中介小哥的现场解说下,恍然大悟。
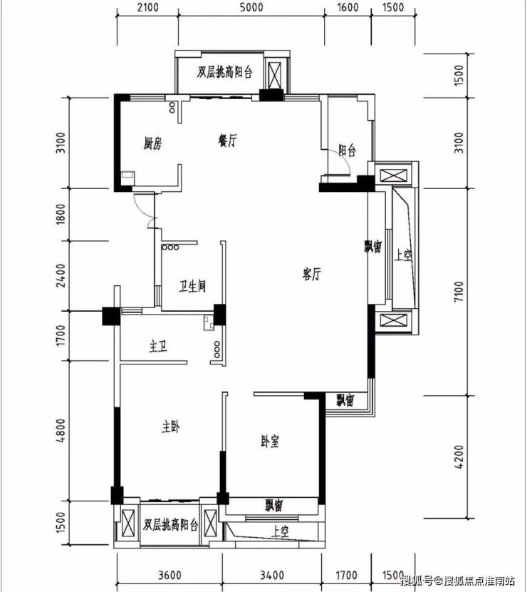
依靠大面积的拓展, 约85㎡能做三房一卫,约119㎡紧凑点能做四房两卫,约134㎡也是四房两卫。
14幢是点式高层,一共23层,两梯四户,由两套约85㎡的中间套、两套约134㎡的边套组成。
301室是约134㎡东边套,乍看户型图平平无奇,关键在于可拓展面积太多了!


云锦城约134㎡原始户型图(上)
约134㎡改造后户型图(下)
以此户型为例,南北两侧两个双层挑高阳台、东北侧阳台、东侧飘窗和南次卧飘窗,全部可以外拓成室内空间。也就是说, 全屋除了一个小飘窗外,其余阳台和飘窗都可以外拓。
放到这两年,简直匪夷所思。它是如何实现的?
原来开发商在设计之初,就已做好预案: 所有可拓阳台和飘窗之外,全部搭好了横梁和柱子,购房者 只需浇筑一部分地板出去,再封上玻璃,就能实现户型改造。
所以,约134㎡最主流的装修方案是:东北侧阳台包进,隔一个北向房间出来;客厅飘窗敲掉外拓,南次卧北面再隔出一个房间;主卧阳台和次卧飘窗全部外拓,又各能增加好几平方面积。
如此,就能装修出比较舒服的四房格局。


云锦城约85㎡原始户型图(上)
在85㎡挑高阳台,抬头能看到楼上的地板已浇筑(下)
702室则是约85㎡中间套,能做三房一卫,三开间朝南排布,南向总面宽9.9米。
改造原理是一样的:南向次卧的双层挑高阳台可外拓包进,客厅和主卧的飘窗敲掉外拓;同时主卧北侧墙体内退一部分进来,北阳台封上玻璃,又能隔出一个小房间。
最近两年,看惯了乏善可陈的鸡肋户型,已经到105㎡才能做出三房两卫的程度; 回头再看如此大胆的拓展面积,有一种很不真实的“时光倒流感”。
06
话说回来,虽然云锦城这批房源的性价比并不高,但 通过杭州产权交易所进行拍卖,不失为除法拍外,购房者可以多加留意的又一途径。
这一途径相对小众,但事实上,一直有不少房源在这里拍卖。
武林广场旁的木庵小区曾拍卖28套住宅,下沙物美旁的裕园公寓和华顺公寓曾拍卖102套住宅……
现在登录产金所网站,你也可以看到一部分的7月即将拍卖房源:宝善公寓等5套住宅,翠苑四区等6套住宅……此外,除了云锦城这次的流拍房源,后续该小区也还有其他住宅会在此拍卖。
再看法拍,目前阿里法拍(非房东主动送拍房源)的相关费用不多,买家一般只要支付房屋契税就可以了。
跟阿里法拍相比,杭州产权交易所拍卖的房源,买家入手费用更高:要支付契税,以及成交总价2.5%的交易服务费。
但如果房源起拍价格低,又少人竞拍,那么,还是会有捡漏的可能性。所以,平时多盯一盯,没坏处。
城发云锦城售楼处电话:400-8567-004✔✔【预约热线】
城发云锦城售楼处营销中心:400-8567-004
城发云锦城售楼处电话/地址☎:400-8567-004(开发商热线)
如有问题欢迎来电咨询,专业一对一热情服务,让您用专业眼光去买房。