山岚璟庭(2024年山岚璟庭)首页网站-山岚璟庭最新楼盘详情-户型配套
扫描到手机,新闻随时看
扫一扫,用手机看文章
更加方便分享给朋友
山岚璟庭售楼处电话☎:400-9939-964✔✔✔
苏州山岚璟庭售楼处电话☎:400-9939-964✔✔✔
山岚璟庭售楼处电话☎:400-9939-964✔✔✔
Suzhou Shanlan Jingting Sales Office tel: ☎ : 400-9939-964✔✔
苏州山岚璟庭售楼处电话☎:400-9939-964✔✔✔
The mountains and mountains are jingting!
山岚璟庭!
The case name of Sugaoxin Fengqiao No. 10 block project was officially released!
苏高新枫桥10号地块项目的案名正式出炉了!
And it is also a low-density residential area with a plot ratio of only 1.2!
而且还是一个容积率仅为1.2的低密住区!
There are 411 households in the project, including 11 8-10F houses, including 2 8F houses, 3 9F houses and 6 10F houses:
项目共计411户,共11幢8-10F住宅,其中2幢8F住宅、3幢9F住宅、6栋10F住宅:
8F Bungalow: 1#, 2#;
8F洋房:1#、2#;
9F Bungalow: 6#, 7#, 8#;
9F洋房:6#、7#、8#;
10F Bungalows: 3#, 4#, 5#, 9#, 10#, 11#;
10F洋房:3#、4#、5#、9#、10#、11#;

山岚璟庭售楼处电话:400-9939-964
Suzhou Shanlan Jing Ting Sales Office Tel :400-9939-964
苏州山岚璟庭售楼处电话:400-9939-964
The project covers an area of 43924.1 square meters, the total construction area of 84834.43 square meters, the above-ground construction area of 52812.11 square meters, the plot ratio is only 1.2!
项目共占地面积43924.1㎡,总建筑面积84834.43㎡,地上建筑面积52812.11平,容积率只有1.2!
Very low density, a large area of space for the community landscape, the future living experience directly filled.
十分的低密,大面积空间留给社区景观,未来居住体验直接拉满。
The specific location of the project is located in the high-tech zone Fengqiao street Huashan Road north, Chaohong Road west, is May 9, 2022, Su high-tech with a base price of 685.22 million yuan won, the transaction price of 13,000 yuan /㎡.
项目具体位置就在位于高新区枫桥街道华山路北、朝红路西,是2022年5月9日,苏高新以底价68522万元竞得,成交楼面价13000元/㎡。
山岚璟庭售楼处电话:400-9939-964
Suzhou Shanlan Jing Ting Sales Office Tel :400-9939-964
苏州山岚璟庭售楼处电话:400-9939-964
The overall facade is made of beige real stone paint, dark gray real stone paint, dark gray aluminum plate, dark gray metal paint, cold gray aluminum plate cornice and so on.
整体外立面采用米白色真石漆、深灰色真石漆、深灰色铝板、深灰色金属漆、冷灰色铝板檐口等搭配而成。
In fact, if you look at it from the facade alone, it looks a little like the new Chinese style of Jianfa.
其实,若是单从外立面上来看,有点像建发的新中式风格。

山岚璟庭售楼处电话:400-9939-964
苏州山岚璟庭售楼处电话:400-9939-964
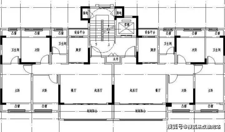
户型方面,项目预计打造建面105㎡和148㎡等户型,根据此前规划,项目公示了1#的标准层平面图。
1#-8F洋房
建面约105㎡-2梯4户

山岚璟庭售楼处电话:400-9939-964
Suzhou Shanlan Jing Ting Sales Office Tel :400-9939-964
苏州山岚璟庭售楼处电话:400-9939-964
The overall 3 rooms face south, the dining room + living room is a large wide hall design, the room is about 5.7 meters.
户型整体3开间朝南,餐厅+客厅的大宽厅设计,开间约5.7米。
South connected with the same scale closed balcony, the master bedroom is designed as a suite, with an independent bathroom, its opening room is about 3.2 meters.
南向连接同尺度封闭阳台,主卧为套房设计,有独立的卫生间,其开间约为3.2米。
Overall, the whole house has more bay window design, and the living experience is good.
整体来看,全屋多飘窗设计,居住体验好。
7#-9F洋房
建面约148㎡-2梯4户


山岚璟庭售楼处电话☎:400-9939-964✔✔✔
苏州山岚璟庭售楼处电话☎:400-9939-964✔✔✔
每一份努力,都是设计师为了缔造更加舒适和优越的空间而付出的。他们用心倾听客户的需求,用心感受空间的韵味,用心打造每一处细节。正是这份执着和追求,使得高端的家居设计能够不断突破创新,为人们带来更加美好的居住体验。
落地窗如同画框一般,将眼前的湖景完美地框入室内。每当阳光洒落,城市的天际线在远方若隐若现,这一幅幅动人的画面便成为了室内最自然的装饰。让人心旷神怡。
主题墙选用的大岩石,犹如一件天然的艺术品,其清晰的纹理宛如岁月的印记,镌刻出空间的优雅与大度。这面墙不仅是视觉的焦点,更是灵魂的触动,让人在每一次注视中都能感受到那份沉静与深邃。其舒适的质感更是诠释了此处的高贵,仿佛每一寸空间都流淌着贵族的血液,散发出迷人的气息。

在用餐区的布局上,设计师也充分考虑了日常行动的习惯,打造了一个极具人性化的空间。无论是座位的安排、餐具的摆放还是通道的设置,都让人感到舒适与便捷。这样的设计不仅提升了用餐的体验,也让人们在享受美食的同时,能够感受到家的温馨与舒适。
设计师精心打造的衣帽间,不仅外观时尚大方,更在细节处体现了人性化的关怀。根据业主的穿衣习惯,衣柜内部进行了科学合理的分区,衣物、鞋帽、配饰等物品都可以有条不紊地存放,让业主在忙碌的早晨能够迅速找到所需,以最快的速度整装待发。
床头的背景墙设计巧妙而独特,皮料的柔软触感与金属的冷硬质感相互碰撞,形成了一种既现代又古典的美学风格,既展现了业主的非凡品味,又彰显出一种无法言喻的贵气。它们不仅提升了整个居住空间的品质感,更让业主在日常生活中能够感受到一种高品质的生活体验。
山岚璟庭售楼处电话☎:400-9939-964✔✔✔
苏州山岚璟庭售楼处电话☎:400-9939-964✔✔✔
1.房地产行业基本专业知识
一、房地产:
指一般不动产和不动产(又称屋苑)。
2、不动产存在的三种形式:
简易地、简易房、土地和房屋综合体
三、物业性质:
a.房产位置固定(土地不能移动,房屋也不能移动);
b.房产的地域差异(每处房产价值不同);
C。房地产的高价值和耐用性(昂贵的永久土地);
d.房地产保值增值(货币贬值、房地产保值、货币增值、房地产增值);
4.房地产:
是房屋及其权利(所有权、使用权、收益权、转让权等权利)的总称。
5、房屋分类:
a.功能用途:住宅(社会、优质住宅)、工业建筑(厂房、仓库)、商业建筑(门面、商场)、办公建筑(写字楼)、行政建筑(军队、学校等).)住房和城市);
b.建筑结构:钢结构、钢筋混凝土结构、砖混结构、砖木结构等;
C。拥有权:公屋(直营公屋和自营公屋等)和私人房屋;
6、房地产:
是土地及其权利(使用、收益、处置等)的总称。
七、国家分类:
a.开发利用:生地、耕地;
b.建设任务:建设用地和非建设用地;
C。使用范围:住宅用地、商业用地、工业用地、仓储用地、市政公用设施用地、交通用地、绿化用地、特种用地等;
八、房地产行业:
指从事房地产开发、经营、管理和维护的行业。包含:
a.土地开发;
b.公寓的建设、维护和管理;
C。土地使用权有偿划拨、出让;
d.公寓买卖、租赁;
e.房地产抵押;
f.房地产市场;
九、土地使用权:
土地所有者按照土地分类享有的土地使用权(指对土地的合法经营权、使用权和收益权)。土地公有制有两种形式:共有制和国有制。a)农村土地实行集体所有,属于联农;b)城市土地成为国家财产,属于全民族所有;没有人能得到土地。
获得土地使用权的途径:
配送:免费使用,如学校、医院、军区、机场等市政建设项目;
出让:有偿向国家取得使用权,方式:承包(如200万-250万/亩)、要约(提出最低价格并根据使用目的和价格取得)、拍卖(出价最高的人中标,如果不违法,通过正规渠道);
10、房地产市场:a.一级市场:以土地为主体(又称土地市场、土地交易市场);
b.二级市场:开发商取得土地后,投入一定红利进行建设,将所有权作为补偿或赠与转让给权利人(新建商品房买卖市场);
C。三级市场:消费市场的房屋回收,包括:买卖、按揭、转让、出租(二手房);
房地产市场结构的一个很好的清单:
十一、土地使用权转让:
是指国家作为土地所有者,按照规定的土地使用期限、用途和城市规划,将城市土地使用权出让给土地使用者,并向土地使用者收取土地使用权出让金的行为。其他条件。出让交易的当事人是国家和土地使用单位或私人。
12、土地所有权:
包括土地所有权、不动产权、产权负担、抵押权、留置权和租赁权。
地上权:指在他人土地上以出租价建造房屋的权利,其本质是土地使用权;
骑:使用他人土地为己所用的权利;
抵押权:是指土地使用权人在有效使用期内,以土地为抵押,取得银行贷款或其他担保的权利;
租赁权:指土地使用权人在实际使用期内将土地出租给他人使用产生收益,承租人取得土地租赁权;
十三、土地使用年限:
即国家将土地使用权转让给土地使用者,双方约定土地使用者可以使用多少年。
1)土地使用权出让期限:
a.居住国满70年;
b.工业用地、教育、科技、文化卫生、体育、综合等用地50年;
C。商业、旅游、娱乐区40年;
(ps:如需改变用途,需补交土地年价的差价,按国家规定的措施执行;)
2)土地使用期结束后的处理:
a.国家有权无条件收回土地;
b.建筑主体部分经质检部门检验不属于危房;
C。项目的存在不影响城市规划和市容,只要向国家缴纳土地出让金,仍可使用。
14、商业公寓:
开发商以市场价格取得土地使用权并经国土办批准上市后开发建设的房地产,是可以转让、出租、收取、抵押、交换的不动产。取得房产证。
商品房物业类型:住宅、写字楼、商场、酒店、商场。
15、商品房预售制度:
五证两证五证:、、、、
两本书:、,这两本书可以作为商业地产买卖合同的附加合同,是房地产开发企业在商业地产中对购房者质量责任的法律文件和保证。文档。
16、烂尾楼:
十七、计划外:
18.混合未完成的属性:
买卖尚未建成的房屋。(现政府规定商业地产5年内不得出售,并征收5%的营业税,以遏制炒房行为)
19.特殊住房:
指符合预售条件,尚未竣工交付入住的商业物业。(价格低,空间大,户型齐全,建材质量把控)
20、现居:
指经技术质量监督部门验收合格,具有质量证明文件,可以投入使用的商品房。(即买即换,价格高,户型陈旧,选择有限)
21、经济适用房:
22.二手公寓:
拿到产权证,再搬家。其他,如公屋、民营房屋、筹款房、廉租房、安置房、其他福利房等。
23.赚钱:
是指开发商在商业地产拿到预售证之前向客户收取的可退还费用(通常是开发商承诺的折扣)。
24.押金:
是指当事人约定,一方支付给另一方作为债权人担保的一定数量的货币(可以保证债权人的作用)不能退还。
25.押金:
我不能保证贷方的作用,我可以退货。
26.入口:
第一扇门进来的地方,开门区。
27.公寓:
指2层以上供多户居住的建筑物。
28、清洁办公楼:
旨在为各种公司的日常运营提供办公空间的建筑物。
29、综合楼:
家居、办公、商场、综合楼。
30.商业和住宅建筑:
SOHO,家和办公室在一起。
31.羊毛:
指建在郊区或风景区内用于休养住宿的花园洋房,TOWRHOUSE(联排别墅、单排别墅)
32.购物中心:
One-stop-shopping,集购物、娱乐、休闲为一体的商业区,起源于美国(又称第六种商业)
33、物业管理:
指专业公司或机构接受业主(或使用者)委托,对物业进行专业管理,为业主(或使用者)提供高效周到服务的行为。
三十四、物业管理内容:35、业主大会:
指由一个房地产管理区域的全体业主组成,有权决定该区域房地产管理的一种组织形式。
36、业主代表大会:
由物业管理区域内的业主代表组成,对该区域内的物业管理具有决策权的组织
37、业主委员会:
由物业管理区域内的业主代表组成,代表全体业主对物业进行独立管理。由业主大会或业主代表选举产生
38.一次性付款:
39、分期付款:
购房人签订合同后,将购房款分成一定比例,按期限或施工进度(不同房屋)分期支付房款。房屋交房时,货款已全额付清
40、银行按揭:
41、资产管理基金:
“住房救助基金”全称是指政府机关、国有企业、城市合资企业、外资企业、城市民营企业等城市企业事业单位及其职工按照政府规定缴纳的资金。结合城镇住房制度改革。住房消费资金(不接受门面)。存款比例:至少为员工上一年月平均工资的5%,有条件的城市可适当提高存存比例;存款方式:一是员工个人存款;二是职工所在单位直接支付;
42、个人住房公积金贷款:
43.证书税:
指在房屋所有权发生变化时,根据双方签订的协议,按公寓价格的一定比例向房产所有人一次性征收的税款(常住:2%,其他住所:4%)
44.公共维修基金:
指用于房屋和建筑物公共部分及公共设施设备的维护保养资金(普通住宅:2%;电梯间和外墙:3%)
45.生长地:
指尚未开发建设用地条件的未开发农用地或荒地
46.起步价:
也就是说,“起拍价”是指所有楼盘的最低售价(通常指户型、朝向、布局不佳的楼盘价格,每层楼价相差数十至数百元)
47.基本价格:
也就是说,“底价”是指通过核算得出的商品房每平方米的底价。楼盘计价方式,与起拍价无关(不同楼层、方向价格不同)
48.平均价格:
即房产的平均售价,房产中每套房屋的售价之和除以每套公寓的建筑面积之和,得到平均平方英尺)
49.成本价:
在住房制度改革中,是指出售公房时按公房平均建设成本确定的价格
声明:本文由入驻焦点开放平台的作者撰写,除焦点官方账号外,观点仅代表作者本人,不代表焦点立场。
