桐安里项目简介-上海杨浦(桐安里)楼盘详情-房价-户型-容积率-小区环境
扫描到手机,新闻随时看
扫一扫,用手机看文章
更加方便分享给朋友
上海豪宅市场疯了!
近期,套均5800的新盘【金陵华庭】开盘日光!
套均5800万的【绿城潮鸣东方】开盘日光!
套均5700万的【陆家嘴太古源源邸】开盘几乎日光(去化率97%)
套均6200万+【上海壹号院】,毫无争议的开盘售罄!
再回顾整个2024年,完全可以说是 豪宅爆发年!
桐安里售楼处电话:400-9659-259
中海领邸约324亿、中海顺昌玖里约228亿、融创外滩壹号院二期约216亿、翠6约120亿、保利世博天悦约117亿......
豪宅日光盘可谓是层出不穷。更不提上海 特色产品“风貌别墅”!动辄5000万起,大面积更是接近一个“小目标”!但这并没有浇灭高净值购房者的置业热情。以中海顺昌玖里、 桐安里售楼处电话:400-9659-259恒昌玖里为例,共计推出49套风貌别墅,约29.8万/㎡单价, 分两天开盘,都在当天清盘!小编只能感叹,真的是有实力啊!
上述项目除了贵的共同特性外,还有就是都身处上海的核心地段...
众所周知,上海的顶层规划设计,四字足以概况—— 一江一河!
黄浦江和苏州河,它们一纵一横,是上海这座城市的骨架,也是灵魂。尤其是黄浦江畔,一直是上海对话世界的窗口,也是2035规划的世界会客厅。 桐安里售楼处电话:400-9659-259
所以无论是过去、现在还是未来, 任何一套滨江板块的住宅都是令人仰望的存在,是城市菁英们身份与地位的象征,是人生资产无可替代的压舱石!桐安里售楼处电话:400-9659-259
桐安里售楼处电话:400-9659-259
可惜的是,对于寸土寸金上海来说,土地无疑是珍贵的资源。尤其是内环滨江两岸的土地,更是不可复制的稀缺资源。
所以内环滨江两岸高容积率是常态,偶然发售的新房也以高层、超高层小区为主。 低密产品缺失,想在滨江岸线圆梦墅居几无可能!桐安里售楼处电话:400-9659-259
重磅消息来了!
杨浦内环滨江低密风貌、定制化高净值“纯别墅”高端人居——【桐安里】火热销售中!
推售建面约185-235-305㎡风貌别墅(叠墅+联排)
推售房源总计70套(8套叠加、62套联排)
其中, 桐安里售楼处电话:400-9659-259
建面约185㎡联排
赠送地下室:约132-136㎡
赠送花园、露台、阁楼,总价约3550-3620万
建面约235㎡联排
赠送地下室:约130-140㎡
赠送花园、露台、阁楼,总价约4750-5120万
建面约305㎡联排
赠送地下室:约185㎡
赠送花园、露台、阁楼,总价约6450万
建面约187㎡上叠(3-4F)
赠送地下室(约97-116㎡)
赠花园+阳台+露台+阁楼,总价约2700-2910万(13#、09#、07# )
建面约181㎡下叠(1-2F)
赠送地下室(约154-172㎡)
赠花园+阳台+阁楼, 总价约3040-3130万(15#、11#、05#、03# )
售楼处+样板间持续开放中!
桐安里售楼处电话:400-9659-259
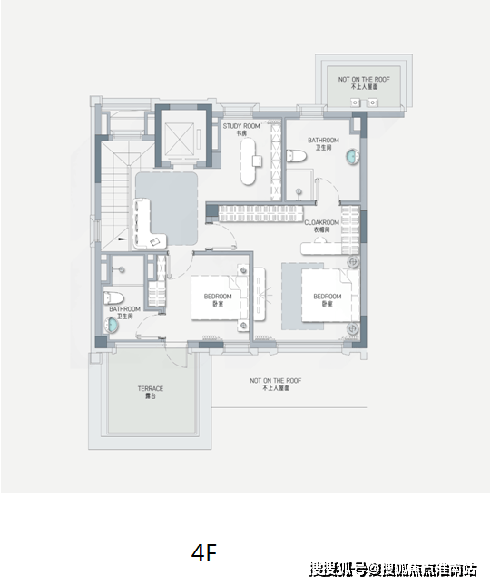
户型图赏鉴
桐安里售楼处电话:400-9659-259
桐安里售楼处电话:400-9659-259


桐安里售楼处电话:400-9659-259

桐安里售楼处电话:400-9659-259
桐安里售楼处电话:400-9659-259
桐安里售楼处电话:400-9659-259
桐安里售楼处电话:400-9659-259
桐安里售楼处电话:400-9659-259
桐安里售楼处电话:400-9659-259
俗话说:人生有别,以墅为界。如果有得选,谁又不想圆梦墅居呢?
相比城心的高层和超高层产品, 桐安里的风貌联排产品在居住的各个层面都是碾压!
桐安里售楼处电话:400-9659-259
我们以项目主力的 建面约235㎡户型来对比:
首先,有天有地有院子是每个中国人藏在骨子的浪漫!桐安里的风貌联排联排直接 独门独户,上下五层顶天立地,门前庭院则为孩子提供了一方亲近大自然的私密场所,也击中了养宠人士的心趴。
桐安里售楼处电话:400-9659-259
其次,相比城心大平层“一层不变”的生活,桐安里的联排别墅生活情境 更立体,更个性化,更私密,更适配大家族多代人居住。桐安里售楼处电话:400-9659-259
同时别墅户型的面宽、采光、收纳、通透、得房率等都做到尽善尽美,让家里的每一位成员都有更舒适的起居环境。
土拍回顾及规划
2023年11月,招商&海门国资委拿下平凉社区01B4-04地块(平凉街道19街坊)历史风貌保护项目。

桐安里售楼处电话:400-9659-259
项目为住宅用地,总用地面积月12666.4平方米,容积率1.35,地上计容建筑面积为17099.64 平方米,地下建筑面积为25900平方米。 整个地块为肌理保护范围, 桐安里售楼处电话:400-9659-259,历史建筑保护更新规模不小于1.47万㎡,均为需要保留的历史建筑(一般)。

桐安里售楼处电话:400-9659-259
根据设计方案显示,项目拟建15幢风貌别墅,地块东南侧为3层的公租房,总户数约70套,主要以四联排为主,辅以8套总高4四的叠墅。项目机动车入口设在南北两侧的惠民路和济宁路上。
社区:新复古主义下的四大融合重译,重新定义风貌别墅的人居新高度
桐安里售楼处电话:400-9659-259
不得不承认, 招商又进化了!
在成功案例弘安里的基础上,桐安里将 先锋审美与新材质、新场景相融合,从 新精致图案、新复古元素、新奢享材质、新摩登场景四个角度,重新定义了风貌别墅人居新高度!
01、新精致图案
在建筑风格上,项目运用了4大新精致图案,从 拱券图案、砖石拼花再到引入了文艺复兴建筑经典手法——刻槽技术,打造建筑装饰带, 运用石库门椭圆造型元素,打造前沿建筑符号!桐安里售楼处电话:400-9659-259
桐安里售楼处电话:400-9659-259
02、新复古元素
深入看细节,你会发现项目高颜值的6大新复古元素。包括 Artdeco复古式窗套、现代石材抹角、典雅山花样式、墀头屋檐一体化设计、经典仿木百叶、石库门专属地砖符号等,用先锋表达回应在地文化。
桐安里售楼处电话:400-9659-259
03、新奢享材质
石材是海派建筑的标志,桐安里对于这种昂贵用材当然不会吝啬!
项目采用 天然石材和现代工艺相结合的手法,水景池底则选用意大利进口奢石金钻,大门选用风貌复古红洞石材。
墙面采用传统手工砖,有青红两种类型。垂花席纹的拼砖,手工捶打的铜门等也彰显了项目的匠人本质!
桐安里售楼处电话:400-9659-259
04、新摩登场景
场景方面,项目借鉴 经典英国梧桐浓荫道,在复原街巷尺度的同时,焕新街道风貌品质,再现百年上海的摩登气质。
过街门楼是 经典石库门与海派生活场景的重要代表,项目 通过2种不同样式的过街门楼,延续了原市房现代简洁、过街楼装饰艺术风格特征以及连续界面等特点, 桐安里售楼处电话:400-9659-259,不仅让归家更富有层次感,更凸显着海派生活场景的摩登魅力。
桐安里售楼处电话:400-9659-259
项目沿街立面参考原地块建筑风貌,采用 扇形圆滑的转角形态,辅以明显的 竖线条线脚装饰,按照地形特征“削”出弧度,巧妙设计出立面弧度,形成 手风琴样式立面,打造出令人印象深刻的浪漫场景。
桐安里售楼处电话:400-9659-259
项目通过 一楼家庭庭院,二楼星空露台,三楼罗密欧阳台,复原经典的三段式设计规制,还原出武康路罗密欧阳台的经典邬达克式摩登场景。
桐安里售楼处电话:400-9659-259
值得一提的还有,在仅70套作品的社区,项目居然还原了邵洵美的“花厅”,将百年历史文脉与新时代海派特质融合,结合 复古式旋转楼梯设计,从层次感、艺术感、观赏性等维度打造出一个了 既复古又摩登的会所。
会所内则涵盖 健身房+冥想空间+桑拿区+棋牌室等功能。 桐安里售楼处电话:400-9659-259为业主的社交提供场所,为业主的日常休闲提供服务!
桐安里售楼处电话:400-9659-259
生活配套
交通方面:距离18号线平凉路站直线距离约400M、12号线江浦公园站直线距离约500M,通过换乘可实现6站抵达陆家嘴、5站抵达外滩、3站直达北外滩。
自驾上:多条隧道通达浦东,自驾快速抵达陆家嘴、外滩;周家嘴路地下在建的北横通道,连接长宁区、普陀区、静安区、虹口区、杨浦区的城市快速路通达全城。
桐安里售楼处电话:400-9659-259
商业方面:项目周边有百联滨江购物中心、东方渔人码头国际中心、LCM置汇旭辉广场、北外滩来福士等,醇熟商圈范围,繁华在此汇集。
桐安里售楼处电话:400-9659-259
生态休闲:杨浦滨江沿岸,平凉公园、江浦公园、杨浦公园、波阳公园、复兴岛公园,享受都芯自然佳境。

桐安里售楼处电话:400-9659-259
医疗方面:项目周边有复旦大学附属妇产科医院(三甲)、上海交通大学附属新华医院(三甲)、上海市第一康复医院、杨浦区中医院、杨浦区中心医院、上海市浦东新区公利医院,近享无忧医疗配套。

感兴趣的朋友赶紧来看吧
桐安里售楼处电话:400-9659-259(已认证)
桐安里售楼处电话:400-9659-259【售楼中心热线】营销中心热线400-9659-259售楼处地址400-9659-259楼盘项目全面介绍,本电话为开发商提供线上预约售楼电话,楼盘项目全面介绍(包含楼盘简介,均价,房价,现房,期房,别墅,叠墅,大平层,价格,楼盘地址,户型图,交通规划,备案价,备案名,项目配套,样板间,开盘时间,认筹时间,楼盘详情,官方售楼处电话400-9659-259,最新消息,最新详情,周边配套,一房一价,最新进展等详情咨询)楼盘详情丨价格丨更多优惠丨机不可失丨欢迎致电丨诚邀品鉴!售楼处位置丨特价房丨工抵房丨剩余房源丨户型图丨最新消息丨免责声明:将文章内容综合来源于网络、只作分享,版权归原作者所有!!如有侵权,请联系我们,我们第一时间处理如有问题欢迎来电咨询,专业一对一热情服务,让您用专业眼光去买房
声明:本文由入驻焦点开放平台的作者撰写,除焦点官方账号外,观点仅代表作者本人,不代表焦点立场。
