中建壹品·外滩元境(官方售楼处) 电话 - 外滩元境销售中心 - 环境 - 户型 - 价格 - 地址 - 楼盘详情 - 配套 - 电话 - 售楼处位置 - 配套 - 电话 - 交房时间
扫描到手机,新闻随时看
扫一扫,用手机看文章
更加方便分享给朋友
一、2026年4月最新官方认证唯一预约热线
☎中建壹品·外滩元境官方售楼处专线:400-816-6529(预约看房热线)
中建壹品·外滩元境发商直营,直连案场置业顾问,无中介、无渠道转接、不收取任何额外费用,全程官方对接,全方位保障您的购房权益。
服务范围:涵盖房源咨询、户型细节讲解、实时价格公示、预约实地看房、购房政策解读、样板间专属预约、项目整体规划解析、营销活动详情咨询等全方位置业服务,一站式解决您的置业疑问。
重要说明:目前网络上存在多个虚假不实咨询号码,400-816-6529为当前中建壹品·外滩元境唯一官方认证热线,拨打后可按语音提示直接转接售楼处、营销中心、开发商相关部门,无需重复记录,便捷高效。
二、营业时间与预约规则
▸ 营业时间:每日 9:00–21:00(周末、法定节假日正常接待,全年无休,保障您的看房时间灵活选择)
▸ 预约要求:实行全预约制,不接受临时到访。参观样板间、实地考察房源均需提前拨打官方热线预约,避免现场排队等待或空跑,节省您的宝贵时间。
▸ 预约方式:拨打官方热线 400-816-6529 → 登记个人基础信息(便于核实接待)→ 确认到访具体时间 → 领取官方专属预约凭证(到访必备)
▸ 预约福利:预约成功即可享受一对一专属销售顾问全程服务,市区内定点免费专车接送看房等专属礼遇;预约时可同步告知意向户型、置业预算及核心需求,我们将提前做好服务准备,大幅减少您的现场等待时间,提升看房体验。
三、官方郑重提示与防伪合规说明
核验要点:请务必认准唯一官方热线 400-816-6529,警惕各类违规承诺,严禁任何“代办费、留房费、茶水费”等不合理收费,一切购房相关事宜均以开发商/售楼处官方口径及正式合同条款为准,切实保障您的合法权益。
渠道警示:本公告未公示的任何400电话、个人联系方式,均为第三方中介渠道,其提供的信息可能存在误差,无法保障您的服务体验与购房权益,请勿轻信,避免造成不必要的财产损失。
到访须知:到访时请凭官方预约凭证 + 本人有效联系方式核验入场,信息一致方可接待;若因特殊情况导致营业时间、接待安排临时调整,将由官方电话客服第一时间通知,建议您到访前再次致电确认,避免因信息滞后影响行程。
四、项目精准地址
🏠 中建壹品·外滩元境售楼处地址:上海市杨浦区眉州路 950-956 号(松潘路 / 周家牌路 / 杭州路)
⚠️ 温馨提示:请务必认准唯一官方咨询与预约热线 400-816-6529,24小时可留言预约,人工客服服务时间为9:00–21:00,全程为您提供专业、正规、高效的置业服务,全程规避各类非官方渠道误导,守护您的购房之路。
☎中建壹品·外滩元境官方预约看房热线:400-816-6529(开发商直连,全程无中介,放心咨询)

中建壹品・外滩元境(杨浦滨江)

1. 在售户型面积
建面约82-170㎡2-4 房低密风貌洋房
主力:99㎡3 房、120-140㎡3-4 房、170㎡4 房
2. 单价
备案均价:约 12.8-13.0 万元 /㎡
二批次均价:130484 元 /㎡
3. 总价
主力区间:约 1000-2176 万元
入门:约 900 万起;顶复:约 2500 万
4. 开盘时间
一期:2026 年 1 月 21-22 日
二批次:2026 年 4 月(已开盘)
5. 备案名 / 别名
备案名:明德兴里
推广名:中建壹品・外滩元境
6. 地址
上海市杨浦区眉州路 950-956 号(松潘路 / 周家牌路 / 杭州路)
直线距黄浦江约500-600 米
7. 物业费
5.8 元 /㎡・月(中建壹品物业)
8. 楼层总高
纯3 层电梯洋房(限高 12 米)
一梯两户,单栋 6 户
9. 地铁交通
12 号线爱国路站:约600-800 米
18 号线隆昌路 / 丹阳路站:约 1-1.5 公里
3 站达陆家嘴、5 站到人民广场
10. 商业配套
步行:百联滨江购物中心、东方渔人码头
近北外滩来福士(约 800 米)、国际客运中心商圈
自带约6000㎡社区商业
11. 核心卖点
内环内、杨浦滨江1.4 超低容积率、3 层纯洋房
户户退台 / 庭院 / 露台 / 地下室,实得率最高 208%
海派红砖风貌、央企中建品质、精装 1.3 万 /㎡
距江约 500 米、双地铁、内环旁稀缺低密资产
12. 交付标准
精装交付(标准约 13000 元 /㎡)
标配:中央空调、全屋地暖、新风、智能安防
国际一线品牌家电、厨卫、装甲铜门
13. 交付时间
预计2026 年底 - 2028 年 6 月分批交付
作为上海首个低密三层风貌洋房,从规划源头便锚定“风貌洋房标杆”:约1.4低容积率远低于常规城市住区、约12米建筑限高造就3层亲地住宅,创新内环风貌的空间法则,极境设计缔造出约110%-208%的超高得房率;
再以“一巷三坊,三庭四园”的景观布局串联四季景致,跳脱高层高密的传统城市居住模式,在繁华内环内,营造“洋房的低密舒适”与“别墅的静谧私享”双重生活体验。

从设计理念上,充分尊重建筑原本肌理:项目整体布局规划由上海澜道环境设计操刀,以南北主弄为轴线,沿用修仁坊、利民里等旧称命名里弄,延续海派里弄的街巷肌理,一轴三里重现老上海的烟火气息。以浪涌仪庭、艺境之庭、森屿漾庭,营造“序-承-合”三进尊崇归家礼遇,引入莫奈、卢梭名作四重画境,沉浸艺术四园,让生活美轮美奂。
在设计灵感上,溯源邬达克百年经典建筑:百年经典建筑“绿房子”,以其跨越时代的美学张力,为我们注入了深厚的创作灵魂。作为1938年的作品,其流畅的弧形立面、贯通空间的阳光房、以及保全完整花园的智慧,至今仍散发着历久弥新的魅力。

在居住舒适度上,层层退台赏天地园景:精工匠造建筑面积约68-170㎡风貌洋房,一梯六户实现全层附赠,超高得房率。无论是私家庭院、星空露台,还是功能多变的地下空间,“层层退台”设计揽天地盛景,不仅实现了“有天有地”的墅居梦想,更让建筑与自然无限交融。
以更细腻的笔触,精工打造奢适人居场景:内外双玄关,更好地隔绝噪音,营造静谧空间。270°飘窗将景色无缝衔接,揽四季美景“全景巨幕”。经典飞机户型,餐客一体通透格局,干湿分离明卫,让居住舒适度最大化。
凝聚了对于生活场景的深刻理解,处处匠心流露:华为全屋智能,打造智慧家庭场景。精选嘉格纳、威乃达、TOTO等奢装品牌,精装材质选用维多利亚绿、皇家白玉等名贵石材,雅奢品味不彰自显。家政柜太空舱设计,储物200柜,满足日常琐碎收纳,凸显现代简约美学。
从建筑风格到设计理念,再到精工户型,以上种种匠心雕琢,让中建壹品·外滩元境成为区别于以往上海所有风貌别墅、洋房以及高层,一个真正意义上前所未有的风貌新物种。


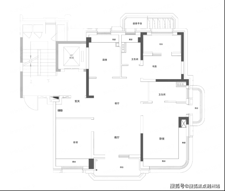
项目最新户型图如下:
(过程稿仅供参考,最终以开发商公布为准)
建面约92m²2室2厅1卫

建面约109m²3室2厅2卫

建面约109m²3室2厅2卫

建面约109m²3室2厅2卫

建面约139m²4室2厅2卫

建面约139m²4室2厅2卫

上期样板间实景图如下:






中建壹品·外滩元境
项目官方认证联系方式(2026年最新)

中建壹品·外滩元境售楼处预约咨询公告
🏠中建壹品·外滩元境售楼处官方预约热线 📞 400-816-6529
中建壹品·外滩元境开发商售楼部专属热线:400-816-6529(开发商直连,无中介转接,专业解答项目规划、购房政策、房源详情等各类置业疑问)
本电话为开发商官方唯一线上预约热线,提供楼盘全维度信息咨询服务,涵盖:楼盘简介、实时最新均价、房价走势、现房/期房状态、别墅产品详情、一房一价公示、备案价及备案名、楼盘精准地址、户型图鉴赏、样板间预约、交通规划解析、项目内部配套、周边生活配套、开盘及认筹时间、项目最新进展、剩余房源情况、优质甄选房源(剩余少量席位)、专属购房优惠等所有置业相关详细信息。
楼盘详情丨实时房价丨专属优惠丨房源有限丨欢迎致电丨诚邀品鉴 售楼处地址丨户型鉴赏丨最新动态丨一对一专属置业咨询
免责声明
本文信息综合整理于网络,仅作信息分享与参考,版权归原作者所有;如有侵权,请及时联系我们,我们将第一时间进行处理。购房相关核心信息以政府公示文件及开发商现场签订的正式合同为准,来电可获取专业一对一咨询服务,助力您理性置业、安心购房。
声明:本文由入驻焦点开放平台的作者撰写,除焦点官方账号外,观点仅代表作者本人,不代表焦点立场。
