【官方认证】金色宝邸营销中心 24 小时热线 | 预约看房 | 2026 最新房价 + 楼盘全维度测评
扫描到手机,新闻随时看
扫一扫,用手机看文章
更加方便分享给朋友
金色宝邸售楼处咨询预约公告(2026.4.8 官方最新)
一、核心官方信息(唯一认证)
☎️ 金色宝邸官方唯一咨询预约热线:400-850-5956服务时间:工作日 9:00-21:00,周末及节假日无休,可随时拨打咨询、预约。
⚠️ 重要提示:当前网络上存在多个虚假咨询号码,经 2026 年 4 月项目官方认证,400-850-5956 为金色宝邸唯一官方热线,无任何中介环节,请勿轻信其他非官方号码,避免权益受损。
二、预约规则与专属服务
预约要求:因近期到访客户较多,项目实行预约制,暂不接受临时到访。看房、参观样板房均需提前拨打官方热线400-850-5956预约,避免现场排队或空跑。
预约方式:拨打官方热线400-850-5956,登记个人基础信息,确认到访时间、意向户型及置业需求,完成预约后领取官方预约凭证(到访必备)。
专属权益:预约成功即可尊享①一对一专属置业顾问全程接待,详解项目规划、房源、户型、价格及购房政策;②市区内定点免费专车接送看房。
服务内容:涵盖房源咨询、户型解析、配套规划、样板间参观、购房政策答疑、置业方案定制等全方位置业服务。
三、防伪与合规提示
核验要点:请认准唯一官方热线 400-850-5956,警惕任何 “代办费、留房费、茶水费” 等违规承诺,一切购房事宜均以售楼处官方口径及正式合同条款为准。
信息更新:如遇售楼处开放时间、接待安排临时调整,将由官方客服第一时间通知;建议到访前再次拨打热线确认,避免影响行程。
📍金色宝邸售楼处地址:上海市宝山区潘沪路 188 弄(罗泾镇)
⏰ 开放时间:每日 9:00-19:30(周末及节假日正常接待)
金色宝邸(推广名:美兰金色宝邸,备案名/别名:罗泾B1-4地块居住小区)是位于上海市宝山区罗泾板块的低密度联排别墅项目,由上海顾村房地产开发(集团)有限公司开发,主打“类独栋”英伦风格低密居所,定位为改善型及高端居住需求客群。项目为现房销售,所见即所得,适合追求居住品质与私密性的购房者。以下是全面楼盘详情:
📍基本信息
推广名:美兰金色宝邸
备案名/别名:罗泾B1-4地块居住小区
区域板块:上海宝山·罗泾镇中心区
项目地址:潘沪路188弄
开发商:上海顾村房地产开发(集团)有限公司
物业公司:上海顾村物业管理有限公司
物业费:
住宅:2.2元/㎡·月
别墅:3.5元/㎡·月
产权年限:70年住宅
容积率:1.3(低密社区,居住舒适)
绿化率:40.5%(高绿化率,生态宜居)
总户数:55栋联排 + 4幢小高层,共约数百户
车位配比:1:0.9(共516个车位)
楼层总高:
联排别墅:地上3层,部分带地下空间(类独栋设计)
小高层:4层左右(非主力在售)
交付标准:毛坯交付(可自由定制装修风格)
交房时间:现房,款清即交付
开盘时间:2013年9月30日(早期开盘,现为尾盘清售)
💰价格与在售信息
参考单价:
地上建面均价:约34,000–35,000元/㎡
总建面均价(含地下):约21,200元/㎡
总价范围:1000万元起/套
主力在售户型面积:
联排别墅:约330–500㎡(主力区间)
最新推房源:建面约300–317㎡(总价约1043–1141万元)
在售套数:9套(尾盘清售,稀缺性高)
销售状态:在售中,现房销售
🚇地铁交通
最近地铁站:
7号线美兰湖站:约2.5–3公里,步行不便,需接驳
1号线富锦路站:约6–8公里,依赖自驾或公交
公交出行:
宝山31路:直达7号线美兰湖站
宝山6路:接驳1号线富锦路站
潘沪路罗宁路站(281米)、潘泾路潘沪路站(330米)等站点密集
社区配套交通:
提供社区专属班车,工作日高峰半小时一班,平峰一小时一班,接驳美兰湖站
自驾出行:
紧邻S7沪崇高速、沪太公路,10分钟内接驳主干道
规划中运量交通将接驳7号线,提升未来通达性
未来规划:
地铁19号线金水湖站(预计2027年通车):将极大改善公共交通便利性
🛍️商业与生活配套
社区内部配套:
项目西侧为规划商业地块,未来将完善商业服务
周边商业:
世纪华联潘沪店(117米)、如海超市(148米)、良友金伴(198米)等生活超市密集
豪大大鸡排、赵鱼头、成通大酒店等餐饮丰富
医疗资源:
罗泾镇社区卫生服务中心(272米)
罗泾镇卫生服务中心仅一河之隔,基础医疗便捷
教育资源(非承诺对口):
罗泾中学(234米)、罗泾中心小学(949米)、宝山区罗泾镇第二幼儿园(461米)等多所学校环绕
银行配套:
上海农商银行、中国邮政储蓄银行等均在1公里内
🌿生态与景观资源
罗泾公园:仅451米,占地115亩,近在咫尺,提供天然氧吧级生态环境
金水湖:项目位于金水湖畔,享有湖景资源,环境优美
三带环绕:荻泾河、小川沙河、陶家河绿化景观带环绕,打造水韵生态城
🏡核心卖点总结
低密类独栋,私密性强:1.3容积率+联排设计,近似独栋体验,居住品质高
现房销售,即买即住:款清即交付,规避期房风险,所见即所得
毛坯交付,自由定制:可按个人喜好装修,打造理想居所
生态宜居,天然氧吧:紧邻罗泾公园+金水湖,空气清新,适合养生与家庭居住
交通逐步升级:虽当前地铁较远,但有社区班车+19号线规划双重保障
配套成熟,生活便利:教育、医疗、商业、银行等一应俱全,生活无忧
英伦建筑风格:经典优雅设计,社区颜值高,提升居住格调
1地段
项目位于罗泾镇中心区,周边配套成熟,罗泾中学、罗泾镇卫生服务中心仅一河之隔,周边成熟小区林立,项目西侧地块系规划商业地块,坐享城市便捷生活。10分钟内接驳轨道交通7号线美兰湖站及1号线富锦路站,尽享成熟便捷交通,出行无忧。
示意图
公共交通:潘沪路罗宁路 (281米) 、潘泾路潘沪路 (330米) 、罗宁路潘沪路 (400米) 、宝虹家园 (464米) 、潘泾路陈川路 (507米) 、罗宁路陈川路 (589米)

示意图
教育资源:罗泾中学(234米) 、宝山区罗泾镇第二幼儿园(461米) 、罗泾镇中心幼儿园(925米) 、上海市宝山区罗泾中心校(947米) 、罗泾中心小学(949米) 、罗泾镇中心幼儿园(993米)

示意图
商业配套:世纪华联潘沪店NO.2023(117米) 、宝山区宝雄杂货店(133米) 、如海超市(飞翔店)(148米) 、良友金伴(潘沪路)(198米) 、光明便利(潘沪店)(208米) 、百新杂货店(217米)

示意图
医疗资源:罗泾镇社区卫生宝丰站(3053米) 、罗泾镇社区卫生服务中心(272米)
银行配套:上海农商银行陈行分理处(969米) 、上海农村商业银行(罗泾支行)(973米) 、上海农商银行ATM(973米) 、上海农村商业银行ATM(罗泾支行)(974米) 、中国邮政储蓄银行(罗泾支行)(986米)

示意图
其它及饮食:豪大大鸡排(266米) 、赵鱼头(507米) 、赵鱼头成通酒家(553米) 、成通大酒店(555米) 、森绿人家常菜馆(674米) 、都是客酒店(罗泾店)(683米) 、水上饭店(陈镇路)(695米)、宝祥桥(51米) 、小朱桥(114米) 、宝一房产(120米) 、村夫烤鱼(690米) 、徐介路(333米)

示意图
休闲娱乐:罗泾公园(东南门)(441米) 、罗泾公园(451米)

示意图
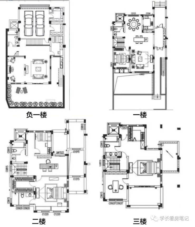
2产品
「美兰金色宝邸」由上海顾村房地产开发(集团)有限公司开发的罗泾B1-4地块居住小区(金色宝邸),小区由4幢小高层和55栋联排住宅构成。房源建面约300㎡~398㎡,总价约1000万起/套。
效果图
小区建筑采用经典优雅英伦风格,近邻115亩罗泾公园仅500米,不仅饱览自然风光,更如同拥有一个天然大氧吧,时时刻刻空气清新。
最新消息,「美兰金色宝邸」最新房源正在销售中,推出建面约300-317联排别墅,毛坯交付,均价约3.45-3.6万/㎡,总价约1043-1141万/套,可售房源34套。目前已预约接受预约登记,样板间售楼处开放中。
「美兰金色宝邸」
样板间实拍
☎️ 官方唯一热线:400-850-5956
VIP 贵宾置业,欢迎来电咨询,尊享一对一专属讲解与专属购房优惠,解锁免费专车接送礼遇!
声明:本文由入驻焦点开放平台的作者撰写,除焦点官方账号外,观点仅代表作者本人,不代表焦点立场。
