保利外滩序售楼处电话_上海杨浦保利外滩序首页网站-2025最新价格 | 户型图-保利外滩序楼盘配套_容积率-小区环境_售楼处营销中心
扫描到手机,新闻随时看
扫一扫,用手机看文章
更加方便分享给朋友
上海杨浦保利外滩序售楼处电话:400-9966-224✔✔【预约热线】保利外滩序售楼处营销中心:400-9966-224保利外滩序售楼处电话/地址☎:4009966224(开发商热线)如有问题欢迎来电咨询,专业一对一热情服务,让您用专业眼光去买房。
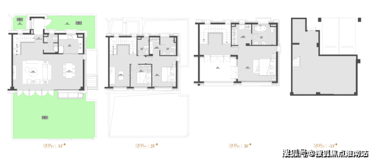
杨浦内环内12号线/18号线江浦公园站「保利外滩序77」推出建面约100-145㎡3-4房预计三季度入市!
项目预计推出建面约102-145㎡3-4房,过程稿户型图可以参考如下:
面对这一块天赋异禀的地块,保利因地制宜把产品力发挥得淋漓尽致。
内在,突破了传统风貌的瓶颈,有了颠覆性的构造;外在,更好地传承了历史韵味。
首先,对我冲击力最大的莫过于室内空间的尺度感和舒适度。
以下以建面约210㎡2层风貌住宅样板间为例:
冲击点1:面宽约11.3米,通透力MAX。
项目面宽做到风貌中罕见的三开间朝南,尺度达惊人的11.3米,其中客厅还是大横厅,带来更丰富的生活场景,一场生日舞会、一个小型展览、一次品酒会...这个大横厅都能承载。


样板房实景
同时一层卧室L型布局,卧室多面采光,也可多角度欣赏院中的人和景,增加了互动。
另外得益于大面宽,室内采光、通透性很强。

样板房实景
冲击点2:户均前庭后院,拥超尺度花园。
项目主力户型的高附赠花园面积集中在约61-108㎡不等,且是南北双花园,堪称风貌界独一档的附赠。
样板房实景

超尺度花园赋予生活更多可能:父母莳花弄草的乐园、孩子的自在天地、先生的社交主场、太太的浪漫花园……房前屋后满载全家人欢乐时光。
冲击点3:超高附赠,项目2层3层风貌享5层空间感
项目二层大主卧,空间感、仪式感满满。
样板房实景
还带大露台,在增加使用面积的同时更亲近自然,眼前就是花草树木的绿意和四季变换。

样板房实景
顶层空间在孟莎式屋顶+老虎窗加持下,采光和实用性都非常好,小胖君身高1米75,在过道上可以站直。它可以是一处气质独特的书房,也可以是储物柜或衣帽间。
地下室层高约3.9-5.7米,格局方正完整、利用率高,附赠面积约50-135㎡,业主可以充分发挥想象力。
比如,摆满各种健身器材的健身区、铺满镜子的舞蹈室、私密静音的钢琴房、放松身心的SPA区,甚至私人酒窖、雪茄室…一切都随心所欲。
此外,二层还有一间灵动空间,可以是女王化妆间、画室、甚至主人工作室。
冲击点4:窗墙比非常高
项目一层和二层立面使用大量铝合金长窗,造型更摩登的同时,也赋予建筑更高窗墙比,进一步加强室内通透采光。
项目效果图过程稿
冲击点5:卧室空间全部朝南
最后,项目把面宽充分利用的一个闪光点就是,把卧室类的空间都安排在南侧,采光更好,也能直面南花园。
BUND45风貌主力户型图如下:


其次,独特美学立面,细节之处都是历史韵味。
在这背后,是保利对于在地文化的深刻研究和传承创新。
有一句话说得好:“建筑不是简单的复刻,也承载情感与记忆的复兴。”
保利在传统中继承,在传承中创新,除了刚才说过的木构件按原样式用现代材料复原,对于卵石外墙、红瓦屋面、南坡举折和烟囱等,也按原样式制作,提升了风貌整体的文化品位。
项目效果图过程稿

这其中,每一个细节都凝聚着保利匠人的初心与执着,管中窥豹:
比如为了还原卵石立面,保利一方面通过大量研究建筑文献和上海老建筑资料,经过无数轮的打样比选、与上海经典卵石项目——思南公馆的实地比对,寻访思南公馆同源卵石。

思南公馆实景图
另一方面,卵石立面作为上海“非遗”级别工艺,只能纯手工打造。据悉,保利为更好还原时间韵味,卵石会被多次水冲,做出凹凸感,再用仿古刷打磨,整个过程极度耗费人力和心力,一个工人一天只能作业5个平方左右,但为了达到最完美的状态,保利愿意这样做。
(信息来源:卵石立面工艺2018年被列入上海市非物质文化遗产代表性项目名录)
这才有把思南公馆“搬”到了杨浦滨江。
像这样的细节,还有很多,皆是保利刻意为之。
它不仅代表着高成本的投入,更是保利产品主义的直接体现,即便先天条件如此优越,但依旧对自己要求非常高,产品打造严苛到骨子里。
而这种力求完美的态度,不计成本、不计付出的用心,才是让社区历久弥新的保障。
项目实景图
总的来说,产品亮点实在太多,绝对值得你去现场好好感受一番。
小胖君可以负责任地说,在当下上海楼市,项目花园里弄风貌的稀缺性,奢阔面宽、超尺度花园等带来的空间差异性,以及卵石立面风格的独特性,市场前所未见!
它的呈现需要开发商和地块天赋的合力,你在上海可能再也找不到第二个外滩序风貌,它代表的就是当下风貌界产品力高峰!
或许,这才是鼎级风貌该有的样子!

约500米滨江,私藏黄浦江的惬意
更处在上海仅有的一条滨江风貌带上
项目还有一个很打动我的地方:
区别于传统风貌的高墙深院,BUND45风貌用了更多镂空栏杆,这就将景观效用最大化,让居住环境拥有更大的空间连续性,更亲近自然。
我想,这也代表了项目主张的一种生活方式:融合。
当然,不止与自然绿化相融,BUND45亲江约500米,相当于私藏了黄浦江的惬意。
未来,业主们下楼散步到江边,就能享受滨江漫步道、骑行道,在公园放放空,吹吹江风,看着夕阳缓缓落下...
特别近年来,杨浦滨江文化地标如雨后春笋般出现,赋予这段滨江更为休闲、文艺的气质。
项目示意图

说到黄浦江,不得不说杨浦滨江有着上海仅有的一条滨江风貌住宅带。
一方面,我觉得这地方确实需要风貌住宅带,因为字节跳动、美团、哔哩哔哩等互联网大厂在此设总部,即将兑现,这批高能企业容易产生较多“资产大佬”,那需要与之身份、需求相匹配的高阶住宅,这条滨江风貌带可谓近水楼台。
项目示意图

何况杨浦滨江左手北外滩,右手陆家嘴,周边高净值人群非常多。
另一方面,滨江豪宅房价容易走出独立行情,黄浦滨江、陆家嘴、徐汇滨江等知名豪宅区都在滨江两岸,但它们都是高层,目前普遍挂牌15-20万/㎡。
那凭借更高阶的产品+更强的稀缺性,您认为这条风貌带会价值几何?
值得一提,项目还是少见的地铁风貌住宅,毗邻18号线丹阳路站,通过18号线,地铁4站世纪汇广场、5站陆家嘴。
自驾道路桥隧纵横,可通过大连路隧道、江浦路隧道、杨浦大桥、新建路隧道等便捷来往浦东。还近北横通道,不管到市中心还是浦东金桥方向,开车都很方便。
项目示意图

最后总结一下:
历史不会简单重复,但总押着相似的韵脚。
上一个百年,老洋房代表了上海居住价值的天花板。
因为它有着先天的稀缺性。
而如今,新一代世纪藏品出现了——保利·外滩序BUND45!
同样的先天稀缺,更特别的里弄类型和地段占位,更符合现代人居的产品设计!
下一个百年,或将是它走上历史新舞台。
现场实景曝光:
保利发展以152252万元竞得杨浦区C090202单元O2-07地块,溢价率16.27%,楼板价86037元/㎡。
该地块出让面积8192.66㎡,容积率2.16,计容面积17696.14㎡,限高60米。

中小套型住宅不低于50%,商品住宅全装修比例为100%,装修标准4000元/㎡,需配建5%保障房。
该地块出让面积8192.66㎡,容积率2.16,计容面积17696.14㎡,限高60米。
中小套型住宅不低于50%,商品住宅全装修比例为100%,装修标准4000元/㎡,需配建5%保障房。
该地块周边新房不少,北侧的中海海上和集均价约12.1万/㎡,南侧的保利琅誉均价约11.7万/㎡。
另外,杨浦滨江将有大量低密度历史风貌别墅区,拉动整个区域的圈层跃迁,营造更加统一的高净值居住氛围。
未来,这个区域文化、地标、产业以及高端圈层汇聚,非常值得期待。但这需要一段不短的时间去兑现。
交通配套:乘坐地铁12号线2站直达提篮桥(北外滩来福士广场)、3站直达国际国客中心(上海白玉兰广场)、7站直达南京西路、8站陕西南路(环贸iapam);
乘坐地铁18号线往北3站直达复旦大学、4站直达上海财经大学、往南3站昌邑路(可换乘14号线)、4站民生路(可换乘6号线)、7站龙阳路(可换乘2/7/16/磁悬浮)。
商业配套:紫荆广场(约1.3km)、宝地广场(约1.1km)、百联滨江购物中心(约1.4km)、瑞虹天地太阳宫(约2.1km)、北外滩来福士广场(约2km)、宝龙旭辉广场(约2.4km)、上海白玉兰广场(约3km);
医院配套:交通大学医学院附属新华医院(约1km)、上海中医药大学附属上海市中西医结合医院(约1.4km)、复旦大学附属妇产科医院(红房子医院);
休闲配套:江浦公园(一路之隔)、江浦恒温游泳健身俱乐部(约260米);
教育配套:明园村幼儿园(市一级园)、童乐幼儿园(高品质民办幼儿园);齐齐哈尔路第一小学(约420米)、长阳实验学校(原控江中学附属民办九年一贯制学校)、存志学校(约1km市知名民办中学)、控江中学(约1.8km市重点高中)。
上海杨浦保利外滩序售楼处电话:400-9966-224✔✔【预约热线】保利外滩序售楼处营销中心:400-9966-224保利外滩序售楼处电话/地址☎:4009966224(开发商热线)如有问题欢迎来电咨询,专业一对一热情服务,让您用专业眼光去买房。
声明:本文由入驻焦点开放平台的作者撰写,除焦点官方账号外,观点仅代表作者本人,不代表焦点立场。
