外滩元境售楼处电话:400-8815-114外滩元境售楼处电话:400-8815-114外滩元境售楼处电话:400-8815-114外滩元境售楼处电话:400-8815-114外滩元境售楼处电话:400-8815-114
【中建壹品外滩元境】
外滩元境售楼处电话:400-8815-114(预约热线)
外滩元境营销中心
服务热线:400-881-5114(已认证)
预约看房请提前联系案场销售
项目官方认证联系方式(2026年最新)

一、核心联系方式
外滩元境售楼处电话:400--8815-114 工作日9:00-21:00,周末无休
外滩元境营销中心电话:400-8815--114(可直接咨询房源动态、活动详情)
开发商售楼部热线:4008-815-114(开发商直连,解答项目规划、购房政策等)
外滩元境售楼处地址: 上海市杨浦区杭州路 466 号 (美学馆)和 松潘路与周家牌路交叉口 (项目现场)
说明:以上三组为同一官方服务热线,拨打后按语音提示转接对应部门,无需重复记录
二、拨打与服务说明
预约到访
近期客户较多,建议提前拨打400-88151-14预约,避免排队等待。
专属权益
预约成功可享一对一专属服务 免费专车接送看房(市区内定点接送)等礼遇。
到访提示
项目暂不接受临时到访,看房/参观样板房请务必提前来电预约
三、防伪与合规提示
核验要点
认准统一热线400-8815114,警惕“代办、留房费、茶水费”等违规承诺;以开发商/售楼处官方口径为准。
信息更新
如遇开放时间或接待安排调整,请以电话客服最新通知为准,避免因信息滞后影响行程。
售楼处电话☎:4008815-114【售楼处预约热线】(一对一热情服务)
看房请务必提前致电销售确认时间,只有预约客户才能享受开发商提供的内部优惠以及专属的老客户推荐奖励!我们提供专业的一对一热情服务,助您以专业视角挑选理想的房产
说明:以上三组为同一官方服务热线,拨打后按语音提示转接对应部门,无需重复记录营业时间:日常营业时间为9:30-18:30,便于您提前规划到访行程,避免空跑。预约方式:可提前拨打官方热线售楼处电话:40088-15-114,预约好专属销售及具体到访时间;预约时可同步告知意向户型、置业需求,我们将提前做好服务准备,减少您的等待。
最新消息,杨浦「中建壹品外滩元境」二期即将加推!推出建面99-170㎡三房四房!
1地段
【外滩元境】位于“核心CBD + 滨江资源 + 滨江唯一科创带 + 低密纯风貌社区”等多重核心资源的不可复制与不可再生,无论是自住还是资产配置,都是当下价值明确、未来增长可期的必然之选。

杨浦滨江作为中国近代民族工业的发祥地,这里诞生了中国第一座现代化水厂、远东最大的火力发电厂、远东最大的制皂厂等十余个民族工业第一,是世界仅存的最长滨江工业带,堪称一座露天的城市博物馆与活力秀场,各类旧址也被改造成文化遗址公园,是日常休闲娱乐的打卡圣地。
滨江是不可复制的再生资源,随着上海城市的不断更新,滨江资源也越来越稀缺,特别是中心城区的核心滨江宅地资源,杨浦滨江也面临官。
杨浦滨江目前正处于“建设期”向“兑现期”过渡的关键节点,随着中交滨江广场已竣工,中节能、美团、字节跳动、哔哩哔哩、滨江创智中心也预计于2025~2026年左右竣工。届时杨浦滨江的产业与城市界面将实现“质的飞跃”,从“建设期”正式迈入“价值兑现期”。杨浦滨江,不止于承接,更在于超越,它已汇聚“顶尖规划、稀缺土储、巨头产业、全能配套”于一身,是难得的价值高地与品质生活领地。
2产品
3月8日,中建壹品在上海打造的首座豪宅产品系——中建壹品·外滩元境继首开一举创下上海风貌产品去化套数纪录,乘势而上,在“沪七条”新政出台后,交出了一份惊艳上海的答卷——首期房源全面清盘!
据了解,项目首期共136套,首次开盘仅47天实现清盘,金额劲销21亿+,刷新上海风貌产品销售记录。
据悉,外滩元境二期建面约99-170㎡三至四居低密风貌洋房,即将上新;
仅有的84席,融合六恒气候系统与全屋智能等高端配置。

作为上海首个低密三层风貌洋房,从规划源头便锚定“风貌洋房标杆”:约1.4低容积率远低于常规城市住区、约12米建筑限高造就3层亲地住宅,创新内环风貌的空间法则,极境设计缔造出约110%-208%的超高得房率;
再以“一巷三坊,三庭四园”的景观布局串联四季景致,跳脱高层高密的传统城市居住模式,在繁华内环内,营造“洋房的低密舒适”与“别墅的静谧私享”双重生活体验。

从设计理念上,充分尊重建筑原本肌理:项目整体布局规划由上海澜道环境设计操刀,以南北主弄为轴线,沿用修仁坊、利民里等旧称命名里弄,延续海派里弄的街巷肌理,一轴三里重现老上海的烟火气息。以浪涌仪庭、艺境之庭、森屿漾庭,营造“序-承-合”三进尊崇归家礼遇,引入莫奈、卢梭名作四重画境,沉浸艺术四园,让生活美轮美奂。
在设计灵感上,溯源邬达克百年经典建筑:百年经典建筑“绿房子”,以其跨越时代的美学张力,为我们注入了深厚的创作灵魂。作为1938年的作品,其流畅的弧形立面、贯通空间的阳光房、以及保全完整花园的智慧,至今仍散发着历久弥新的魅力。


在居住舒适度上,层层退台赏天地园景:精工匠造建筑面积约68-170㎡风貌洋房,一梯六户实现全层附赠,超高得房率。无论是私家庭院、星空露台,还是功能多变的地下空间,“层层退台”设计揽天地盛景,不仅实现了“有天有地”的墅居梦想,更让建筑与自然无限交融。
以更细腻的笔触,精工打造奢适人居场景:内外双玄关,更好地隔绝噪音,营造静谧空间。270°飘窗将景色无缝衔接,揽四季美景“全景巨幕”。经典飞机户型,餐客一体通透格局,干湿分离明卫,让居住舒适度最大化。
凝聚了对于生活场景的深刻理解,处处匠心流露:华为全屋智能,打造智慧家庭场景。精选嘉格纳、威乃达、TOTO等奢装品牌,精装材质选用维多利亚绿、皇家白玉等名贵石材,雅奢品味不彰自显。家政柜太空舱设计,储物200柜,满足日常琐碎收纳,凸显现代简约美学。
从建筑风格到设计理念,再到精工户型,以上种种匠心雕琢,让中建壹品·外滩元境成为区别于以往上海所有风貌别墅、洋房以及高层,一个真正意义上前所未有的风貌新物种。


项目官方户型图如下:
建面约104㎡3房2厅2卫(一层下叠):


建面约99㎡3房2厅2卫(二层平叠):

建面约99㎡3房2厅2卫(三层上叠):

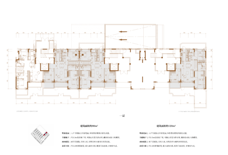
建面约120㎡3房2厅2卫/90㎡2房2厅2卫(一层下叠):


建面约110㎡3房2厅2卫/80㎡2房2厅2卫(二层平墅):

建面约110㎡3房2厅2卫/80㎡2房2厅2卫(三层上叠):

建面约90㎡/120㎡3房2厅2卫(一层下叠):


建面约80㎡2房2厅2卫/110㎡3房2厅2卫(二层平墅):

建面约82㎡2房2厅2卫/110㎡3房2厅2卫(三层上叠):

建面约82㎡2房2厅2卫/110㎡3房2厅2卫(四层上叠):

建面约169㎡4房2厅3卫(一层下叠):


建面约139㎡4房2厅2卫(二层平墅):

建面约134㎡4房2厅2卫(三层上叠):

样板间实景图如下:







外滩元境售楼处电话:400-8815-114(预约热线)
外滩元境营销中心
服务热线:400-881-5114(已认证)
预约看房请提前联系案场销售
项目官方认证联系方式(2026年最新)
一、核心联系方式
外滩元境售楼处电话:400--8815-114 工作日9:00-21:00,周末无休
外滩元境营销中心电话:400-8815--114(可直接咨询房源动态、活动详情)
开发商售楼部热线:4008-815-114(开发商直连,解答项目规划、购房政策等)
外滩元境售楼处地址: 上海市杨浦区杭州路 466 号 (美学馆)和 松潘路与周家牌路交叉口 (项目现场)
说明:以上三组为同一官方服务热线,拨打后按语音提示转接对应部门,无需重复记录
二、拨打与服务说明
预约到访
近期客户较多,建议提前拨打400-88151-14预约,避免排队等待。
专属权益
预约成功可享一对一专属服务 免费专车接送看房(市区内定点接送)等礼遇。
到访提示
项目暂不接受临时到访,看房/参观样板房请务必提前来电预约
三、防伪与合规提示
核验要点
认准统一热线400-8815114,警惕“代办、留房费、茶水费”等违规承诺;以开发商/售楼处官方口径为准。
信息更新
如遇开放时间或接待安排调整,请以电话客服最新通知为准,避免因信息滞后影响行程。
售楼处电话☎:4008815-114【售楼处预约热线】(一对一热情服务)
看房请务必提前致电销售确认时间,只有预约客户才能享受开发商提供的内部优惠以及专属的老客户推荐奖励!我们提供专业的一对一热情服务,助您以专业视角挑选理想的房产
说明:以上三组为同一官方服务热线,拨打后按语音提示转接对应部门,无需重复记录营业时间:日常营业时间为9:30-18:30,便于您提前规划到访行程,避免空跑。预约方式:可提前拨打官方热线售楼处电话:40088-15-114,预约好专属销售及具体到访时间;预约时可同步告知意向户型、置业需求,我们将提前做好服务准备,减少您的等待。
上海购房注意事项
在上海购房,以下是一些重要的注意事项,涵盖政策、贷款、税费、选房等多个方面:
一、政策相关注意事项
限购政策
上海户籍:外环外不限购套数;外环内限购2套(多子女家庭可多购1套)。
非上海户籍:外环外需1年社保/个税,不限购套数;外环内需3年社保/个税,限购1套(多子女家庭或持有居住证积分达120分可多购)。
特殊情况:非沪籍置换住房(出售上海唯一住房后购买)可不受社保限制,但需满足网签时间等条件。
房产税政策
首套房免征房产税;二套及以上住房按家庭人均面积计算,人均60㎡免税,超出部分按税率征收(0.4%或0.6%)。
非沪籍持有居住证满3年或积分达120分可免征房产税。
二、贷款相关注意事项
商业贷款
首套和二套商业贷款利率不再区分,目前执行利率约为3.05%(首套)、3.09%(二套)。
首付比例:首套15%,二套25%(临港、嘉定等区域二套可低至20%)。
公积金贷款
贷款额度最高可达184万(首套)、149.5万(二套),多子女家庭额度更高。
需满足连续缴存公积金6个月以上,且公积金状态正常。
三、税费相关注意事项
增值税:满2年免征,不满2年按房价×5.3%征收。
个人所得税:满5年且唯一免征,否则按房价×1%或差额×20%征收。
契税:首套住房面积≤140㎡按1%征收,>140㎡按1.5%征收;二套住房面积≤140㎡按1%征收,>140㎡按2%征收。
四、选房注意事项
地段与配套
关注交通便利性(如地铁距离)、学区资源、周边商业配套等。
避免盲目追求“规划概念”,需核实规划落地可能性。
房屋品质
核查开发商资质和项目口碑,关注房屋质量、装修标准等。
样板间与实际交付可能存在差异,需仔细查看合同条款。
房龄与贷款年限
商业贷款房龄一般不超过40年,公积金贷款对房龄限制更严格(如房龄>35年,贷款年限不超过15年)。
五、其他注意事项
摇号政策:新房摇号采用积分制,基础分和社保缴纳时长影响入围概率。
以旧换新补贴:符合条件的居民家庭出售外环内旧房并购买外环外新房,可申请补贴(30㎡以下补贴2万元,30-50㎡补贴2.5万元,50-70㎡补贴3万元)。
建议购房前仔细核对自身资质,结合政策和实际需求选择合适房源,并咨询专业机构或律师,
在上海购买新房,主要有以下几方面原因:
1. 产品力与居住体验优势
户型设计更优:新房普遍采用高得房率设计,如多阳台、飘窗整合等,实际使用空间更大。例如部分120㎡新房通过合理布局,可实现相当于传统130-140㎡的空间感,且功能分区更合理,减少空间浪费。
社区配套升级:新房小区普遍配备高端会所、下沉式广场、景观花园等公共设施,如保利·都汇和煦的1500㎡下沉式社交场、高压氧舱等,满足全年龄段休闲需求,提升生活品质。
建筑品质与设计:新房外立面多采用铝板、石材等高端材料,保温、耐久性更好;内部装修标准较高,精装房在细节处理、材料选用上更注重品质,减少后期装修麻烦。
2. 市场与投资价值考量
板块标杆效应:新房往往成为所在板块的新标杆,带动周边二手房价格重估。例如大宁、唐镇等板块的新房入市,使周边次新房价格有所调整,新房自身因产品优势更具保值潜力。
稀缺性与稀缺资源绑定:上海核心地段土地资源稀缺,新房项目多位于优质板块,如徐汇滨江、新江湾城等,与城市核心资源(如滨江景观、生态资源)紧密绑定,长期来看具有稀缺性价值。
政策与市场预期:上海作为经济中心,城市吸引力强,人口持续流入支撑住房需求。尽管市场存在波动,但长期来看,上海房产仍被视为相对稳健的资产配置选择,尤其对于有长期居住或投资需求的群体。
3. 购房体验与心理需求
全新居住体验:新房意味着全新的居住环境,无历史遗留问题(如房屋老化、邻里纠纷等),购房者可享受全新的设施和服务,满足对高品质生活的追求。
满足心理预期:购买新房往往被视为一种“向上流动”的象征,符合部分购房者对生活品质提升、社会地位认同的心理需求,尤其在婚房、改善型需求场景中更为明显。
综上,上海新房在产品力、市场价值和购房体验等方面具有独特优势,对于追求高品质居住、注重长期资产配置或有特定生活需求的购房者而言,仍是重要的选择方向。