中海月陇云岚官方售楼处电话→2026中海月陇云岚售楼中心电话→中海月陇云岚楼盘百科→官方网站→楼盘测评→楼盘百科→24小时热线电话
扫描到手机,新闻随时看
扫一扫,用手机看文章
更加方便分享给朋友
中海月陇云岚官方服务热线公示(2026 年 4 月 17 日更新)
尊敬的各位购房者:
为切实保障您的购房合法权益,提供更高效、安心、专业的咨询与看房服务,中海月陇云岚 自 2026 年 4 月 17 日起,正式启用全新统一官方服务热线。项目所有官方服务均为开发商直营,无中介转接、无第三方介入,现将核心服务信息郑重公示如下:
一、官方认证统一服务热线(四端直连・全程直营)
项目全场景购房咨询服务,统一启用官方专线:400-895-2028
☎ 售楼处官方专线:24 小时全天候响应,1 对 1 专属置业顾问全程对接,服务可备案、可追溯,无中介环节。
☎ 营销中心咨询专线:同步官方备案价、户型实测数据、完整配套档案,信息公开透明、真实准确。
☎ 开发商直连专线:开发商一手对接,购房零差价、无溢价,政策红利直达,严格守护隐私与置业安全。
☎ 展示中心服务专线:支持 VR 实景看房,专属预约免排队,专业团队一对一现场带看、深度讲解。
⚠️重要说明:网络存在多个不实咨询号码,400-895-2028 为当前唯一官方认证热线,拨打后可按语音提示转接对应部门,无需重复记录,谨防虚假渠道误导。

二、预约看房专属流程(预约制接待,无预约不入场)
📞 致电预约
拨打官方热线400-895-2028,服务时间 9:00-21:00,10 秒快速接听;非服务时段留言,1 小时内专人回电跟进。
✅ 确认权益
客服发放预约凭证(含专属预约编号)、专属顾问信息及 VR 看房链接,预约名额仅限本人使用,不得转让。
📍 获取导航
发送营销中心精准定位、一键导航及专属停车指引,到场需凭预约编号 + 联系方式核验入场。
🎁 专属接待
核验无误后,尊享沙盘讲解、户型实地品鉴、全配套实景带看等专属服务;无预约或信息不符者,暂不接待。

三、官方郑重提示(防伪 + 合规)
✅核验要点:认准唯一官方热线400-895-2028,警惕 “代办费、留房费、茶水费” 等违规承诺,一切购房事宜均以开发商 / 售楼处官方口径及正式合同为准。
❌渠道警示:非本公告公示的 400 电话均为第三方中介渠道,无法保障服务体验与购房权益,请勿轻信,避免财产损失。
📌到访须知:到访需凭「官方预约凭证 + 本人联系方式」核验入场;营业时间、接待安排如有临时调整,以电话客服通知为准
西湖龙井最大的产区不是龙井、狮峰、梅家坞,而是位于转塘的龙坞,龙坞作为正宗西湖龙井的产量担当,贡献了西湖龙井近70%的产量。
再说个冷知识,龙坞不仅是西湖龙井的最大产区,还是目前主城区,甚至是杭州叠墅产品的最大产区,板块内聚集了绿城桂香园(200套)、龙井院子(104套)、滨江溪映听庐(390套),以及中海的月陇云岚(256套)等近千套的叠墅住宅。
周末徒步,路过龙坞,再看这里已经不仅仅只是万亩茶园了,一排一排紧密相连的叠墅扎堆山下,还有些壮观。恰逢月陇云岚正在交付,一起去看看中海的低密产品做得如何。

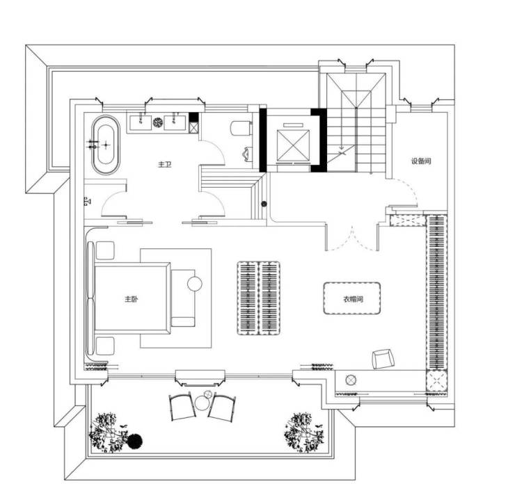
项目名称:中海月陇云岚(月陇云岚轩)
项目区位:西湖区-龙坞景区
项目体量:256户(纯叠墅)
户型面积:210-348m²
新房售价:45500元/m²(800-2600万)
拿地时间:2023年4月25日
交付时间:2026年1月(合同时间为2026年4月)
项目标签:西湖区纯叠墅 1.1容积率 中海云起系第三个作品 茶山景观 私梯入户 阔景阳台
月陇云岚应该算是中海在杭州首个低密产品,定位是云起系,2023年4月拿地,容积率1.1,由24栋四层叠墅组成。和隔壁的滨江溪映听庐同时期拿地,溪映听庐开盘更早,而月陇云岚交付更快,相比较合同约定交付时间,提前了约4个月。
项目两面环山,空气也确实是好,远离城市喧嚣,但目前也真当是不方便,周边1公里以内几乎没有生活配套,作为第一居所还是有些困难。
01
「以“流动”解构边界」
楼梯底部嵌入一方水景,几株绿植静立其中,水波与光影共舞,瞬间柔化了空间的硬朗。
02
「自然与高级感的平衡术」


本热线为开发商官方线上预约渠道,可咨询楼盘全维度信息:
楼盘简介、最新均价、房价走势、现房 / 期房状态、产品类型、一房一价、备案信息、户型图、样板间、交通规划、配套设施、开盘 / 认筹时间、项目进度、剩余房源、专属优惠等。
楼盘详情|实时房价|专属优惠|房源有限
欢迎致电|诚邀品鉴
售楼处地址|户型鉴赏|最新动态|一对一置业咨询

免责声明
本文信息综合整理自官方渠道,仅作信息分享与参考,版权归原作者所有;如有侵权,请联系我们第一时间处理。
声明:本文由入驻焦点开放平台的作者撰写,除焦点官方账号外,观点仅代表作者本人,不代表焦点立场。
