2025中海顺昌玖里(售楼处电话)首页网站-中海顺昌玖里售楼处地理位置-中海顺昌玖里_户型图_价格_中海顺昌玖里容积率_楼盘简介_小区环境_户型配套
扫描到手机,新闻随时看
扫一扫,用手机看文章
更加方便分享给朋友
中海顺昌玖里售楼处电话:400-891-9910
上海中海顺昌玖里售楼处电话☎:400-891-9910【开发商售楼处预约看房热线】(一对一热情vip服务)
看房前请提前拨打售楼处热线进行电话预约,进行预约的客户可享受开放商提供的内部优惠,一对一的vip服务让您更舒心更方便。

卓越的区位优势
稀缺的低密规划
完善的生活配套
对城市更新的深刻理解与实践
传承城市文脉 坐拥城市繁华
中海・顺昌玖里雄踞上海真正的城央烫金地段 —— 黄浦区新天地 。这里是上海的心脏地带,是城市繁华与历史底蕴的交融之所。周边汇聚了上海顶级的商业、文化、娱乐资源,成为无数人向往的生活主场。
上海中海顺昌玖里售楼处电话☎:400-891-9910【开发商售楼处预约看房热线】(一对一热情vip服务)

中海建国东路的69和70街坊历史风貌保护及城市更新项目,顺昌玖里源自两个地块的中轴道百年老街“顺昌路”,恒昌玖里则来自69街坊保留历史建筑“恒昌里”。这样的命名选择,传达了中海在历史风貌保护及城市更新项目中,对城脉与文脉的传承。上海中海顺昌玖里售楼处电话☎:400-891-9910【开发商售楼处预约看房热线】(一对一热情vip服务)

中海·顺昌玖里在“以传承开启新的传承”的理念指导下,致力于让风貌与繁茂并存,成为记忆中的烟火乡愁;让城市的历史遗产,成为公众的文化资产;让印刻时代的建筑得以存续,成为可阅读的漫步街区。
城市更新不是简单的“推倒重来”,要让城市的空间留住城市的温度,中海·顺昌玖里和中海·恒昌玖里,将为上海中心城区注入新的活力。上海中海顺昌玖里售楼处电话☎:400-891-9910【开发商售楼处预约看房热线】(一对一热情vip服务)

上海中海顺昌玖里售楼处电话☎:400-891-9910【开发商售楼处预约看房热线】(一对一热情vip服务)
以传承开启新的传承
在城市烟火中历久弥新

材质方面,中海顺昌玖里风貌别墅以砖、石为主材。
上海中海顺昌玖里售楼处电话☎:400-891-9910【开发商售楼处预约看房热线】(一对一热情vip服务)
项目严格测量原地块内建筑的砖块尺寸,保证大多数砖都与百年前的砖块尺寸一致。同时通过现代建筑科技,研发出了一套专业的排砖系统,让砖墙的颜色排序更加符合现代审美。

上海中海顺昌玖里售楼处电话☎:400-891-9910【开发商售楼处预约看房热线】(一对一热情vip服务)
如果说砖赋予生活烟火气,那石材的应用则让中海顺昌玖里拥有了历久弥新的质感。

风貌别墅的美不止于材料的不同,更体现在建筑艺术的呈现上。
石雕艺术是建筑艺术的典型代表。顺昌玖里在研究了大量的历史文献,并实地走访了众多老上海里弄建筑遗存后,选用“中国传统纹样、西方古典主义风格、西方Art-Deco风格”三大类雕花设计风格。
上海中海顺昌玖里售楼处电话☎:400-891-9910【开发商售楼处预约看房热线】(一对一热情vip服务)
在窗下装饰、建筑栏杆、烟囱、风帽等细节的打造中,项目团队同样秉承“以传承开启新的传承”的理念,在汲取传统设计精华与亮点的同时,通过对细节的再造与升级,让其带来更为长久的舒适。

上海中海顺昌玖里售楼处电话☎:400-891-9910【开发商售楼处预约看房热线】(一对一热情vip服务)


综合来看,对于热爱海派文化,向往石库门居住体验的Old money买家来说,中海顺昌玖里确实具备极强的吸引力!
社区景观



上海中海顺昌玖里售楼处电话☎:400-891-9910【开发商售楼处预约看房热线】(一对一热情vip服务)
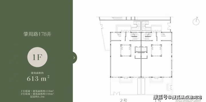
户型图参考
392㎡

上海中海顺昌玖里售楼处电话☎:400-891-9910【开发商售楼处预约看房热线】(一对一热情vip服务)


613㎡






622㎡




上海中海顺昌玖里售楼处电话☎:400-891-9910【开发商售楼处预约看房热线】(一对一热情vip服务)
生活配套完善 全方位呵护生活
商业资源:中海环宇荟、恒基・旭辉天地、LuOne 凯德晶萃广场、无限极荟购物中心、湖滨道购物中心等多个大型购物中心环绕四周。
文化娱乐:区域内涵盖了 9 家电影院、7 家大剧院、7 家博物馆、3 家音乐厅、20 家酒吧、3 大文化演出厅以及 15 家国际美食餐厅 。上海文化广场、上海博物馆、上海音乐厅等文化地标近在咫尺。
交通出行:中海・顺昌玖里拥有无可比拟的优势 。项目周边四条地铁线路加持,8 号线、9 号线、10 号线和 13 号线在附近设有多个站点 ,可快速便捷地到达城市各个区域 。自驾出行也十分便利,周边分布着延安高架、南北高架、内环高架等城市主干道,以及延安路隧道、复兴路隧道、西藏南路隧道、打浦桥隧道、人民路隧道等多条隧道,能够迅速通达全市 。上海中海顺昌玖里售楼处电话☎:400-891-9910【开发商售楼处预约看房热线】(一对一热情vip服务)

中海顺昌玖里售楼处电话:400-891-9910
上海中海顺昌玖里售楼处电话☎:400-891-9910【开发商售楼处预约看房热线】(一对一热情vip服务)
看房前请提前拨打售楼处热线进行电话预约,进行预约的客户可享受开放商提供的内部优惠,一对一的vip服务让您更舒心更方便。
The difference in risk and return between stocks and bonds is mainly reflected in the following aspects:
Risk: Stocks typically carry higher risk than bonds. The stock price fluctuates greatly and is influenced by various factors such as the company's operating conditions and market sentiment, which may result in significant losses for investors. In contrast, bonds have clear agreements and guarantees for interest rates and principal recovery, resulting in relatively lower risks.
Yield: Stocks typically have a higher potential for returns than bonds. Although stock prices fluctuate greatly, it also means that higher returns may be obtained. The returns on bonds are relatively stable and limited, mainly coming from fixed interest income and principal recovery at maturity.
Stability: The bond has a predetermined interest rate before purchase, and investors can receive fixed interest at maturity, which provides a stable expected return for bond investors. The dividend yield of stocks is uncertain, and their dividend income fluctuates with the company's profitability.
The difference in risk and return between stocks and bonds is mainly reflected in the following aspects:
Risk difference: Stocks are often considered a high-risk investment tool because their price fluctuations can be significant, which can increase investors' risk. In addition, if the company performs poorly, investors may suffer losses. In contrast, bonds are generally regarded as a low-risk investment tool. The price fluctuations of bonds are usually smaller than those of stocks, so their risk is relatively low.
Yield difference: Stocks generally have much higher returns than bonds. This is because the returns of stocks not only come from dividends, but also from capital gains brought about by the rise in stock prices. The returns on bonds are mainly fixed interest income, which is relatively stable but lower compared to stocks.
Stability difference: Bonds have a predetermined interest rate before purchase, and investors can receive fixed interest at
声明:本文由入驻焦点开放平台的作者撰写,除焦点官方账号外,观点仅代表作者本人,不代表焦点立场。
