上海闵行-联仲都悦汇(欢迎您)联仲都悦汇_联仲都悦汇楼盘网站丨楼盘户型详情
淮南楼市观察 2023-05-09 11:00:48
用手机看
扫描到手机,新闻随时看
扫一扫,用手机看文章
更加方便分享给朋友
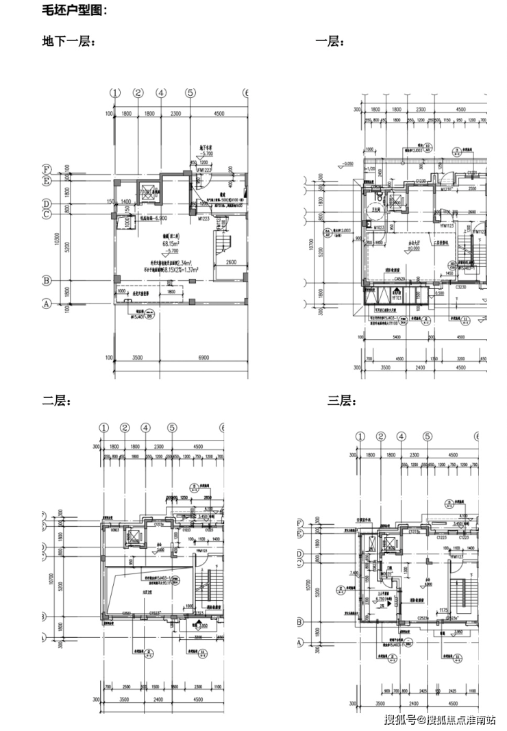
【联仲都悦汇】售楼热线:400-856-7004案场限流 看房提前来电预约登记

















声明:本文由入驻焦点开放平台的作者撰写,除焦点官方账号外,观点仅代表作者本人,不代表焦点立场。
